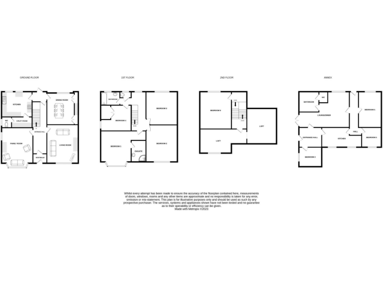
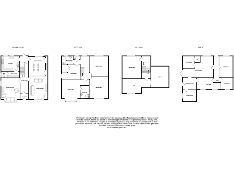
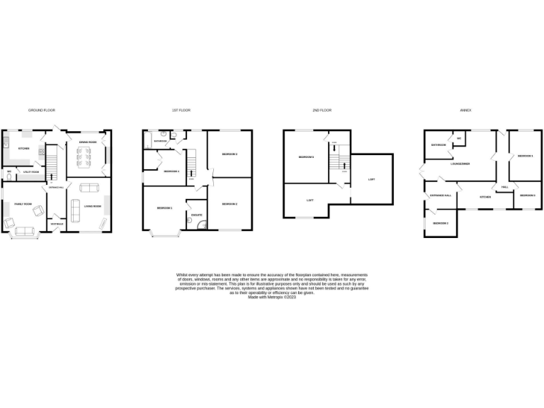
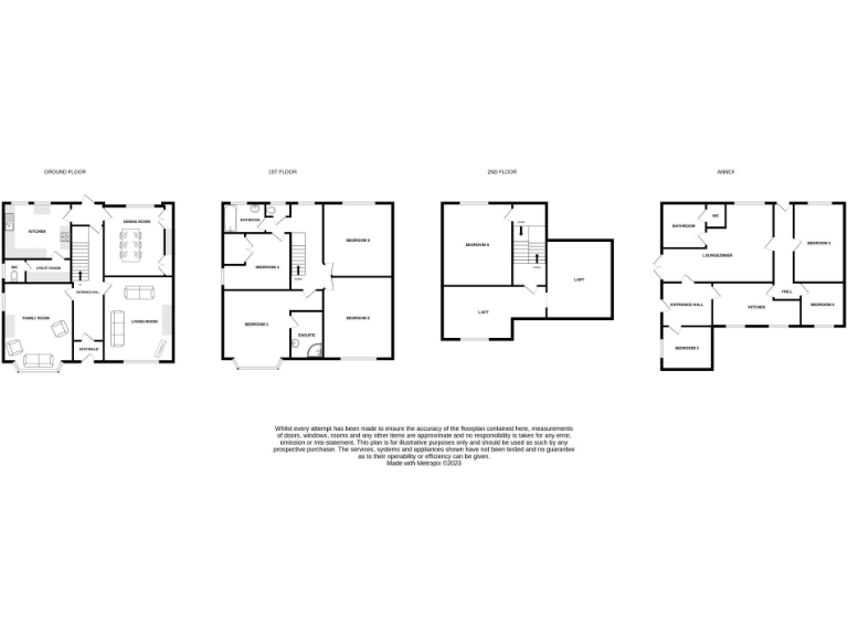
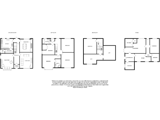
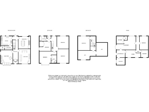
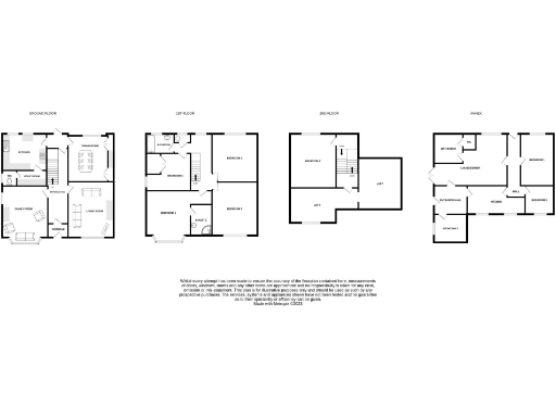
**Standout Features:**
- Spacious five-bedroom Victorian semi-detached residence
- Includes a three-bedroom detached annex with kitchen and bathroom
- Original period features with high ceilings and large double-glazed windows
- Three generous reception rooms ideal for entertaining
- Convenient off-street parking
- Located near excellent schools and amenities
- Potential for versatile living arrangements or rental opportunities
**Summary:**
Discover this exquisite five-bedroom period property, exuding character and charm from its 1800s origins. Nestled in a family-friendly neighborhood, this home is perfect for those seeking comfort and space. The airy entrance greets you, leading to three generous reception rooms that cater to various family needs and entertainment possibilities. A well-equipped kitchen and a separate utility area ensure practicality for daily living.
The inviting first floor showcases four spacious bedrooms, including a luxurious master suite with en suite facilities. The second floor features another large bedroom and access to expansive loft space for potential development.
The property stands out with its unique detached annex, ideal for extended family members or rental income, giving you flexible living options. While the property condition is predominantly good, potential buyers should keep in mind the age and maintenance typical of Victorian homes. Take advantage of the off-street parking and proximity to shops, schools, and healthcare facilities. This home is not just a property; it's a lifestyle opportunity waiting for you—an absolute must-see for families keen on a versatile and inviting environment. Don’t wait, as this gem won’t last long in today’s market!
4 bedroom detached house for sale in Garstang Road, Fulwood, PR2 — £490,000 • 4 bed • 2 bath • 2000 ft²
5 bedroom semi-detached house for sale in Garden Walk, Ashton-on-Ribble, Preston, PR2 — £400,000 • 5 bed • 1 bath • 2222 ft²
5 bedroom semi-detached house for sale in Higher Bank Road, Fulwood, Preston, Lancashire, PR2 — £495,000 • 5 bed • 3 bath • 2923 ft²
4 bedroom semi-detached house for sale in Chapman Road, Fulwood, PR2 — £410,000 • 4 bed • 2 bath • 2038 ft²
6 bedroom detached house for sale in Highgate Avenue, Fulwood, Preston, Lancashire, PR2 — £475,000 • 6 bed • 2 bath • 2843 ft²
4 bedroom semi-detached house for sale in Garstang Road, Fulwood, Preston, PR2 — £469,950 • 4 bed • 2 bath • 2411 ft²






















































































































































































































































































































































