**Standout Features:**
- Newly built 4-bedroom detached house over three levels.
- Two en-suite bathrooms providing added convenience.
- Open-plan kitchen, dining, and family area with integrated appliances.
- First-floor living room adaptable for various uses (home cinema, playroom).
- Generous garden space, ideal for outdoor entertaining.
- Located in a highly desirable and affluent community with low crime rates.
- Conveniently close to good-rated local schools and multiple amenities.
**Potential Downsides:**
- Average-sized property and gardens, limiting extensive landscaping or expansion.
- Note an annual estate charge of £183.28 for maintenance.
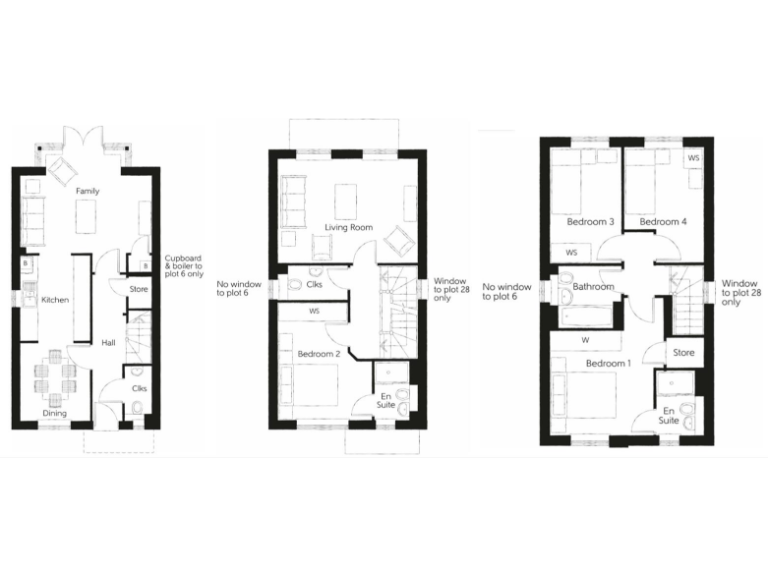
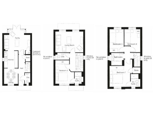
Nestled in the affluent and peaceful enclave of Goring-By-Sea, this contemporary 4-bedroom detached home offers an impressive balance of space and practicality across three levels. On the ground floor, enjoy an expansive open-plan kitchen, dining, and family area equipped with integrated appliances, flowing seamlessly into a cozy living space adorned with large windows and French doors that open to the spacious garden – perfect for summer gatherings.
The first floor features a versatile living room that can morph into a cinema room or a children's play area, alongside a sizable en-suite guest bedroom for ultimate privacy and comfort. Ascend to the top floor to find three additional bedrooms, including the master suite with its private en-suite, ensuring ample room for family dynamics or guest accommodation.
With a modern aesthetic and thoughtful layout designed with family living in mind, this newly built property stands as an excellent option for families looking for room to grow. Its prime location offers fast broadband and easy access to top-rated schools, recreational activities, and essential services, making it a standout opportunity that won't last long! Don’t miss your chance to make this ideal family haven your own.
4 bedroom detached house for sale in Barrington Road, Goring-By-Sea, Worthing, BN12 — £525,000 • 4 bed • 3 bath
4 bedroom semi-detached house for sale in Barrington Road, Goring-By-Sea, Worthing, BN12 — £495,000 • 4 bed • 3 bath
4 bedroom semi-detached house for sale in East Avenue, Goring-By-Sea, BN12 4DD, BN12 — £675,000 • 4 bed • 2 bath • 1233 ft²
4 bedroom detached house for sale in Skylark Rise, Goring-By-Sea, Worthing, BN12 — £550,000 • 4 bed • 2 bath • 1228 ft²
4 bedroom detached house for sale in Teasel Drive, Durrington, Worthing, West Sussex, BN13 — £475,000 • 4 bed • 3 bath • 1229 ft²
4 bedroom detached house for sale in The Boulevard, Worthing, West Sussex, BN13 1JZ, BN13 — £549,995 • 4 bed • 1 bath • 1162 ft²














































































































































































































