Low-maintenance family home near schools and local shops.
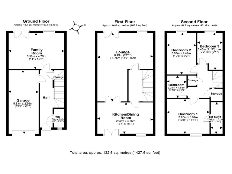
- Over 1,400 sq ft of adaptable three-storey living space
- Flexible ground-floor room usable as fourth bedroom or office
- Principal bedroom with en-suite; second family bathroom upstairs
- Integral single garage plus private driveway and visitor spaces
- Small rear garden and compact plot typical of development
- Built in 2006 with double glazing and gas combi boiler
- Within Helsby High School catchment; shops and Tesco nearby
- Moderate council tax and average local crime levels
This modern mid-terrace townhouse offers practical family living across three floors, with over 1,400 sq ft of adaptable accommodation. Built in 2006, the home feels contemporary throughout and benefits from double glazing and gas central heating. The layout includes a flexible ground-floor room (useable as a family room, home office or fourth bedroom), an open-plan kitchen/dining space and a bright lounge with a Juliette balcony. An en-suite principal and a second bathroom sit on the top floor, giving useful separation for family routines.
Externally the property is low-maintenance: an integral single garage, private driveway and an enclosed rear garden suit busy households and make parking straightforward. The location on the Mere's Edge development is convenient for daily needs — a nearby Tesco, local shops, good primary schools and Helsby High School catchment are all within easy reach. Helsby’s green spaces and walks on Helsby Hill are close by for weekend family time.
Buyers should note the modest plot size and relatively small rear garden, typical of contemporary townhouses on compact developments. The frontage and outdoor space are limited, so anyone wanting large family gardens or extensive landscaping should allow for restricted scope. The property is presented in neutral, modern condition but internal reconfiguration would be subject to planning and building constraints.
Overall this house will suit families or first-time buyers seeking a ready-to-live-in, low‑maintenance home in a quiet, well-served suburb. It also offers potential interest to investors looking for a straightforward family rental in a very affluent area with fast broadband and strong local amenities.
4 bedroom town house for sale in Neston Close, Helsby, Frodsham, Cheshire, WA6 — £270,000 • 4 bed • 2 bath • 1252 ft²
3 bedroom terraced house for sale in Crosland Drive, Helsby, Frodsham, WA6 — £200,000 • 3 bed • 1 bath • 668 ft²
3 bedroom semi-detached house for sale in Barlow Drive, Helsby, Frodsham, Cheshire, WA6 — £280,000 • 3 bed • 2 bath • 935 ft²
3 bedroom semi-detached house for sale in Callender Way, Helsby, Frodsham, WA6 — £260,000 • 3 bed • 2 bath • 837 ft²
3 bedroom end of terrace house for sale in Crosland Terrace, Helsby, Frodsham, WA6 — £270,000 • 3 bed • 1 bath • 967 ft²
4 bedroom detached house for sale in Neston Close, Helsby, Frodsham, Cheshire, WA6 — £430,000 • 4 bed • 3 bath • 1855 ft²






























































