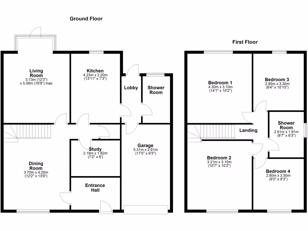
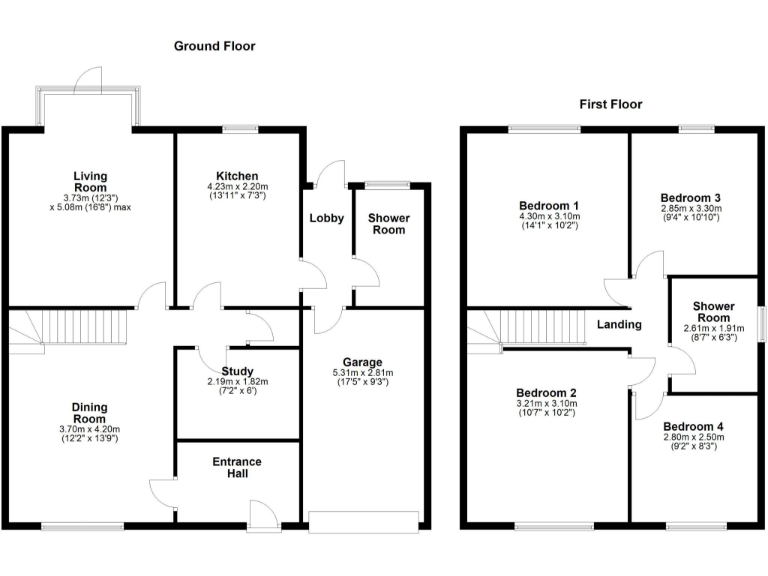
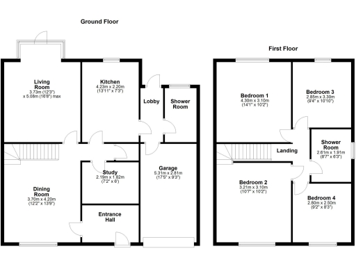
**Standout Features:**
- 4 spacious bedrooms, 2 modern shower rooms
- 3 reception rooms including a generous living room with log burner
- Newly renovated with modern finishes throughout
- Private sunny south-facing garden
- Attached garage and driveway for multiple vehicles
- Located at the end of a quiet cul-de-sac with excellent communication links
**Summary:**
Discover this beautifully presented four-bedroom link-detached home nestled at the end of a tranquil cul-de-sac in Highworth. Recently updated, this inviting property features modern living spaces including a generous living room with a cozy log burner, a bright dining area, and a sleek kitchen with integrated appliances. Two modern shower rooms serve the well-proportioned bedrooms, ensuring comfort for the whole family.
The sunny south-facing rear garden, primarily laid to lawn, and a patio area provide an ideal setting for outdoor relaxation and gatherings. With a blocked pavior driveway and attached garage, parking will never be an issue. Enhanced with newly fitted double glazing and a combination boiler, this home is move-in ready.
Situated in an affluent area with very low crime rates, this property is perfect for families seeking a safe and vibrant community. Top-rated local schools within easy reach further add to its allure. Don’t miss out on this outstanding opportunity—early viewing is highly recommended to secure your future in this desirable residence!
4 bedroom detached house for sale in Wrag View, Highworth, Swindon, SN6 — £485,000 • 4 bed • 2 bath • 818 ft²
3 bedroom link detached house for sale in Islay Crescent, Highworth, SN6 7HL, SN6 — £400,000 • 3 bed • 3 bath • 1303 ft²
4 bedroom detached house for sale in Brookfield, Highworth, SN6 7HY, SN6 — £589,995 • 4 bed • 2 bath • 1768 ft²
4 bedroom detached house for sale in Highworth, Swindon, SN6 — £599,995 • 4 bed • 2 bath • 1174 ft²
4 bedroom detached house for sale in Wrde Hill, Highworth, SN6 7BX, SN6 — £515,000 • 4 bed • 2 bath • 1528 ft²
4 bedroom detached house for sale in Stranks Close, Highworth, Swindon, SN6 — £825,000 • 4 bed • 3 bath • 2056 ft²






















































