Well-located near Swindon station with clear renovation potential.
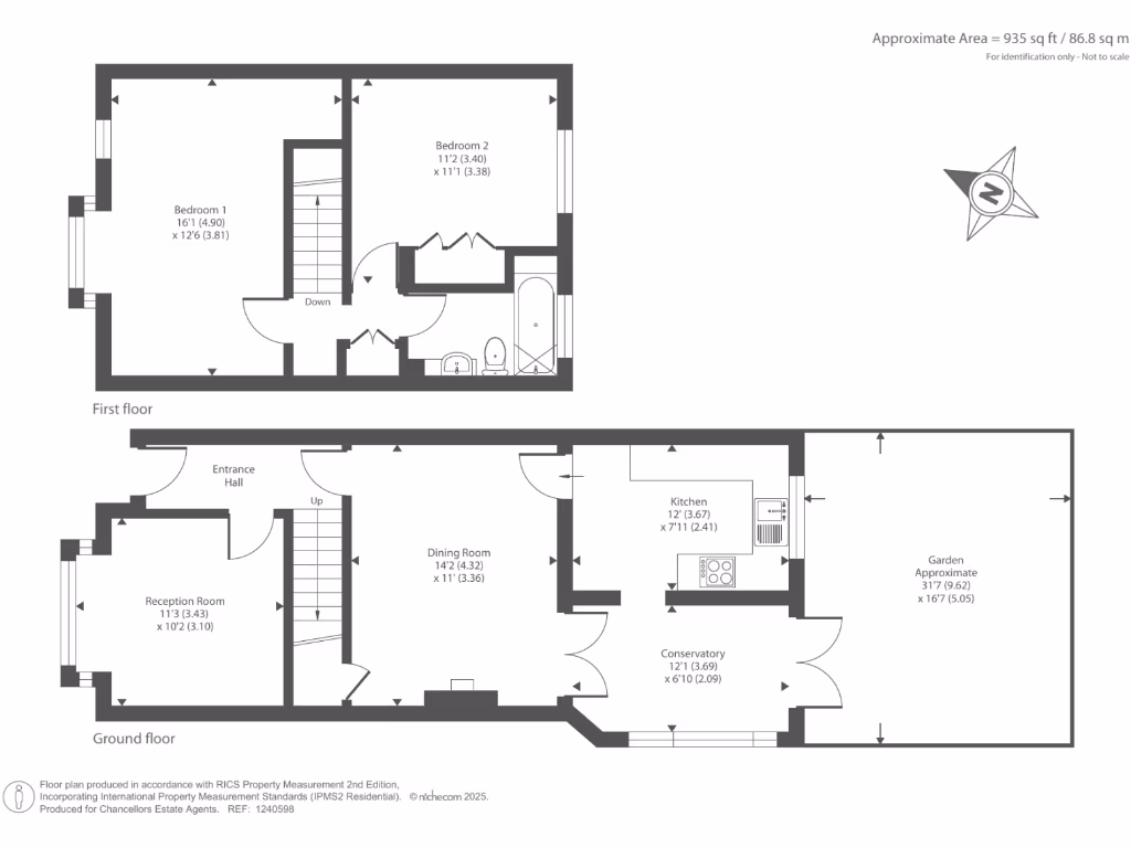
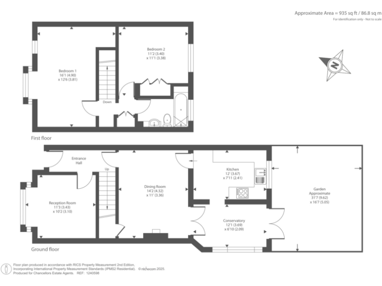
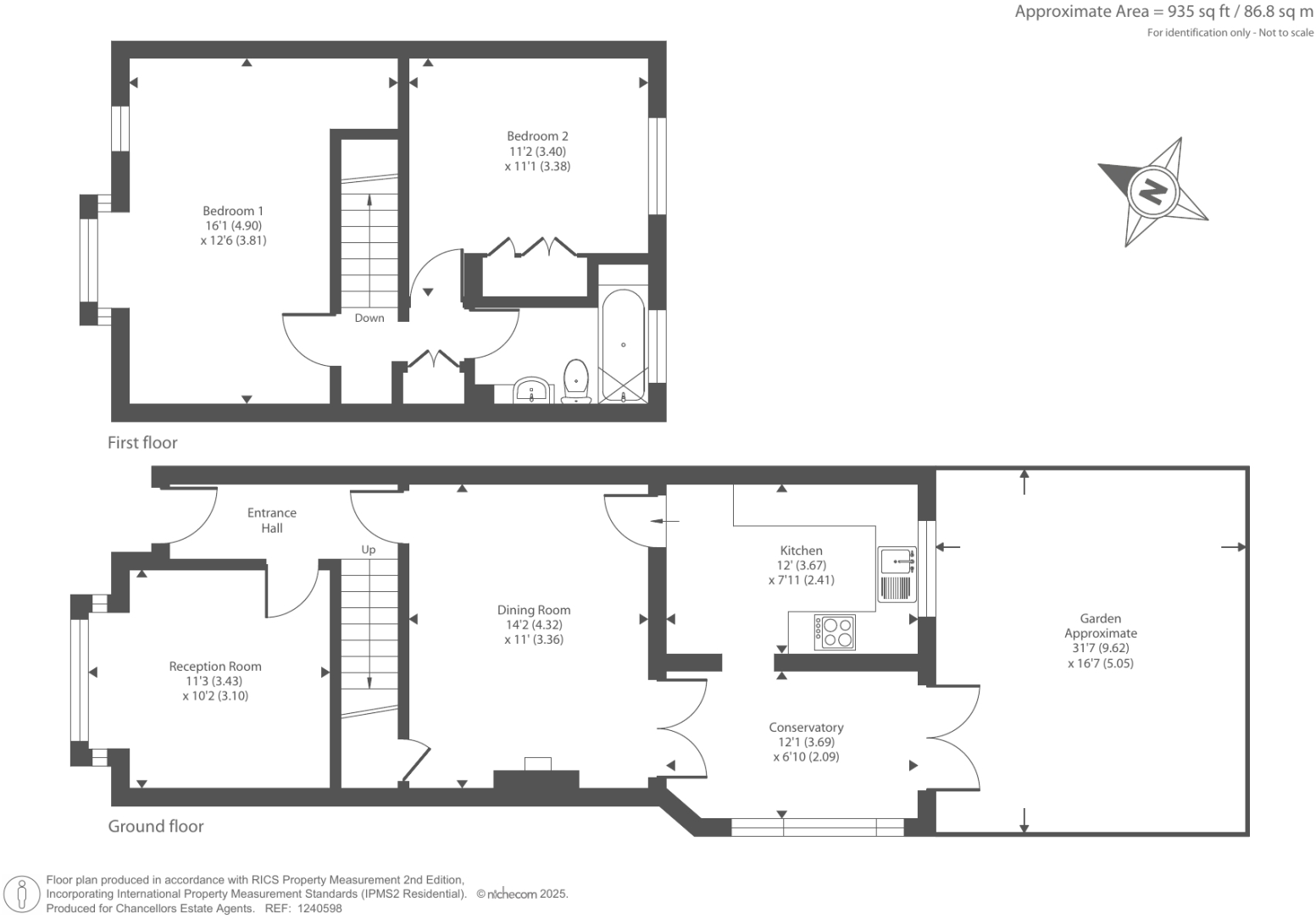
Two bedrooms and two reception rooms across c.935 sq ft
This mid-20th-century terraced home in Rodbourne Cheney sits under a mile from Swindon town centre and the train station, offering straightforward access to local schools and commuter links. The property includes two reception rooms, a kitchen, lean-to conservatory, two bedrooms, family bathroom, driveway parking and an enclosed rear garden across about 935 sq ft.
The house requires modernization — exterior brickwork and some interior finishes are dated — presenting clear scope for refurbishment to add value. The property has double glazing (install date unknown) and mains gas central heating via boiler and radiators; cavity walls are as-built with no added insulation (assumed). There is no flood risk, but local crime is above average, and the plot is small.
This is a practical option for investors seeking a rental-ready location or buyers prepared to refurbish. Close schools with mostly Good Ofsted ratings, fast broadband and excellent mobile signal support families and tenants. Important practical notes: tenure is unknown and the property will benefit from updating and possible energy-efficiency improvements to increase long-term returns.
2 bedroom terraced house for sale in Whitby Grove, Rodbourne Cheney, Swindon, SN2 — £250,000 • 2 bed • 1 bath • 764 ft²
2 bedroom terraced house for sale in George Street, Swindon, SN1 — £175,000 • 2 bed • 1 bath • 685 ft²
2 bedroom terraced house for sale in Crombey Street, Swindon, SN1 — £210,000 • 2 bed • 1 bath • 899 ft²
3 bedroom semi-detached house for sale in Mulberry Grove, Rodbourne Cheney, Swindon, SN2 — £220,000 • 3 bed • 1 bath • 891 ft²
2 bedroom terraced house for sale in Cheney Manor Road, Swindon, SN2 — £260,000 • 2 bed • 1 bath • 1098 ft²
2 bedroom terraced house for sale in Pasture Close, Swindon, Wiltshire, SN2 — £220,000 • 2 bed • 1 bath • 640 ft²


























































