Large balcony, excellent facilities and strong transport links for families.
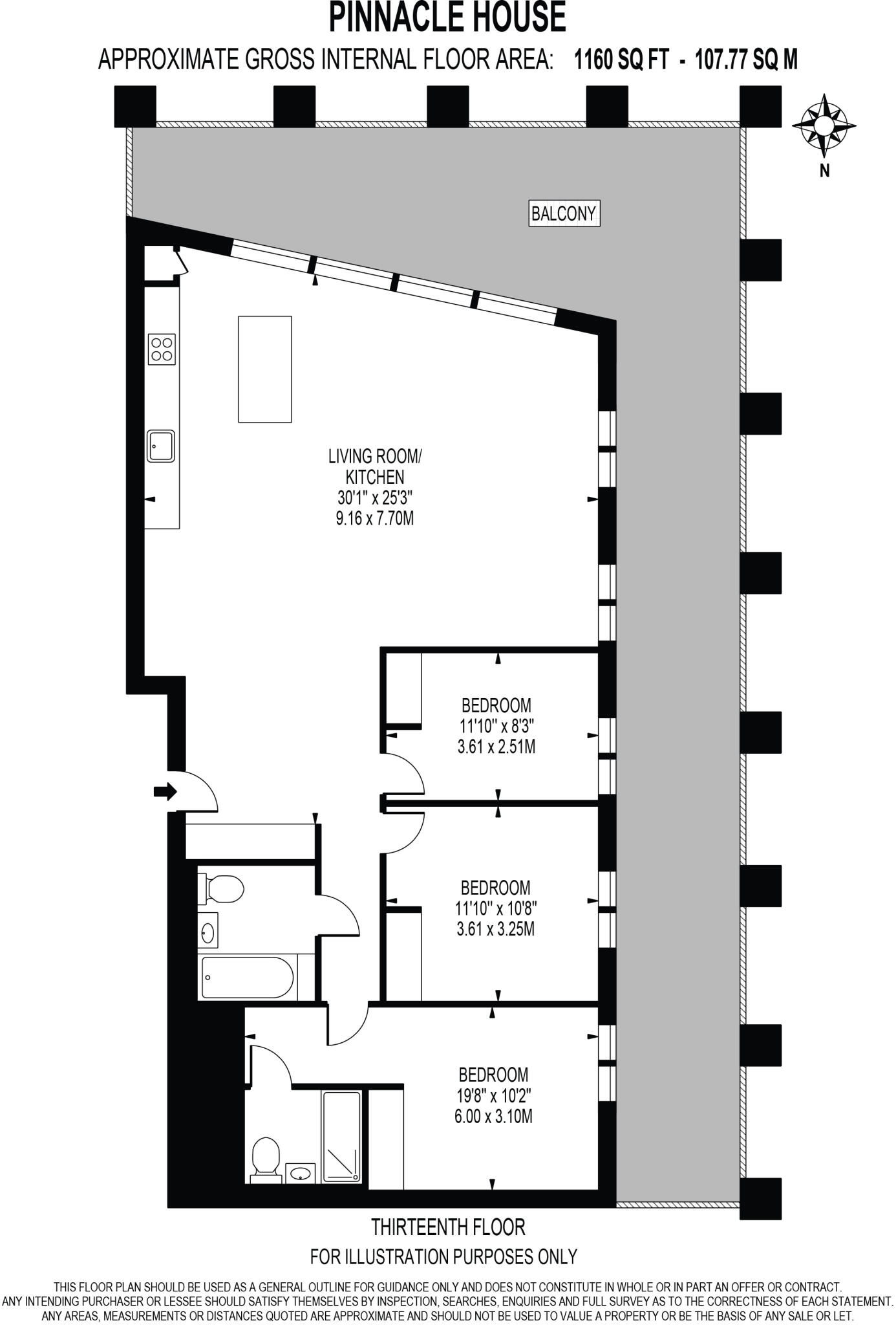
1,160 sqft internal space with wrap‑around south‑west balcony
Dual‑aspect open‑plan kitchen/reception, lots of natural light
Three bedrooms, two bathrooms (one en suite)
Thirteenth floor — elevated views, plenty of daylight
Resident 25m pool, 20,000 sqft gym, health suite and concierge
Very close to Pontoon Dock DLR, Thames Clipper, London City Airport
Leasehold with 988 years remaining; ground rent £720 (expensive)
Council tax described as expensive; community heating scheme
This spacious three-bedroom apartment on the thirteenth floor of Pinnacle House offers 1,160 sqft of internal space and a dramatic wrap‑around balcony with south‑west aspect. The dual‑aspect, open‑plan kitchen/living area and three bedrooms all have direct terrace access, giving flexible family living and generous entertaining space. Two bathrooms (one en suite) suit busy households.
Residents benefit from substantial on‑site facilities: a 25m lap pool, 20,000 sqft gym and health suite, 24‑hour concierge and cafes — useful for active families and commuters alike. Pontoon Dock DLR, Thames Clipper and London City Airport are all close by, making daily travel to the City straightforward.
Practical factors to note: the property is leasehold with 988 years remaining, a community heating scheme and an annual ground rent of £720. Council tax is described as expensive. These running costs and the communal heating arrangement should be considered alongside the apartment’s size and facilities when budgeting.
Overall, the apartment will suit families seeking a modern, low‑maintenance home with strong transport links and substantial communal amenities. It also offers potential as a long‑term let for investors wanting a high‑spec apartment in a well‑connected riverside development.
3 bedroom apartment for sale in Pinnacle House, Royal Wharf, E16 — £800,000 • 3 bed • 2 bath • 1127 ft²
3 bedroom apartment for sale in Pinnacle House, Royal Wharf, E16 — £799,950 • 3 bed • 2 bath • 1055 ft²
1 bedroom apartment for sale in Pinnacle House, Royal Wharf, E16 — £450,000 • 1 bed • 1 bath • 552 ft²
3 bedroom apartment for sale in 4 Schooner Road, London, Greater London, E16 — £700,000 • 3 bed • 2 bath • 1111 ft²
3 bedroom flat for sale in Pendant Court, Royal Wharf, E16 — £700,000 • 3 bed • 2 bath • 1111 ft²
3 bedroom apartment for sale in Flotilla House, Royal Wharf, E16 — £725,000 • 3 bed • 2 bath • 1059 ft²






















































