Comfortable low-maintenance living with on-site support and social amenities.
- Retirement development for over-70s with on-site estate manager 24/7
- Bistro, wellness suite and communal lounge for social, care and leisure
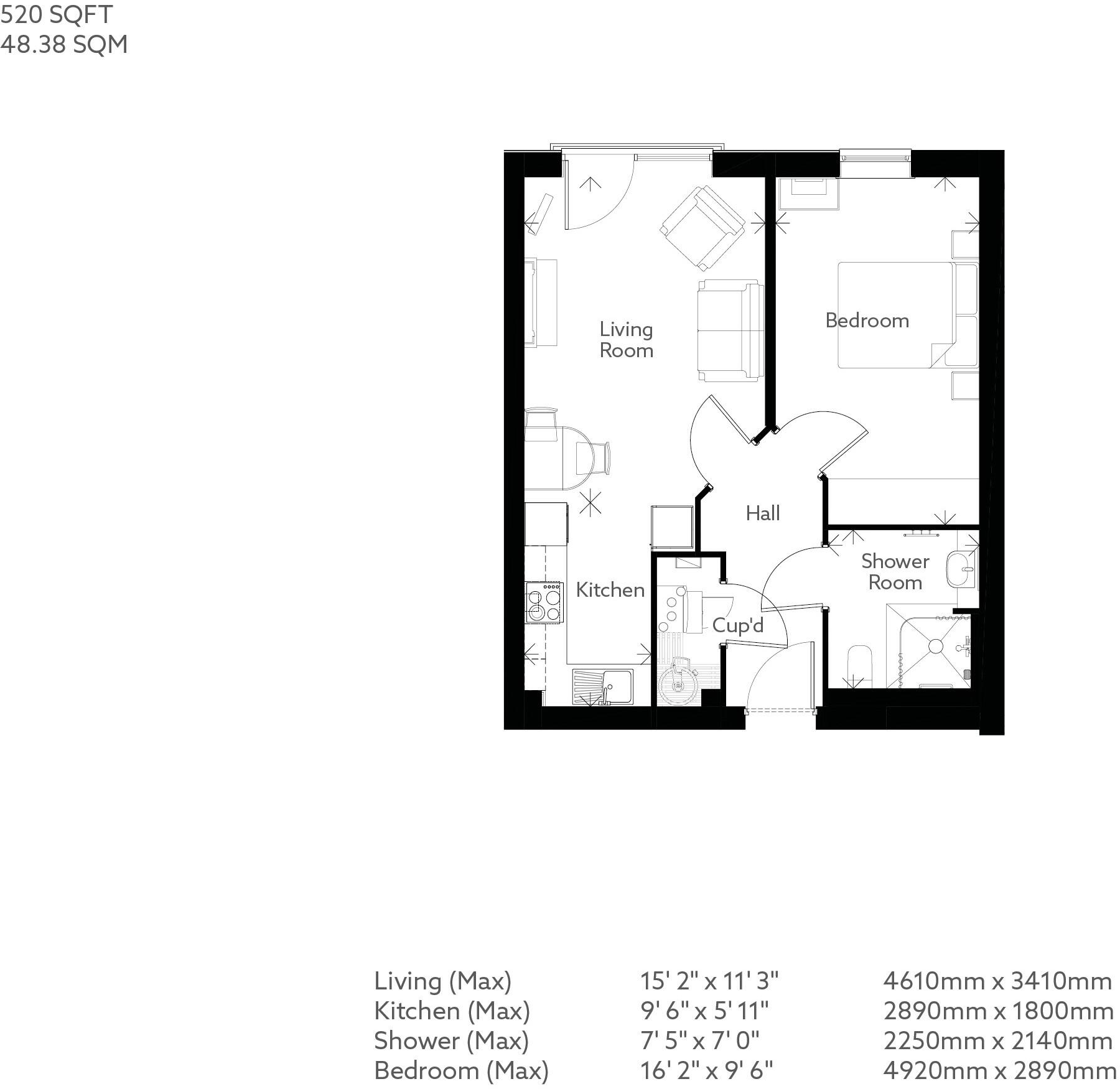
- Penthouse-style second-floor apartment with open-plan living and French balcony
- One bedroom with fitted wardrobes; two hall cupboards for extra storage
- Modern, low‑maintenance build (constructed 2021) with high SAP rating
- Main heating via electric room heaters (no gas central heating)
- Leasehold with 998 years remaining; council tax band unknown
- Medium local flood risk; area classified as very affluent
Designed exclusively for over-70s, this contemporary one-bedroom apartment offers low‑maintenance living with generous open-plan space. Located on the second floor within the roof space, the penthouse-style layout gives a light, airy living/dining/kitchen perfect for relaxing or entertaining. A French balcony faces north‑west and the home benefits from modern fittings and an efficient SAP rating (up to 89).
The development provides strong on-site support and social amenities: a 24/7 estate manager, bistro with seasonal menus, wellness suite, stylish communal lounge, and optional personal care or support if required. These facilities suit buyers seeking community, convenience and peace of mind without heavy household upkeep.
Practical points to note: the property is leasehold (998 years remaining) and uses electric room heaters as the main heating source. Flood risk is rated medium for the area and council tax banding is not specified. The apartment is part of a 2021 build and offers good storage with fitted wardrobes plus two cupboards in the hallway.
This home will appeal to downsizers who prioritise accessibility, social amenities and modern, energy-efficient design. Buyers wanting traditional central heating or a riverside setting may find the electric-only heating and north-west aspect less suitable.
2 bedroom retirement property for sale in 44 London Road,
Bagshot,
GU19 5HL
, GU19 — £455,000 • 2 bed • 1 bath • 785 ft²
2 bedroom retirement property for sale in 44 London Road,
Bagshot,
GU19 5HL
, GU19 — £450,000 • 2 bed • 1 bath • 793 ft²
2 bedroom retirement property for sale in 44 London Road,
Bagshot,
GU19 5HL
, GU19 — £530,000 • 2 bed • 1 bath • 1008 ft²
2 bedroom retirement property for sale in 44 London Road,
Bagshot,
GU19 5HL
, GU19 — £365,000 • 2 bed • 1 bath • 800 ft²
1 bedroom retirement property for sale in Violet Place, Bagshot, GU19 — £299,000 • 1 bed • 2 bath
1 bedroom retirement property for sale in London Road, Bagshot, GU19 — £330,000 • 1 bed • 1 bath • 496 ft²






















































































