**Standout Features:**
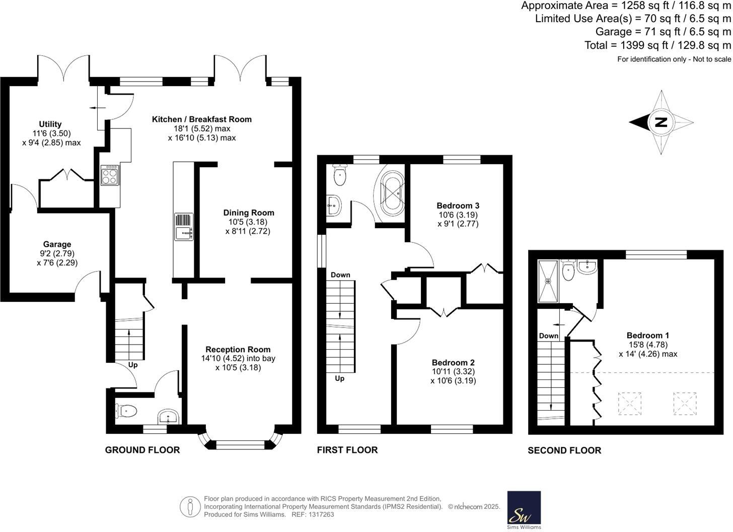
- Spacious semi-detached house with three double bedrooms.
- Immaculately presented throughout with modern finishes.
- Master bedroom with en-suite bathroom.
- Extended living area for family gatherings.
- Separate utility room and partial garage.
- Off-street parking available for multiple vehicles.
- Chain-free, providing a smooth buying process.
- Located in a popular area close to schools and amenities.
This stunning three-bedroom semi-detached house in the sought-after Nyetimber area offers families both space and style. Impeccably maintained, the home boasts a master bedroom complete with an en-suite bathroom, a generous extended living area perfect for entertaining, and a separate utility room enhancing convenience. Additional highlights include a private driveway that accommodates several vehicles, ensuring hassle-free parking.
The property is ideally positioned near local amenities, shops, and schools, making it particularly attractive for family living. With an average plot size and a small garden area, it provides a comfortable suburban lifestyle whilst allowing for potential improvements to the outdoor space.
This home suits those seeking a modern residence without the burden of a chain, presenting an outstanding opportunity for first-time buyers or families looking for a ready-to-move-in option. Don't miss your chance to own this immaculate property—a rare gem in a desirable location!
3 bedroom semi-detached house for sale in Malvern Way, Nyetimber, PO21 — £325,000 • 3 bed • 1 bath • 791 ft²
3 bedroom semi-detached house for sale in Gloster Drive, Nyetimber, PO21 — £400,000 • 3 bed • 1 bath • 1052 ft²
3 bedroom detached house for sale in Ledbury Way, Nyetimber, Bognor Regis, PO21 — £375,000 • 3 bed • 2 bath • 1022 ft²
4 bedroom semi-detached house for sale in Gloster Drive, Nyetimber, Bognor Regis, PO21 — £465,000 • 4 bed • 3 bath • 1623 ft²
3 bedroom semi-detached house for sale in Pagham Road, Nyetimber, Bognor Regis, West Sussex, PO21 — £399,950 • 3 bed • 1 bath • 1105 ft²
3 bedroom semi-detached house for sale in Corbishley Road, Bognor Regis, PO22 — £300,000 • 3 bed • 1 bath • 858 ft²


































































