KT7 0LQ - 4 bedroom detached house for sale in Embercourt Road, Thame…

View on Property Piper

4 bedroom detached house for sale in Embercourt Road, Thames Ditton, KT7

Summary - Embercourt Road, Thames Ditton, KT7 KT7 0LQ

4 bed 2 bath Detached

Large Tudor-style detached home on secluded plot, moments from Thames Ditton station and schools.
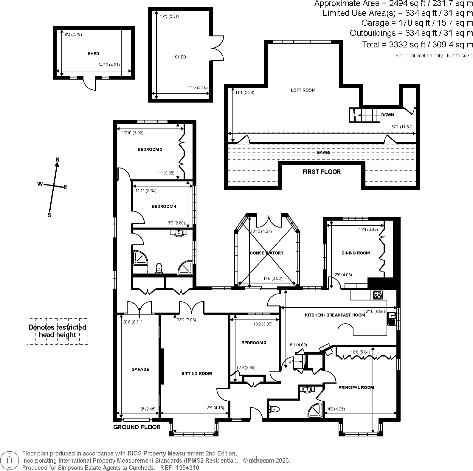
Just under 2,500 sq ft of flexible family accommodation
Set on a large, secluded plot in prime Thames Ditton, this substantial detached home of just under 2,500 sq ft offers generous, flexible family living. The ground-floor layout includes a principal bedroom with en-suite and living spaces that suit single-level living, while three further bedrooms and a large family bathroom provide comfortable accommodation for children or guests.

A loft-style first-floor room adds valuable versatility — ideal as a home office, playroom or additional living area — and there is clear potential to modernise or extend (STPP) to suit contemporary family needs. Externally the property benefits from gated off-street parking, a garage and an expansive, private garden with mature planting and a patio for outdoor entertaining.

Location is a key strength: moments from Thames Ditton station, the village centre and within catchment of highly regarded local schools. Practical positives include no flood risk, fast broadband and excellent mobile signal. Notable considerations are that the house offers only two bathrooms for four bedrooms and will likely benefit from updating; council tax is described as quite expensive. Overall this is a rare, well-located family home with scope to personalise and increase value.

Property Details

Image Descriptions

Floorplan Description

Rooms

Textual Property Features

Target Audience

AI Tags

Detected Visual Features

Nearby Schools

Nearest Bars And Restaurants

,,,,}

Nearest General Shops

,,}

Nearest Grocery shops

,,}

Nearest Supermarkets

,,}

Nearest Religious buildings

,,}

Nearest Medical buildings

,,,}

Nearest Airports

,,}

Nearest Leisure Facilities

,,,,}

Nearest Tourist attractions

,,}

Nearest Train stations

,,,,}

Nearest Bus stations and stops

,,,,}

Nearest Hotels

,,}

Tags

Local Market Stats

AirBnB Data

Similar Properties

Meta

High Res Images

Compatible Images

Low res Images

Thumbnails

Raw Images

High Res Floorplan Images

Compatible Floorplan Images

Low res Floorplan Images

FloorplanImages Thumbnail

Raw Floorplan Images