**Key Features:**
- Stunning detached Victorian property in Swinley with impressive original features
- Grand entrance hall, high ceilings, and large bay windows for abundant natural light
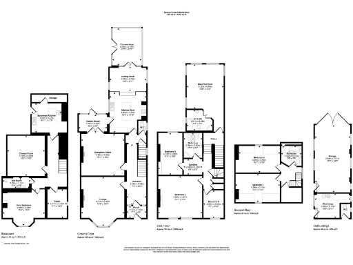
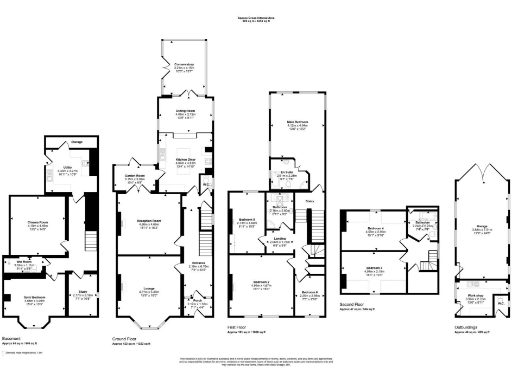
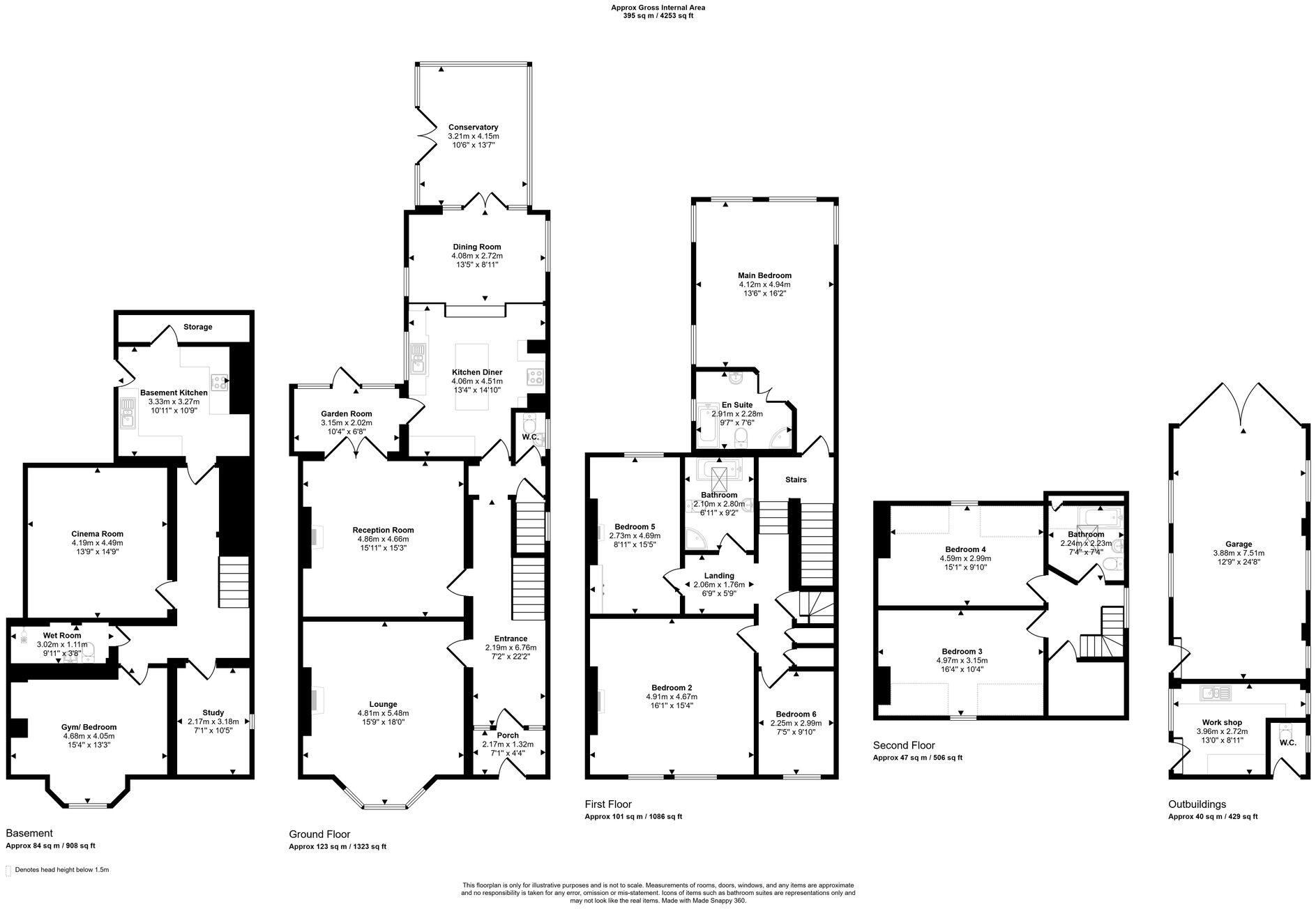
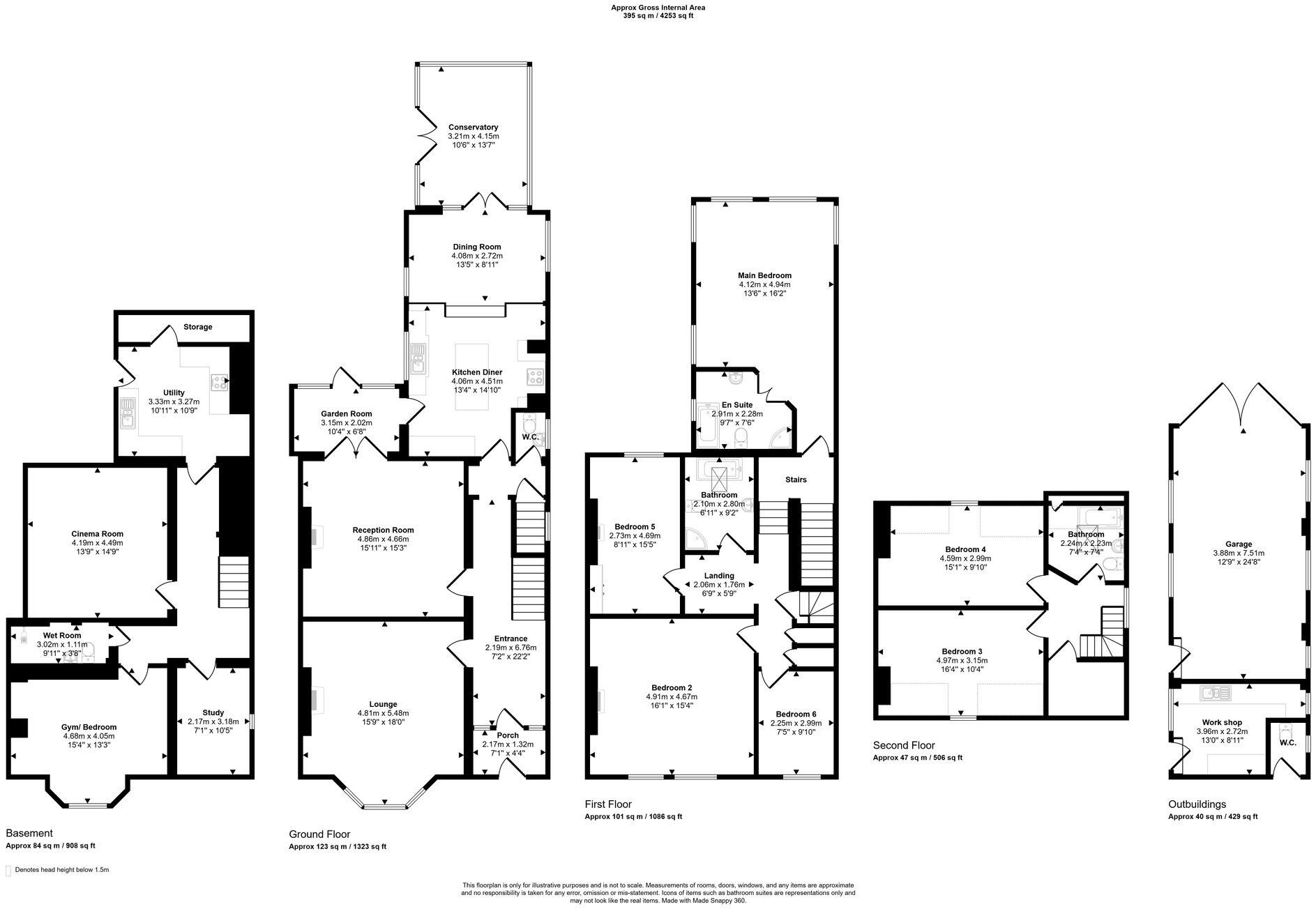
- Versatile basement with cinema, gym, office, and utility room
- Eight bedrooms spread across four levels, ideal for families or multi-generational living
- Farmhouse-style kitchen with central island, two conservatories, and generous garden
- Garage and workshop provide ample storage and development potential
- Peaceful, residential area with excellent schools nearby
- EPC Rating: E; Council Tax Band: E; some maintenance may be needed
Step into this extraordinary Victorian home tucked away in the desirable Swinley area and experience a rare blend of historical charm and modern adaptability. This impressive property boasts a grand entrance that opens to a spacious hallway with original tiling and a striking staircase. The extensive ground floor layout includes a bright lounge and cozy second reception, alongside a farmhouse-style kitchen perfect for family gatherings.
The lower level offers unparalleled flexibility with a fully finished basement featuring a cinema, gym, office, and utility space—ideal for today's busy lifestyles. With eight generous bedrooms across four floors, plus multiple bathrooms, this home can easily accommodate growing families or provide ample guest space. The private garden presents the perfect opportunity for outdoor leisure, while the garage and workshop add valuable storage options.
Nestled in a community with low crime rates and excellent schools, this property combines convenience and comfort. While revisions might be required, the potential of this home to create your dream living space is undeniable. Don't miss out—properties of this caliber in Swinley are a rare find and won't be on the market for long!
5 bedroom semi-detached house for sale in Swinley Road, Swinley, Wigan, WN1 2DL, WN1 — £520,000 • 5 bed • 2 bath • 2700 ft²
4 bedroom terraced house for sale in Eccleston Street, Wigan, WN1 — £190,000 • 4 bed • 2 bath • 1683 ft²
4 bedroom terraced house for sale in Swinley Lane, Swinley, WN1 2EB, WN1 — £275,000 • 4 bed • 2 bath • 1826 ft²
4 bedroom terraced house for sale in Eccleston Street, Swinley, WN1 2AY, WN1 — £285,000 • 4 bed • 1 bath • 1812 ft²
3 bedroom terraced house for sale in Eccleston Street, Swinley, WN1 2AY, WN1 — £265,000 • 3 bed • 1 bath • 1723 ft²
3 bedroom semi-detached house for sale in Upper Dicconson Street, Wigan, WN1 2AG, WN1 — £189,950 • 3 bed • 1 bath • 1561 ft²










































































































































































































