Spacious living, secluded gardens and quick walk to Upton amenities and primary school.
Detached, historic four-bedroom house with character features
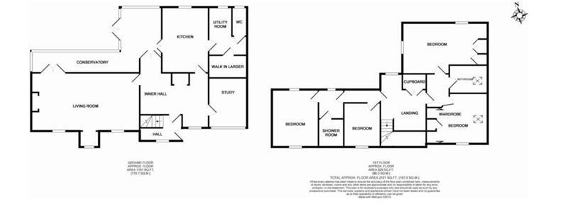
This handsome detached period house blends original character with practical, modern living across generous rooms. The entrance hall, large reception spaces and conservatory create flexible ground-floor flow for family life, while the kitchen, pantry and utility support everyday practicality.
Set on a larger-than-average, well-landscaped plot, the gardens provide multiple seating areas, mature planting, greenhouse and a lawn with views over open ground and Upton’s Pepperpot. A gated gravel driveway offers extensive parking and direct access to a double garage with power and lighting.
Accommodation includes four bedrooms, a main bathroom plus a separate shower room/wetroom; one bedroom has slightly restricted headroom in places. The house benefits from gas central heating, double glazing and mains services; the EPC is D. Flood risk is very low, though the garden backs onto the town’s flood defence bund.
Practical points to note: council tax is Band D and local crime levels are above average for the area. Overall this property suits buyers seeking a substantial, characterful family residence with private outdoor space and easy walking access to Upton’s shops, schools and riverside attractions.
4 bedroom terraced house for sale in 8 Church Street, Upton Upon Severn, Worcestershire, WR8 — £329,995 • 4 bed • 1 bath • 1434 ft²
4 bedroom terraced house for sale in 10 Church Street, Upton upon Severn, Worcestershire, WR8 — £280,000 • 4 bed • 2 bath • 1507 ft²
3 bedroom semi-detached house for sale in The Old Bakehouse, Backfields Lane, Upton-Upon-Severn, Worcestershire, WR8 — £264,500 • 3 bed • 1 bath • 543 ft²
2 bedroom terraced house for sale in Cutters Cottage, 4b Court Street, Upton upon Severn, Worcestershire, WR8 — £210,000 • 2 bed • 1 bath • 549 ft²
4 bedroom detached house for sale in 80 Furrow Close, Holly Green, Upton Upon Severn, Worcestershire, WR8 — £490,000 • 4 bed • 2 bath • 1508 ft²
3 bedroom detached bungalow for sale in Old Street, Upton-Upon-Severn, Worcestershire, WR8 0HW, WR8 — £469,950 • 3 bed • 2 bath • 1161 ft²


























































































































