Ready-to-move-in three-bedroom house with parking and elevated views.
Turnkey condition after recent renovation, ready to move into
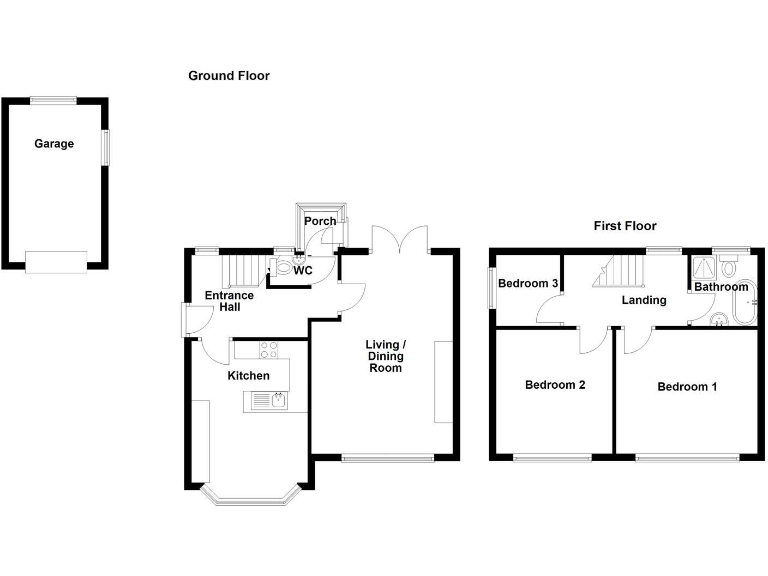
Three bedrooms—third bedroom is small, best as study or single room
Luxury four-piece bathroom with freestanding roll-top bath
Open-plan lounge/diner provides flexible family living space
Paved driveway and garage; parking for several vehicles
Rear garden with Indian stone patio and far-reaching views
Cavity walls likely uninsulated—insulation could cut bills
Local area: higher-than-average crime and relative deprivation
This neatly presented three-bedroom semi-detached house offers a genuine turnkey option for first-time buyers wanting space and character without immediate work. The ground floor has a generous open-plan lounge/diner, a bright bay-window kitchen and a luxury four-piece bathroom with a roll-top bath —all recently updated so you can move in and personalise slowly.
Outside, the plot is a strong practical asset: a paved driveway that fits several vehicles, a single garage with power, and tiered front and rear gardens that capture far-reaching Staffordshire views. At about 871 sq ft, the layout suits a young family or buyers wanting a home office and spare bedroom.
Be clear about location trade-offs. The local area is relatively deprived and crime levels are above average, which may concern some buyers; local schools are mixed but include several rated Good. The property’s cavity walls are assumed uninsulated (typical for its build era), so further insulation work could improve running costs and the EPC rating (current band D, potential B).
Overall this is a practical, characterful starter home: recently refreshed interiors and generous external parking make it an attractive, low-fuss entry onto the ladder, while modest upgrade potential remains to increase comfort and value over time.
3 bedroom semi-detached house for sale in Shaftesbury Avenue, Burslem, Stoke-On-Trent, ST6 — £200,000 • 3 bed • 1 bath • 871 ft²
3 bedroom semi-detached house for sale in Moorland Road, Biddulph, Staffordshire Moorlands, ST8 — £180,000 • 3 bed • 1 bath • 979 ft²
3 bedroom semi-detached house for sale in Ubberley Road, Stoke-On-Trent, ST2 — £170,000 • 3 bed • 1 bath • 653 ft²
2 bedroom semi-detached house for sale in East Terrace, Stoke-On-Trent, ST6 — £140,000 • 2 bed • 1 bath • 656 ft²
3 bedroom semi-detached house for sale in Biddulph Road, Stoke-on-Trent, ST6 — £130,000 • 3 bed • 1 bath • 764 ft²
4 bedroom detached house for sale in Farm Lea, Stoke-On-Trent, ST6 — £300,000 • 4 bed • 2 bath • 1044 ft²






















































































































































