Chain-free four-bed home near good schools with solar panels.
Three-storey modern mid-terrace with integrated garage and driveway parking
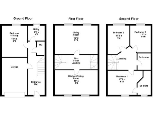
Set on a quiet cul-de-sac in Oakley Vale, this three-storey mid-terrace offers practical family living with sensible running costs. Built in the mid-2000s and fitted with solar panels and double glazing, the house presents good energy credentials (Energy Rating C) and an integrated garage with driveway parking.
Accommodation is arranged over three floors and suits a growing family: ground-floor flexible room ideal as a home office or bedroom four, a first-floor living room and modern fitted kitchen/diner, and two upper-level singles plus a master with en-suite. The property is within easy walking distance of several well-rated primary and secondary schools and local shops.
The home is being sold chain free and currently has a public notice of an accepted offer; higher written offers may still be submitted prior to exchange. There are some clear maintenance points: the rear garden is poorly kept and small, interior areas show cosmetic wear and would benefit from updating, and the area records above-average crime levels. These factors affect immediate presentation but also create scope for value-adding improvements.
Overall this is a practical, energy-efficient family townhouse in a popular school catchment. Buyers seeking a ready-to-live-in home will find its layout convenient; those looking to increase value should budget for garden refurbishment and internal redecoration. Council Tax band is C and tenure is freehold.
4 bedroom terraced house for sale in Frith Close, Great Oakley, Corby, NN18 — £235,000 • 4 bed • 3 bath • 1400 ft²
4 bedroom town house for sale in Chatsworth Road, Corby, NN18 — £215,000 • 4 bed • 2 bath • 1018 ft²
3 bedroom semi-detached house for sale in Butland Road, Corby, NN18 — £260,000 • 3 bed • 2 bath • 1087 ft²
3 bedroom end of terrace house for sale in Leeds Close, Corby, NN18 8PZ, NN18 — £216,000 • 3 bed • 2 bath • 1109 ft²
3 bedroom detached house for sale in Primrose Close, Corby, NN18 — £304,000 • 3 bed • 2 bath • 609 ft²
3 bedroom semi-detached house for sale in Flinders Close, Corby, NN18 — £269,950 • 3 bed • 2 bath • 594 ft²


























































