Low-maintenance, chain-free one-bedroom with parking and a long lease in Bingley.
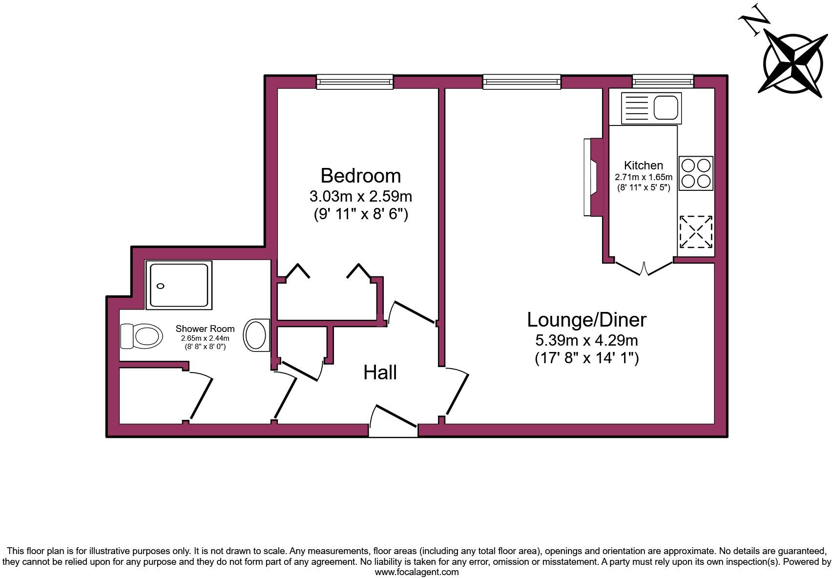
Second-floor one-bedroom, bright open-plan living space
This second-floor one-bedroom apartment in Bingley offers a straightforward, low-maintenance home with allocated off-street parking and no onward chain. The open-plan living/kitchen area receives good natural light and the double bedroom is a comfortable size for a single person or couple. The shower room is contemporary and the development is described as well maintained, making this an easy move-in opportunity.
Practical details suit buyers seeking a simple, affordable purchase: a long lease (approx. 102 years remaining), council tax described as affordable, and no flood risk. Heating is by electric storage heaters and mains fuel is electricity, which keeps the installation simple but can mean higher running costs compared with gas heating. Broadband speeds are average and mobile signal is excellent.
Notable negatives are factual and important for decision-making: the property is leasehold, additional leasehold fees or pack costs may apply, and the local area records higher-than-average crime levels. The apartment was built circa 1996–2002 and has double glazing, though installation dates are unspecified — buyers should commission their own surveys and service checks.
Overall this apartment will appeal to downsizers seeking a low-maintenance base near local shops, cafés and transport, or investors looking for a manageable rental asset with allocated parking and a long lease. Be mindful of potential running costs from electric heating and verify lease/service details before committing.
1 bedroom apartment for sale in Church Street, Bingley, West Yorkshire, BD16 — £68,500 • 1 bed • 1 bath • 450 ft²
1 bedroom apartment for sale in Beech Street, Bingley, BD16 — £89,950 • 1 bed • 1 bath • 460 ft²
2 bedroom flat for sale in Merchants Court, Leonard Place, Bingley, BD16 — £125,000 • 2 bed • 2 bath • 665 ft²
1 bedroom house for sale in Britannia Wharf, Bingley, West Yorkshire, BD16 — £90,000 • 1 bed • 1 bath • 568 ft²
2 bedroom apartment for sale in Fardew Court, Bingley, BD16 — £160,000 • 2 bed • 1 bath • 310 ft²
1 bedroom flat for sale in Hollings Street, Bingley, BD16 — £98,000 • 1 bed • 1 bath • 323 ft²






































































