**Key Features:**
- **Location:** Prime spot on Ingrave Road, walking distance to Brentwood High Street and Brentwood Station (Elizabeth Line).
- **Schools:** Close to highly regarded schools, including Hogarth Primary and Brentwood County High School.
- **Outdoor Space:** Spacious rear garden with potential for enhancement; off-street parking available.
- **Condition:** Requires full renovation—ideal for buyers seeking a project.
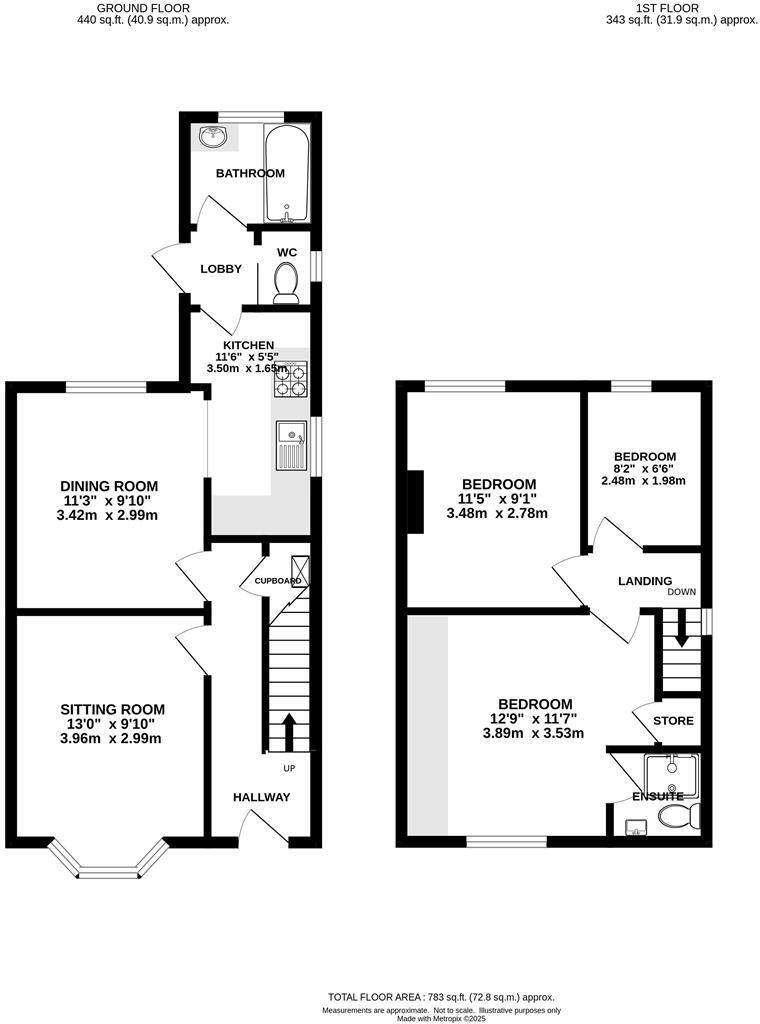
- **Size:** Three bedrooms, two bathrooms, approx. 783 sq ft of living space.
**Summary:**
This three-bedroom semi-detached home offers a rare renovation opportunity in a desirable Brentwood location. With a generous layout comprised of a bright sitting room, a dining space, and a kitchen that flows into a lobby leading to the outdoors, it is perfect for family life. The property benefits from an ensuite in the principal bedroom and two additional bedrooms for guests or children. Though in need of complete modernisation, it presents an exciting canvas for customization.
Situated just a stone’s throw from King George’s Park and a wealth of amenities, including highly-rated schools, this property combines the best of convenience and community. While purchasers will need to address maintenance issues—particularly in gardens and interiors—this home’s potential is undeniable. With off-street parking and a manageable plot, it represents a fantastic investment for families looking to establish roots in a vibrant area. Don’t miss out on the chance to transform this space into your ideal family sanctuary!
3 bedroom semi-detached house for sale in High Street, Brentwood, CM14 — £500,000 • 3 bed • 1 bath • 1057 ft²
4 bedroom semi-detached house for sale in Ingrave Road, Brentwood, CM13 — £850,000 • 4 bed • 2 bath • 1775 ft²
4 bedroom semi-detached house for sale in Ingrave Road, Brentwood, Essex, CM13 — £525,000 • 4 bed • 1 bath • 1240 ft²
4 bedroom terraced house for sale in Sycamore Drive, Brentwood, Essex, CM14 — £400,000 • 4 bed • 1 bath • 1121 ft²
4 bedroom semi-detached house for sale in Bridge Close, Brentwood, CM13 — £625,000 • 4 bed • 1 bath • 1349 ft²
3 bedroom detached house for sale in Shenfield Place, Brentwood, CM15 — £750,000 • 3 bed • 2 bath • 1133 ft²


































































