**Standout Features:**
- Unique former mill building with traditional detailing
- Central Helmsley location with easy access to amenities
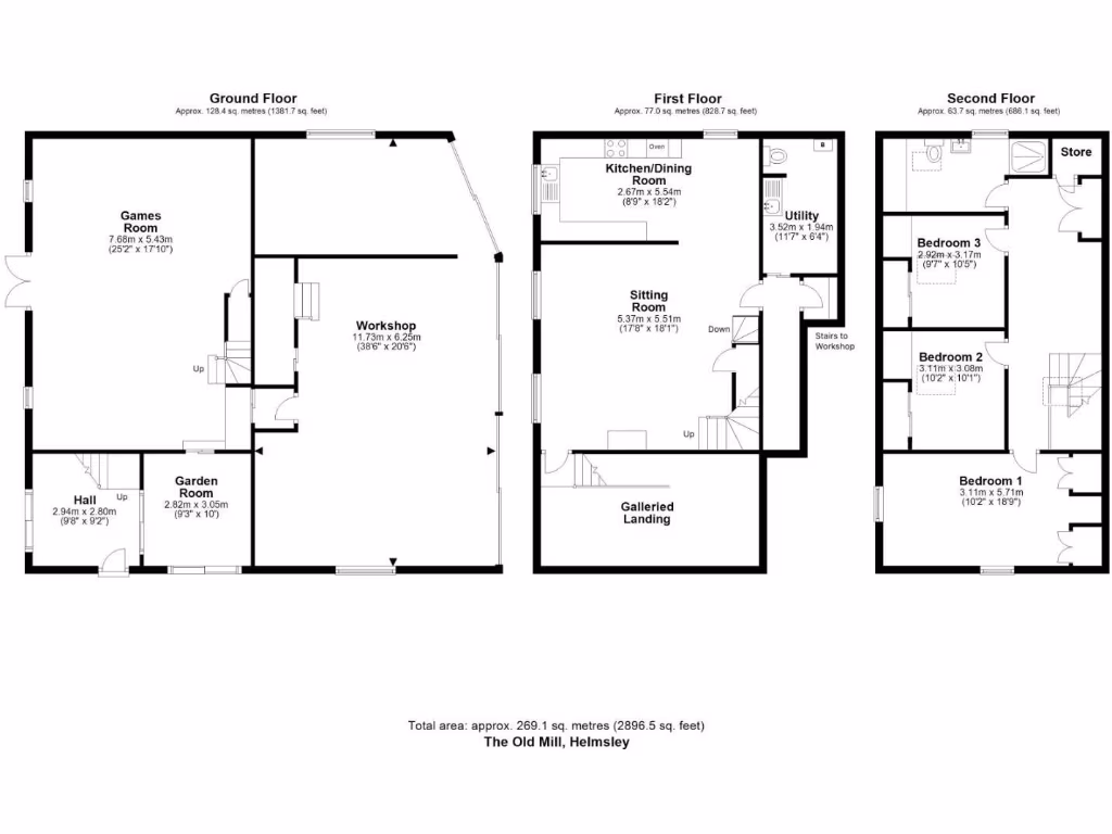
- 3 bedrooms and 3 spacious reception rooms
- Extensive attached workshop/store with renovation potential (subject to consents)
- Covered terrace overlooking a beautifully landscaped garden
- Generous driveway with two means of access to the property
- Low crime rate area with fast broadband and affordable council tax
Discover the charm of The Old Mill, a quaint yet expansive property nestled in the heart of Helmsley. This unique detached mill features three levels of well-maintained living space, including a garden room and a practical workshop that offers exciting potential for expansion or conversion. The interior is a delightful blend of original features and comfortable spaces, making it perfect for families, investors, or those seeking a serene retreat.
The outdoor area is especially inviting, with a covered terrace that opens up to a private garden, providing an oasis of tranquility just minutes away from the local shops and eateries of Helmsley's vibrant Market Place. This property promises not only comfortable living but also the flexibility to develop further, subject to planning permission. With the stunning North York Moors National Park at your doorstep, The Old Mill presents a rare opportunity to own a distinctive piece of history in a sought-after location. Act now to seize a unique lifestyle opportunity that combines rural charm with modern conveniences.
3 bedroom cottage for sale in Castlegate, Helmsley, York, YO62 — £650,000 • 3 bed • 2 bath • 571 ft²
5 bedroom detached house for sale in Rymers Mill, East End, Ampleforth, YO62 — £1,250,000 • 5 bed • 3 bath • 3544 ft²
5 bedroom detached house for sale in Brandsby, York, YO61 — £650,000 • 5 bed • 1 bath • 1941 ft²
5 bedroom detached house for sale in Levisham Mill, Levisham, YO18 7NJ, YO18 — £1,100,000 • 5 bed • 3 bath • 3047 ft²
3 bedroom terraced house for sale in High Street, Helmsley, YO62 — £495,000 • 3 bed • 2 bath • 1316 ft²
4 bedroom semi-detached house for sale in Castle View, Helmsley, YO62 — £470,000 • 4 bed • 3 bath • 1227 ft²


































































































