Spacious period family home with large west-facing garden and renovation potential.
Grade II listed 17th-century detached house with many original features
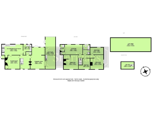
Beech Cottage is a substantial Grade II listed 17th-century detached house in the heart of Ixworth, offering generous, characterful accommodation across multiple reception rooms and five bedrooms. The property retains many original features — inglenook fireplace, exposed beams, sash-style proportions and quarry-tiled floors — and sits on a large, west-facing garden with mature trees and a pond.
The house provides flexible family living: a spacious drawing room with wood burner and French doors to the garden, an elegant sitting room with an inglenook, a sizeable farmhouse-style kitchen/breakfast room, utility and cloakroom, plus cellar storage. The principal bedroom benefits from an ensuite; four further bedrooms and a generous family bathroom serve the rest of the house.
There is clear potential here for sympathetic renovation and improvement, but buyers should note material constraints. The property is Grade II listed, which will restrict works and can increase costs and timescales. The orangery is in disrepair and will need removal or renovation. The house is described as needing renovation overall, so expect updating to services, finishes and possibly structural repairs where historic fabric requires attention.
Practical positives include off-street parking, very low flood risk, freehold tenure and good mobile signal. Drawbacks to budget for include listed-status consent costs, renovation works and mid- to high-range council tax (Band F). The driveway is owned by Beech Cottage but there is shared vehicular access enjoyed by the owner of the outbuildings, which should be clarified prior to purchase.
3 bedroom cottage for sale in Stow Road, Ixworth, IP31 — £350,000 • 3 bed • 2 bath • 1385 ft²
4 bedroom town house for sale in High Street, Ixworth, Bury St Edmunds, Suffolk, IP31 — £575,000 • 4 bed • 2 bath • 2977 ft²
5 bedroom mews property for sale in Ixworth, Suffolk, IP31 — £565,000 • 5 bed • 2 bath • 2373 ft²
4 bedroom detached house for sale in High Street, Ixworth, Bury St Edmunds, Suffolk, IP31 — £425,000 • 4 bed • 2 bath • 2456 ft²
2 bedroom character property for sale in High Street, Ixworth, IP31 — £210,000 • 2 bed • 1 bath • 899 ft²
1 bedroom character property for sale in High Street, Ixworth, IP31 — £180,000 • 1 bed • 1 bath • 699 ft²


























































































