Spacious family living with a modern kitchen and large garden moments from Brixton.
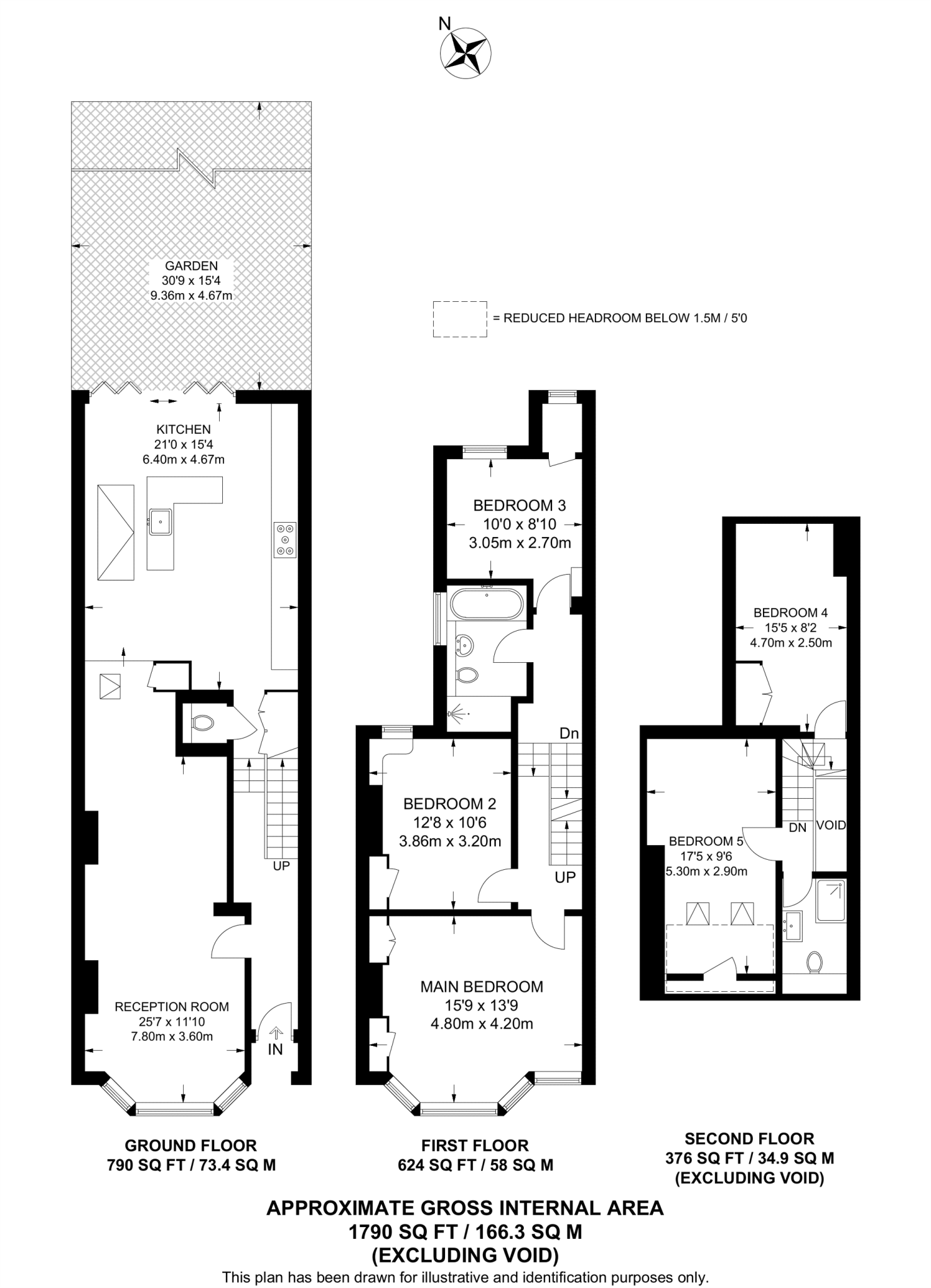
Five double bedrooms across three floors
Set over three floors, this well-presented Victorian end-terrace blends period character with contemporary living. The large double reception room and a bright, modern kitchen open onto a generous, well-maintained rear garden — a rare outdoor space for the area. Five double bedrooms provide flexible family accommodation, while two bathrooms serve the upper floors.
The house is freehold and benefits from double glazing and gas central heating with a boiler and radiators. Transport links are strong with Clapham North and Stockwell nearby, and a range of shops, cafés and amenities within easy reach. Several local primary and secondary schools are rated Good by Ofsted, making this a practical option for families.
Buyers should note the plot is relatively small for an outside space and the property sits in a higher-crime, more deprived inner-city area — factors that may affect long-term resale considerations. The building’s solid-brick walls likely lack cavity insulation, so there may be opportunities and costs associated with improving thermal performance. There are only two bathrooms for five double bedrooms, which could prompt reconfiguration for some buyers.
Overall, the house offers strong living space and garden potential in a desirable, well-connected south London location. It will suit a growing family seeking immediate move-in condition with scope to upgrade energy efficiency and bathroom provision over time.
5 bedroom terraced house for sale in Ballater Road, London, SW2 — £1,100,000 • 5 bed • 3 bath • 1800 ft²
4 bedroom terraced house for sale in Ducie Street, Clapham North, London, SW4 — £1,150,000 • 4 bed • 2 bath • 1624 ft²
5 bedroom house for sale in Killyon Road, Clapham, SW8 — £1,499,000 • 5 bed • 3 bath • 2422 ft²
5 bedroom terraced house for sale in Estreham Road, London, SW16 — £800,000 • 5 bed • 2 bath • 1750 ft²
4 bedroom house for sale in Stirling Road, Stockwell, SW9 — £1,395,000 • 4 bed • 4 bath • 1980 ft²
5 bedroom house for sale in Barrow Road, Streatham, London, SW16 — £1,150,000 • 5 bed • 2 bath • 2239 ft²


















































































