Renovated four-bed home with large south-facing garden and ample parking in Balsham.
- Recently renovated, contemporary kitchen with Neff appliances
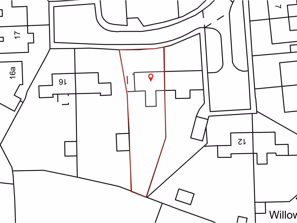
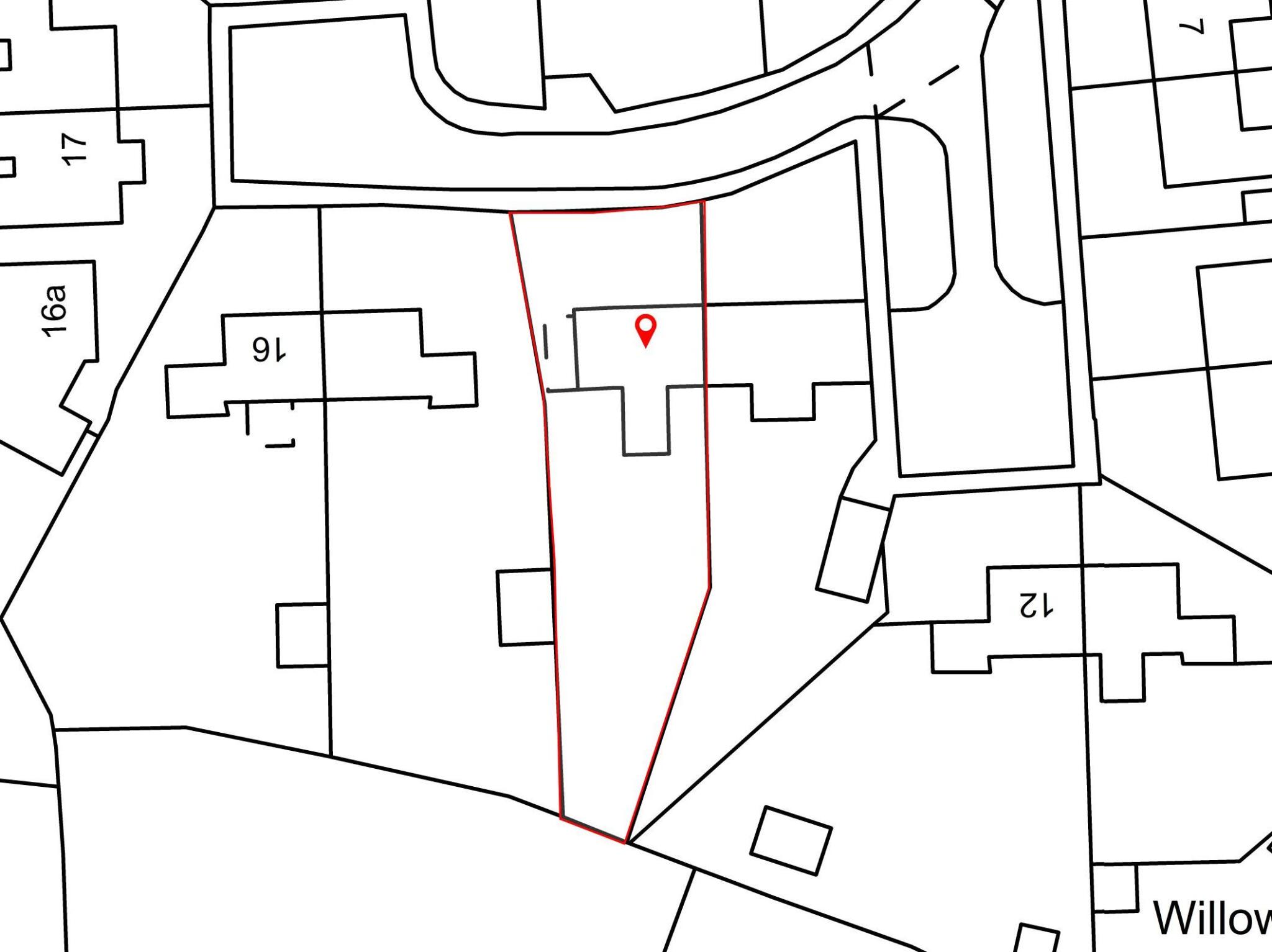
- South-facing, generous mature rear garden (approx. 0.14 acre)
- Off-street parking for 3–4 vehicles on paved driveway
- Three double bedrooms plus a single and loft room
- One family bathroom plus ground-floor cloakroom only
- Irregular, tapering plot may limit extension or subdivision
- EPC rating D (64); broadband speeds reported as slow
- Quiet cul-de-sac location in popular Balsham village
This recently renovated four-bedroom semi-detached house sits on a mature, south-facing 0.14-acre plot in a quiet Balsham cul-de-sac, offering a comfortable family layout and generous outdoor space. The ground floor centres on a bright open-plan kitchen/dining room with full-width bi-fold doors to the garden, a living room with an open fireplace and a conservatory that extends year-round living. Up to 3–4 cars can be accommodated on the paved off-street parking area to the front.
Three double bedrooms and a single bedroom suit family sleeping needs, while a versatile loft room provides useful extra space for a study or hobby area. The kitchen is high-spec (Häcker units with Neff appliances) and the house has been substantially updated, presenting a move-in ready option for buyers wanting contemporary finishes within a village setting.
Buyers should note practical limitations: the property has one full family bathroom plus a ground-floor cloakroom only, the Energy Performance Certificate is D (64), and broadband speeds in the area are reported as slow. The plot is irregular and tapers towards the rear, which creates a large private garden but may constrain serious extension, subdivision or capital-improvement options.
Overall, this home will suit families seeking generous outdoor amenity and flexible living close to good local primary and secondary schools, and within easy commuting distance of Cambridge. The balance of modern interiors and a substantial south-facing garden is the key appeal, with straightforward maintenance and some practical trade-offs to consider.
4 bedroom semi-detached house for sale in The Rookery, Balsham, Cambridge, CB21 — £475,000 • 4 bed • 2 bath • 1394 ft²
3 bedroom semi-detached house for sale in Princes Close, Balsham, Cambridge, CB21 — £350,000 • 3 bed • 1 bath • 1094 ft²
3 bedroom semi-detached house for sale in High Street, Balsham, CB21 — £385,000 • 3 bed • 1 bath • 936 ft²
3 bedroom semi-detached house for sale in Princes Close, Balsham, CB21 — £375,000 • 3 bed • 2 bath • 1146 ft²
4 bedroom detached house for sale in Woodhall Lane, Balsham, Cambridge, CB21 — £750,000 • 4 bed • 2 bath • 2240 ft²
3 bedroom semi-detached house for sale in Farriers Way, Balsham, Cambridge, Cambridgeshire, CB21 — £500,000 • 3 bed • 2 bath • 1302 ft²






















































































































