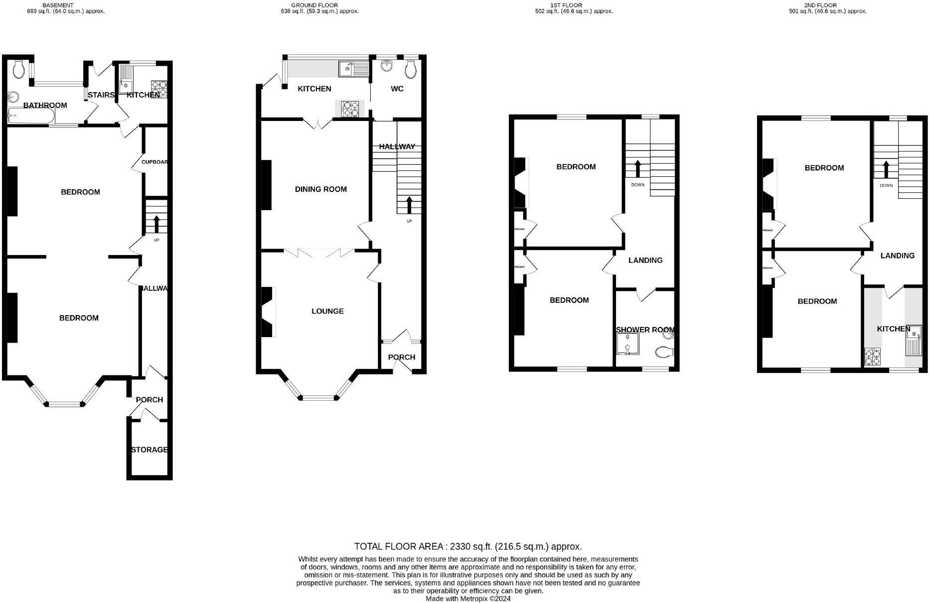
Character-filled family home with basement flat and renovation potential.
Six bedrooms across four floors with extensive period features
A substantial six-bedroom Victorian end-of-terrace arranged over four floors, this period property blends original features with clear renovation potential. High ceilings, bay windows, ceiling roses, cornicing and fireplaces create strong character throughout; a self-contained basement flat offers rental or guest income possibilities.
The house requires modernisation and some energy upgrades: EPC rating D, assumed solid brick walls without insulation and an unknown glazing install date. There are two bathrooms to serve six bedrooms, so updating or reconfiguring sanitary facilities may be necessary for family living or full rental use. The rear garden is well-maintained, private and neatly landscaped, offering an outdoor retreat despite the small plot.
Positioned close to Ramsgate town centre, harbour and local amenities, the home suits families seeking space near good primary schools and transport links, or investors targeting holiday-let or HMO conversion (subject to consents). Freehold tenure, mains gas heating and fast broadband add practical benefits; note the local area shows higher deprivation metrics and average crime and mobile signal levels.
Overall, this is a character-rich property with considerable upside for buyers prepared to modernise and improve energy performance. The basement flat and generous internal footprint are valuable strengths, but plan for renovation costs, upgraded insulation, and possible reconfiguration of bathroom provision to realise the home's full potential.
6 bedroom semi-detached house for sale in Albert Road, Ramsgate, CT11 — £550,000 • 6 bed • 2 bath • 2069 ft²
3 bedroom terraced house for sale in Poplar Road, Ramsgate, CT11 — £325,000 • 3 bed • 2 bath • 1315 ft²
5 bedroom terraced house for sale in Cannonbury Road, Ramsgate, CT11 — £400,000 • 5 bed • 3 bath • 1872 ft²
5 bedroom semi-detached house for sale in Hollicondane Road, Ramsgate, Kent, CT11 — £325,000 • 5 bed • 2 bath • 1540 ft²
4 bedroom semi-detached house for sale in Vale Road, Ramsgate, CT11 — £375,000 • 4 bed • 1 bath • 1384 ft²
4 bedroom end of terrace house for sale in Avenue Road, Ramsgate, CT11 8ET, CT11 — £350,000 • 4 bed • 1 bath • 1461 ft²














































































































































































































































































































