Bright, well-located home minutes from stations and green spaces.
One double bedroom with high ceilings and sash windows
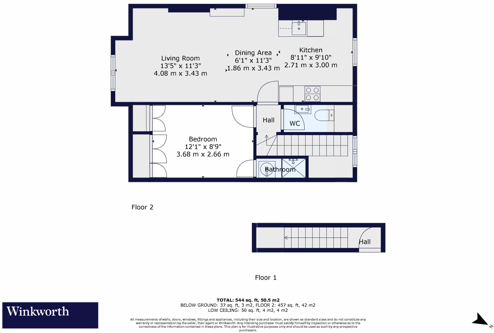
Set within a handsome Victorian conversion on Lewin Road, this one-bedroom flat offers generous ceiling heights, sash windows and period character. The bright reception room and separate fitted kitchen with dining area suit everyday living and occasional entertaining.
The double bedroom is quietly positioned and the modern shower room adds practical convenience. At about 544 sq ft, the layout feels roomy for a one-bedroom apartment and benefits from fast broadband and excellent mobile signal. There is no flooding risk and the lease has 104 years remaining.
Practical considerations include leasehold tenure with a small annual ground rent of £200 and a timber-frame wall construction that appears to lack cavity insulation (may need thermal upgrades). The local area is lively with good schools and green spaces nearby, plus strong rail links into central London — an attractive entry point for first-time buyers seeking character and commuter convenience. Note the neighbourhood records higher crime levels than average, which some buyers may wish to investigate further.
1 bedroom apartment for sale in Lewin Road, Streatham, SW16 — £325,000 • 1 bed • 1 bath • 495 ft²
1 bedroom apartment for sale in Lewin Road, Streatham, SW16 — £300,000 • 1 bed • 1 bath • 513 ft²
1 bedroom apartment for sale in Gleneldon Road, Streatham, SW16 — £275,000 • 1 bed • 1 bath • 525 ft²
1 bedroom flat for sale in Gleneldon Road, Streatham, London, SW16 — £325,000 • 1 bed • 1 bath • 600 ft²
1 bedroom flat for sale in Valley Road, Streatham, SW16 — £280,000 • 1 bed • 1 bath • 516 ft²
2 bedroom apartment for sale in Lewin Road, Streatham, SW16 — £575,000 • 2 bed • 1 bath • 870 ft²










































