Affordable family home near transport links and city amenities.
Four bedrooms offering flexible family accommodation
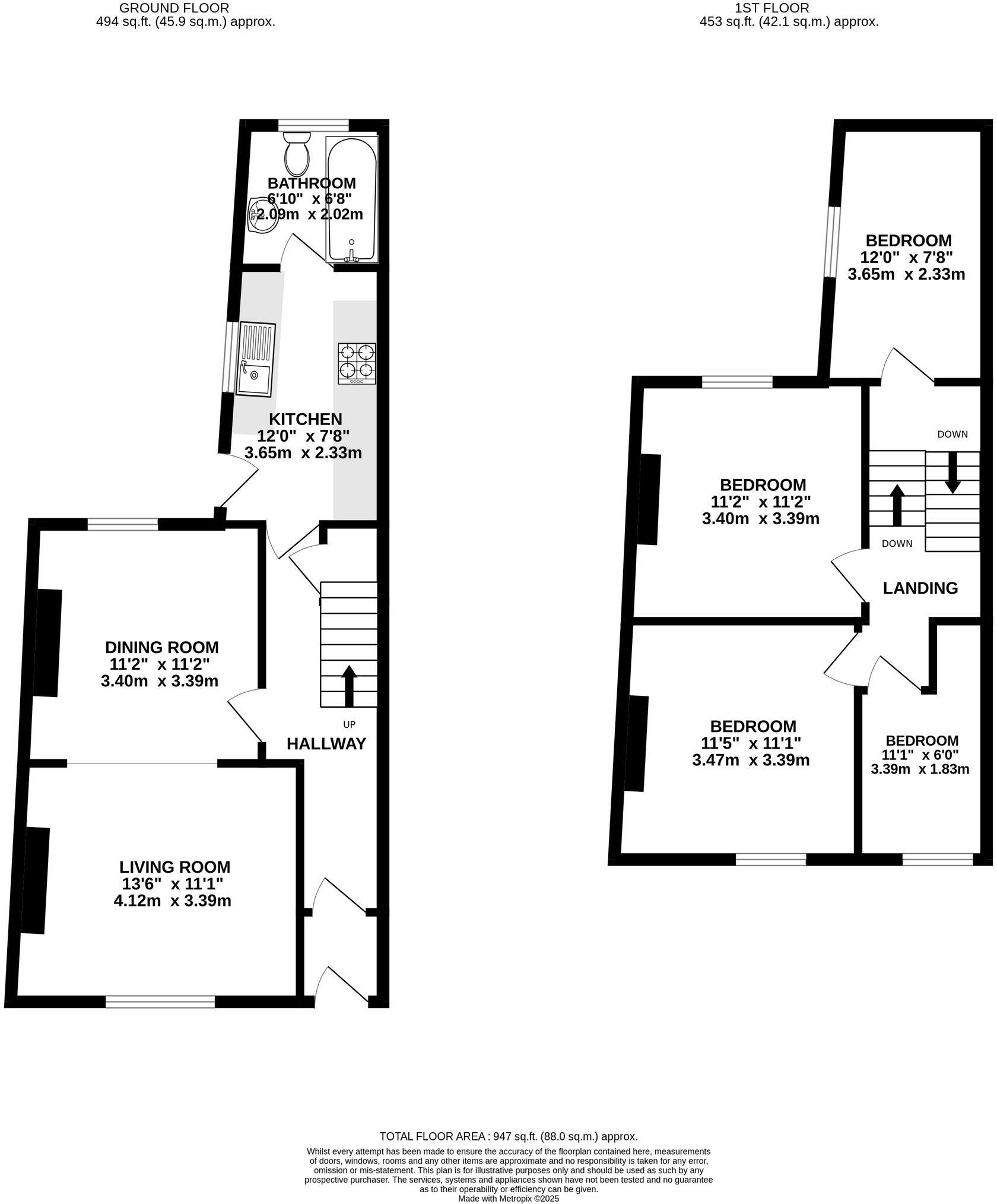
This four-bedroom Victorian mid-terrace offers flexible family accommodation across two floors, close to Newport city centre and commuter links. The house retains period brickwork and higher ceilings in the living space, giving a sense of character and light despite the property’s overall small footprint.
Practical benefits include mains gas central heating, fibre-to-the-premises broadband, and a private enclosed rear garden with a detached outbuilding currently used as a home gym. The garden is low-maintenance and the outbuilding could serve as a home office or hobby room.
Notable issues are straightforward and material: the rear extension was completed without building regulation or approval documents, and the solid brick walls are assumed uninsulated. There is one bathroom serving four bedrooms. The area records higher crime and significant deprivation statistics, which buyers should weigh alongside the property’s affordability and transport convenience.
This home will suit buyers seeking a characterful, affordable family property with scope to improve and modernise. Interested purchasers should commission their own surveys and checks, particularly regarding the unapproved extension and potential insulation or energy-efficiency upgrades.
4 bedroom terraced house for sale in Morden Road, Newport, NP19 — £240,000 • 4 bed • 1 bath • 1399 ft²
3 bedroom terraced house for sale in Walmer Road, Newport, NP19 — £225,000 • 3 bed • 2 bath • 955 ft²
4 bedroom terraced house for sale in Caerau Road, Newport, NP20 — £250,000 • 4 bed • 2 bath • 1442 ft²
4 bedroom terraced house for sale in Fairoak Avenue, Newport, NP19 — £225,000 • 4 bed • 1 bath • 1163 ft²
3 bedroom terraced house for sale in Spring Street, Newport, NP20 — £170,000 • 3 bed • 1 bath • 915 ft²
4 bedroom detached house for sale in Victoria Avenue, Newport, NP19 — £275,000 • 4 bed • 2 bath • 1690 ft²






































































