Let, modernised mixed-use block with parking and immediate income.
Freehold mixed-use block with retail and four residential units
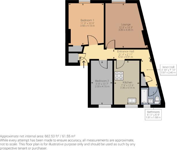
A compact, centrally located mixed-use building on Newerne Street offering an immediate rental income stream. The freehold sale includes a ground-floor retail unit and four modernised residential units (two 2-bed apartments, one 1-bed maisonette) producing a total gross income of about £31,800 per annum. All residential units are let on ASTs and the retail unit is under lease, providing hands-off cashflow from day one.
Recent modernisation and double glazing reduce near-term capital spend; the block benefits from off-street rear parking/courtyard and gas-fired central heating. Council Tax Band A keeps occupier running costs low. The property’s traditional Georgian/mid-terrace frontage suits the town-centre location and should remain attractive to local tenants and passing retail trade.
Material considerations for investors: the building lies in an area with higher crime and local deprivation indicators and a medium flood risk—factors that can affect rental levels and insurance costs. Constructed before 1900 with assumed uninsulated solid stone walls, there may be longer-term energy-efficiency upgrades required. Total internal area is modest (c. 662 sq ft reported), so rental growth is likely incremental rather than dramatic.
This is a practical, let-and-forget income asset for a buyer seeking steady town-centre returns with some scope to add value through energy upgrades, active asset management, or modest reconfiguration where leases permit.
Shop for sale in Newerne Street, Lydney, GL15 — £150,000 • 1 bed • 1 bath • 996 ft²
5 bedroom mixed use property for sale in Newland Street, Coleford, GL16 — £325,000 • 5 bed • 3 bath • 2890 ft²
2 bedroom mixed use property for sale in Market Street, Cinderford, GL14 — £220,000 • 2 bed • 1 bath • 2099 ft²
Shop for sale in High Street, Lydney, GL15 — £325,000 • 1 bed • 1 bath • 1733 ft²
12 bedroom terraced house for sale in Long Street, Wotton-under-Edge, Gloucestershire, GL12 — £1,250,000 • 12 bed • 14 bath • 689 ft²
Commercial property for sale in Market Street, Cinderford, GL14 — £125,000 • 1 bed • 1 bath • 450 ft²


































