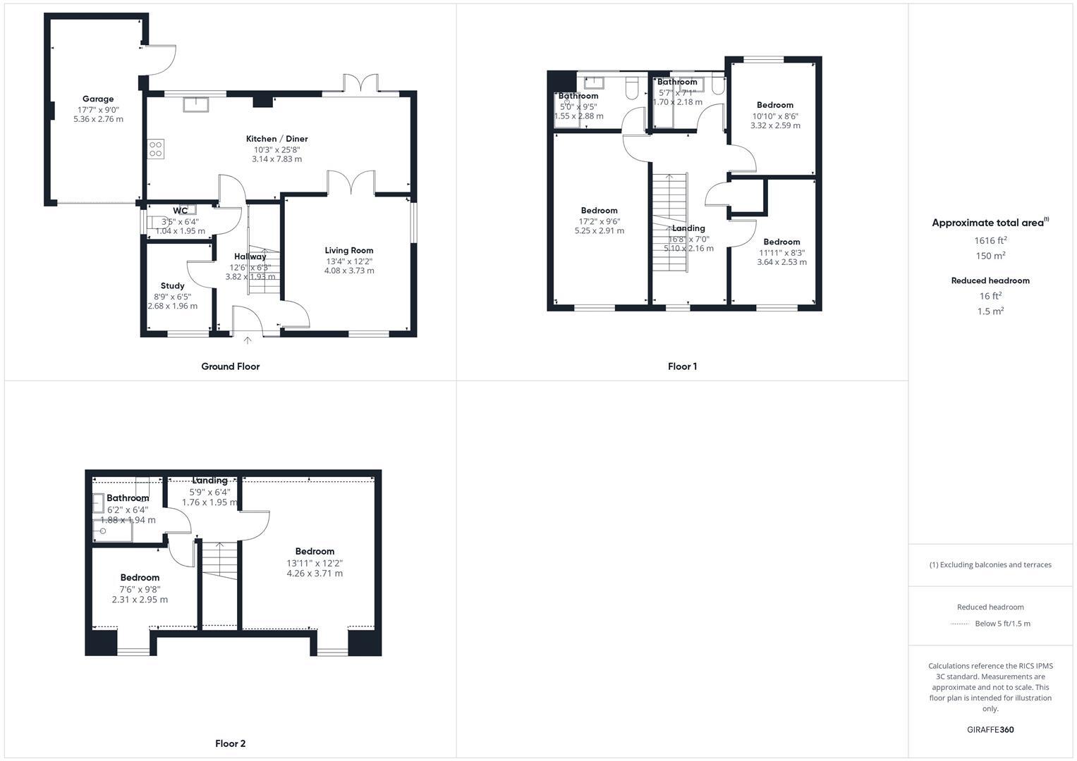
Five-bedroom detached house with garage, study and landscaped low-maintenance garden..
Five bedrooms across three floors, including master with en suite
Spacious five-bedroom detached house arranged over three floors, offered freehold and with no upper chain. The home suits growing families who need flexible space: a separate study ideal for homework or remote working, a large open-plan kitchen/diner with French doors to the low-maintenance rear garden, and a master bedroom with en suite. The property includes an integral garage with light and power plus driveway parking for two cars.
Positioned on the popular Berryfields development, the house is well placed for local schools, shops, Aylesbury Parkway station and green spaces. Travel connections to the M40/Bicester and London Marylebone (under an hour) make this practical for commuters as well as families. The neighbourhood is affluent with good mobile and broadband speeds.
Practical points are set out plainly: accommodation spreads over three floors, which may not suit buyers who need single-level living, and council tax is described as expensive. The garden is landscaped for low maintenance rather than extensive outdoor space. Overall, this is a contemporary family home offering convenience, flexible layout and easy upkeep — viewing recommended to appreciate the flow and room sizes.
5 bedroom detached house for sale in Aylesbury, Berryfields, HP18 — £575,000 • 5 bed • 3 bath • 1670 ft²
3 bedroom detached house for sale in Paradise Orchard, Berryfields, Aylesbury, HP18 — £500,000 • 3 bed • 2 bath • 1561 ft²
4 bedroom house for sale in Paradise Orchard, Aylesbury, Buckinghamshire, HP18 — £425,000 • 4 bed • 2 bath • 1358 ft²
5 bedroom town house for sale in Nicholas Charles Crescent, Aylesbury, HP18 — £490,000 • 5 bed • 3 bath • 1609 ft²
3 bedroom semi-detached house for sale in Brandy Street, Berryfields, Aylesbury, HP18 — £405,000 • 3 bed • 2 bath • 1234 ft²
3 bedroom link detached house for sale in Tydemans Close, Aylesbury, HP18 — £415,000 • 3 bed • 2 bath • 1055 ft²














































































