Spacious, well-located city flat ideal for first-time buyers or buy-to-let investors.
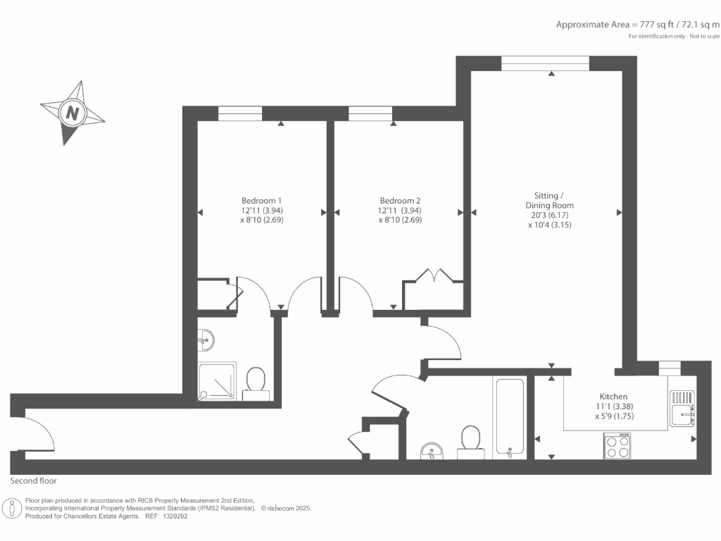
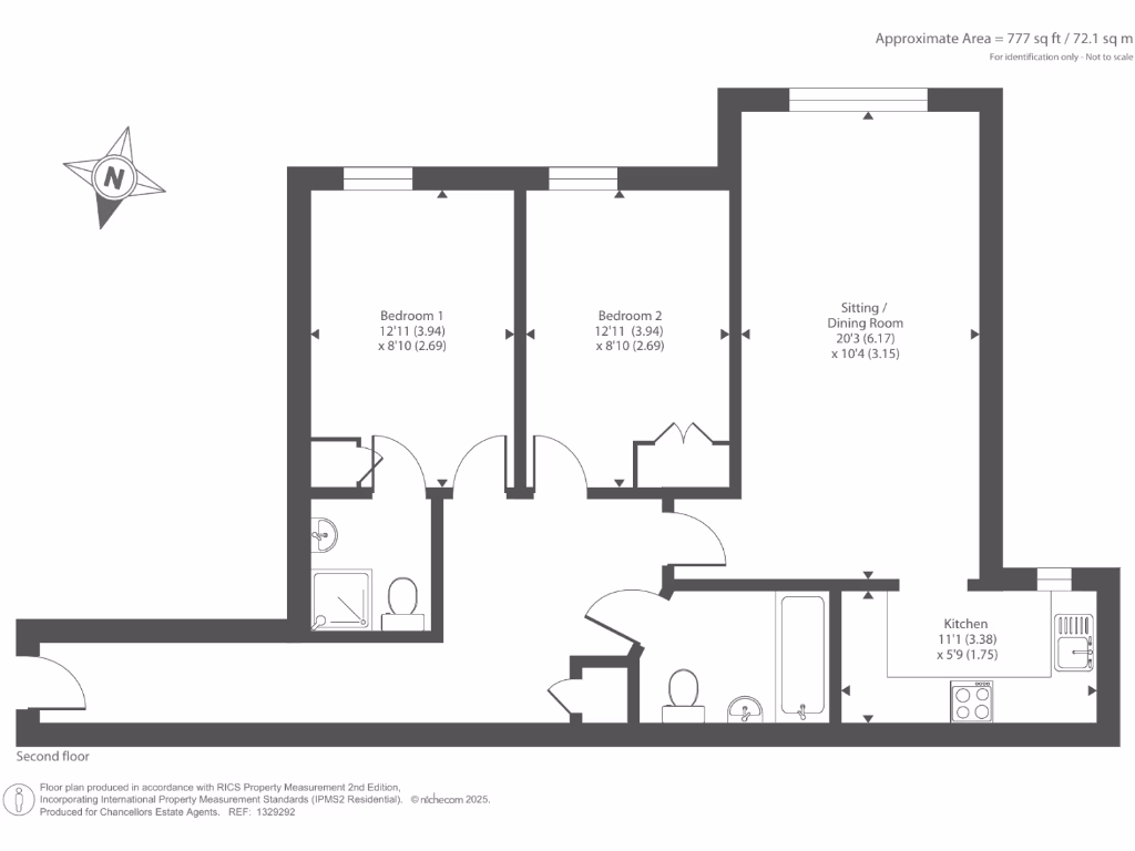
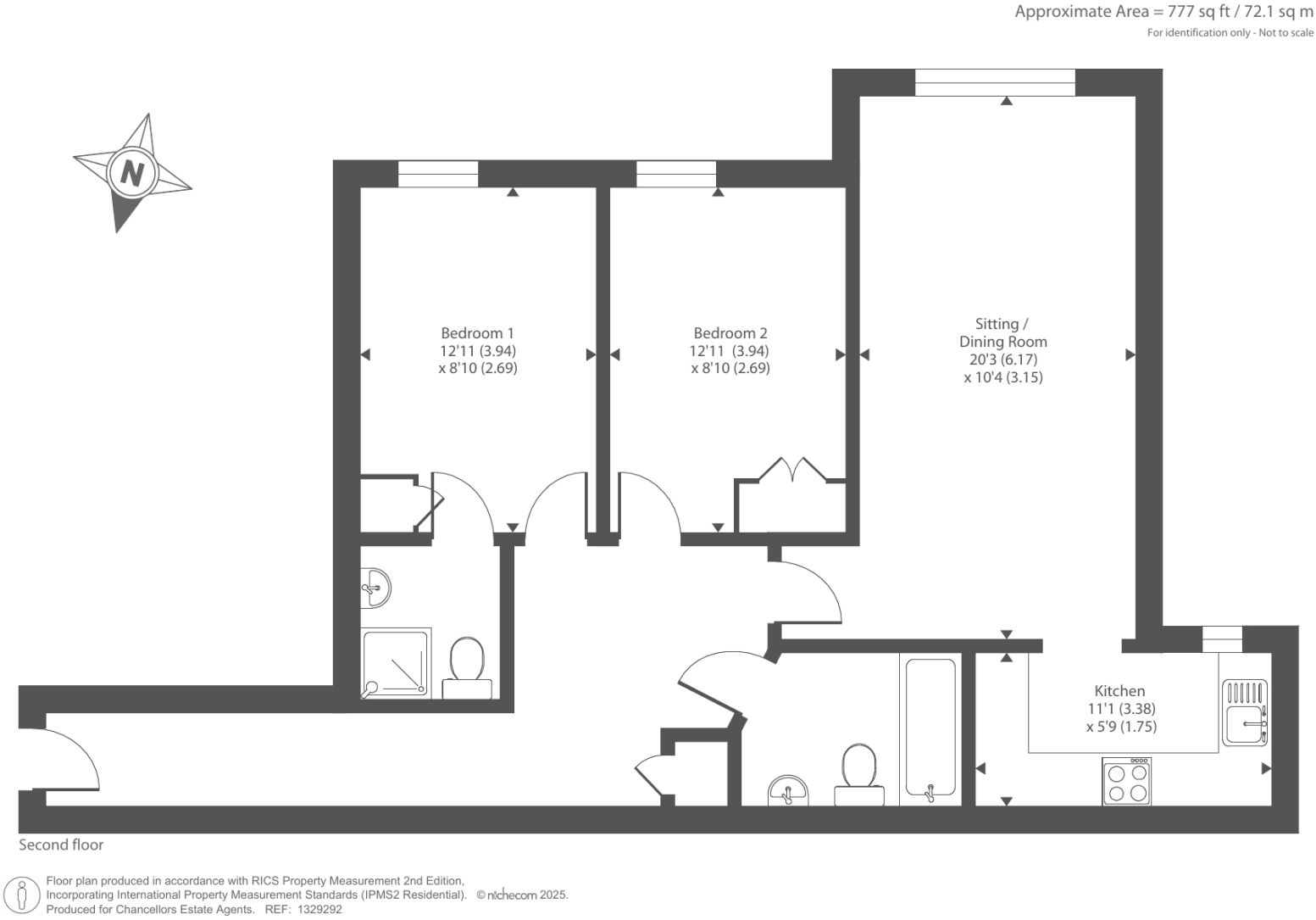
Two double bedrooms; ensuite to master
Open-plan living/dining with arch to naturally-lit kitchen
Communal gardens and off-street parking included
About 777 sq ft — roomy for a two-bedroom flat
Leasehold with approximately 98 years remaining
Built 1996–2002; double glazing (install date unknown)
Gas boiler and radiators; mains gas supply
Inner-city location: higher crime and area deprivation noted
This two-bedroom flat in East Reading is a practical, well-sized home for a first-time buyer or investor seeking proximity to town amenities. The main bedroom has an ensuite, and the open-plan living/dining room with an arched kitchen creates a bright, adaptable living space. At about 777 sq ft, the layout feels generous for a city flat.
The development sits 600m from the River Kennet and is convenient for the Hospital, University and town centre, with good mobile signal and fast broadband—useful for commuting or studying. Communal gardens and off-street parking add everyday convenience. The building dates from the late 1990s/early 2000s, with double glazing and gas central heating via boiler and radiators.
Important practical points: the property is leasehold with approximately 98 years remaining, and council tax is moderate. The local area is inner-city and classed as deprived with higher crime levels, which could affect resale or rental appeal. The glazing install date is unknown and some communal elements may need ongoing maintenance; buyers should budget for routine upkeep and confirm any service charges and ground rent.
Overall, this flat suits someone wanting a roomy, well-located city base with good transport, broadband and nearby services. It offers clear potential for comfortable city living or rental income, provided you accept leasehold ownership and the realities of the surrounding area.
 2 bedroom flat for sale in 29 Haden Square, Reading, RG1 — £275,000 • 2 bed • 2 bath • 758 ft²
 2 bedroom flat for sale in 29 Haden Square, Reading, RG1 — £275,000 • 2 bed • 2 bath • 758 ft² 2 bedroom flat for sale in Central Reading, Berkshire, RG1 — £240,000 • 2 bed • 1 bath • 667 ft²
 2 bedroom flat for sale in Central Reading, Berkshire, RG1 — £240,000 • 2 bed • 1 bath • 667 ft² 2 bedroom apartment for sale in Kennet Street, Reading, Berkshire, RG1 — £315,000 • 2 bed • 2 bath • 876 ft²
 2 bedroom apartment for sale in Kennet Street, Reading, Berkshire, RG1 — £315,000 • 2 bed • 2 bath • 876 ft² 2 bedroom flat for sale in Reading, Berkshire, RG1 — £180,000 • 2 bed • 1 bath • 616 ft²
 2 bedroom flat for sale in Reading, Berkshire, RG1 — £180,000 • 2 bed • 1 bath • 616 ft² 2 bedroom apartment for sale in Alexandra Road, Reading, Berkshire, RG1 — £325,000 • 2 bed • 2 bath • 731 ft²
 2 bedroom apartment for sale in Alexandra Road, Reading, Berkshire, RG1 — £325,000 • 2 bed • 2 bath • 731 ft² 2 bedroom flat for sale in Central Reading, Berkshire, RG1 — £300,000 • 2 bed • 2 bath • 818 ft²
 2 bedroom flat for sale in Central Reading, Berkshire, RG1 — £300,000 • 2 bed • 2 bath • 818 ft²


































































