EH3 7RA - 6 bedroom ground floor maisonette for sale in 22 Chester St…

View on Property Piper

6 bedroom ground floor maisonette for sale in 22 Chester Street, Edinburgh, EH3

Summary - Chester Street, Edinburgh, Midlothian, EH3 7RA EH3 7RA

6 bed 5 bath Ground Maisonette

Grand West End maisonette with huge character, patio and separate garage opportunity..
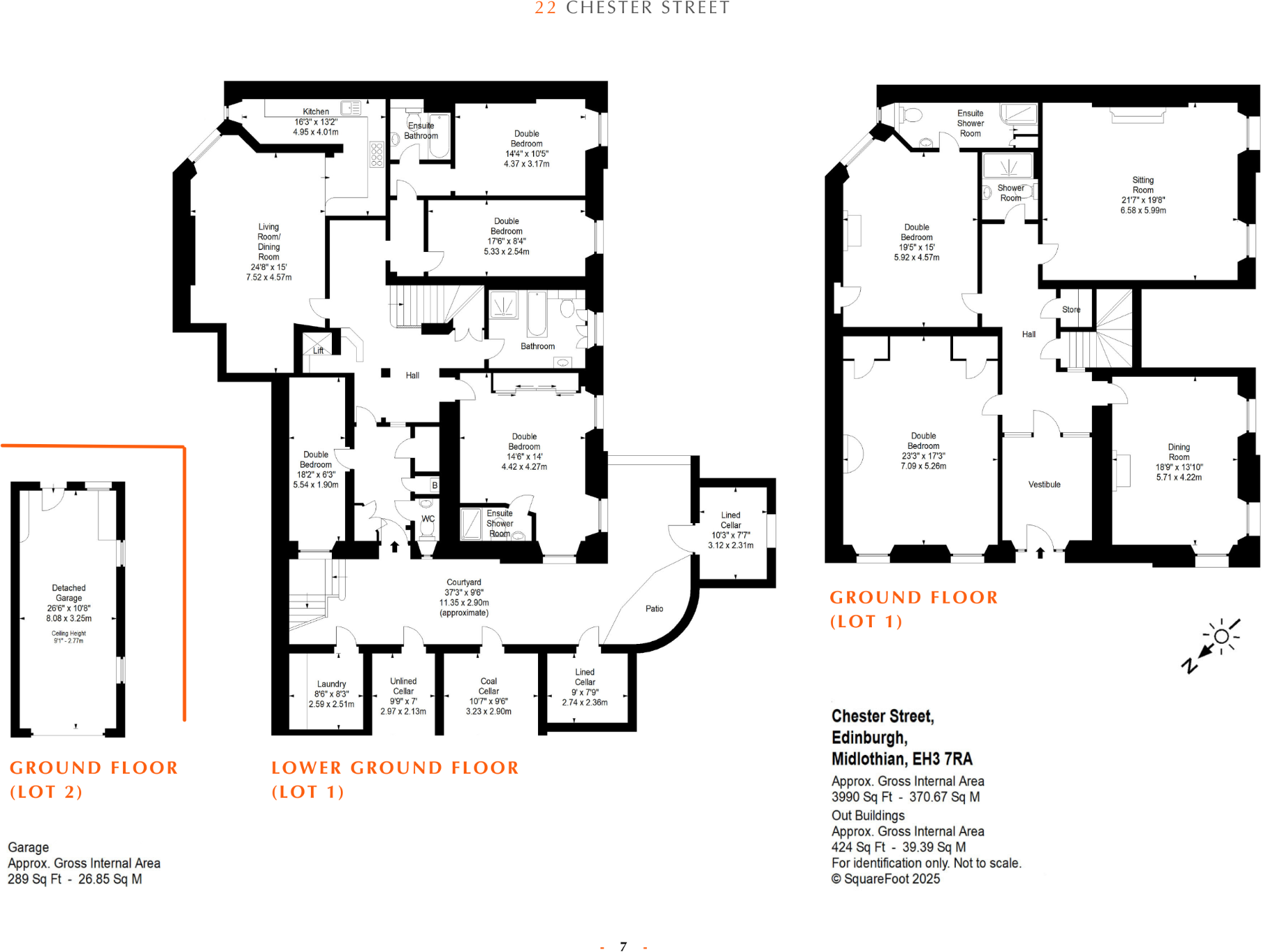
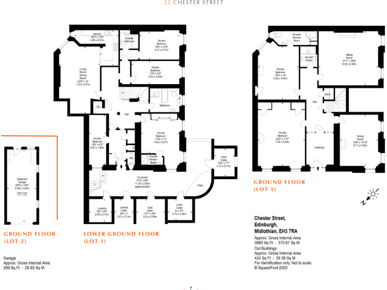
Main‑door ground and lower ground maisonette, approx. 3,990 sq ft
Six double bedrooms, five bathrooms, three reception rooms
Striking Victorian features: 4m ceilings, cornicing, sash windows
Wraparound slate patio; five cellars (three dry‑lined with power)
Large powered garage available separately (Lot 2)
Category B listed — alterations restricted, may complicate refurbishment
EPC Band D; budget for energy improvements where needed
Excellent mobile signal and fast broadband; near Haymarket and tram
An impressive main‑door ground and lower‑ground maisonette occupying a corner position on Chester Street in Edinburgh’s West End. The apartment retains strong Victorian character throughout: circa 4m high ceilings, ornate cornicing, original sash-and-case windows with shutters, solid wood floors and extensive period panelling. The ground floor offers generous reception rooms and a principal bedroom with ensuite; the lower floor provides four further double bedrooms, an open-plan kitchen/reception, a third reception room and a bar area. Around 3,990 sq ft in total with a slate‑tiled wraparound patio and five cellars (three dry‑lined with power). A large powered garage on Chester Street Lane is available separately (Lot 2).

This property will suit buyers seeking a grand, characterful home or an investor targeting premium central Edinburgh lets, given the multiple ensuite bedrooms and versatile layout. Practical positives include excellent mobile signal, fast broadband and immediate access to Haymarket and the tram to the airport. The local area offers abundant amenities and several well‑regarded independent schools nearby.

Important considerations are factual: 22 Chester Street is Category B listed, which will restrict alterations and may complicate planning or refurbishment. The EPC is band D. The garage is not included in the lot and must be purchased separately. The wider data supplied flags area deprivation; prospective buyers should verify local data and rental demand independently. Buyers should also budget for listed‑property maintenance and obtain specialist advice before committing.

Property Details

Image Descriptions

Floorplan Description

Rooms

Textual Property Features

Target Audience

AI Tags

Detected Visual Features

Nearest Bars And Restaurants

,,,,}

Nearest General Shops

,,}

Nearest Grocery shops

,,}

Nearest Supermarkets

,,}

Nearest Religious buildings

,,}

Nearest Medical buildings

,,,}

Nearest Airports

}

Nearest Leisure Facilities

,,,,}

Nearest Tourist attractions

,,}

Nearest Train stations

,,,,}

Nearest Bus stations and stops

,,,,}

Nearest Hotels

,,}

Tags

Local Market Stats

AirBnB Data

Similar Properties

Meta

High Res Images

Compatible Images

Low res Images

Thumbnails

Raw Images

High Res Floorplan Images

Compatible Floorplan Images

Low res Floorplan Images

FloorplanImages Thumbnail

Raw Floorplan Images