Affordable renovation close to transport and hospital, ideal for hands-on buyers.
West-facing private garden ideal for evening sun
Walking distance to Colchester Hospital and close to station
Compact 598 sq ft; small rooms and limited plot size
Requires cosmetic works throughout; renovation needed
Solid brick construction; no assumed wall insulation
Double glazing installed post-2002; mains gas heating
Sold at online auction 18 Nov 2025 — fees apply on exchange
Admin fee £1,200 and buyer's premium £1,140 payable
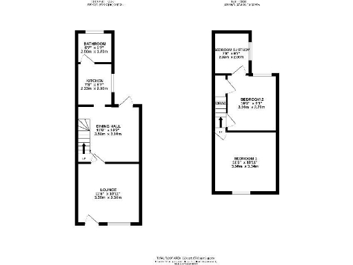
This Victorian semi-detached home offers a compact, characterful base with clear scope to add value. At about 598 sq ft, the layout provides two reception rooms, a ground-floor bathroom and two/three bedrooms — suitable for a small family, first-time buyer or investor seeking a renovation project. A west-facing private garden and proximity to Colchester Hospital and the train station are practical everyday strengths.
The property requires cosmetic works throughout and is sold at auction on 18th November 2025, making it a quick conditional purchase route for buyers prepared to move fast. Expect visible wear, dated finishes and likely upgrades for insulation and modern kitchen or bathroom fittings. The house has double glazing fitted after 2002, mains gas central heating and solid brick walls (no installed wall insulation assumed).
Practical costs and sale terms are important: freehold tenure, EPC rating D and Council Tax Band B, plus an administration fee of £1,200 and a buyer’s premium of £1,140 payable on exchange. The property will be sold as seen; consult the legal pack for disbursements and full auction conditions before bidding.
For buyers who want a renovation with good transport links and local amenities, this home is an affordable entry into Colchester with clear potential to improve value — but budget for cosmetic work, insulation upgrades and auction-related fees.
3 bedroom end of terrace house for sale in King George Road, COLCHESTER, Essex, CO2 — £270,000 • 3 bed • 1 bath • 912 ft²
2 bedroom terraced house for sale in Greenstead Road, Colchester, CO1 — £155,000 • 2 bed • 1 bath • 639 ft²
2 bedroom end of terrace house for sale in Kendall Road, Colchester, Essex, CO1 — £220,000 • 2 bed • 1 bath • 587 ft²
3 bedroom detached bungalow for sale in 46 Elmstead Road, Colchester, Essex, CO4 3AA, CO4 — £210,000 • 3 bed • 1 bath • 1054 ft²
2 bedroom end of terrace house for sale in 66 Artillery Street, New Town, Colchester, Essex, CO1 2JQ, CO1 — £120,000 • 2 bed • 1 bath
2 bedroom semi-detached house for sale in Bergholt Road, North Station, CO4 — £230,000 • 2 bed • 1 bath • 656 ft²










































