Chain-free one-bedroom with private south/west garden and scope to extend.
Chain free with over 104 years remaining on lease
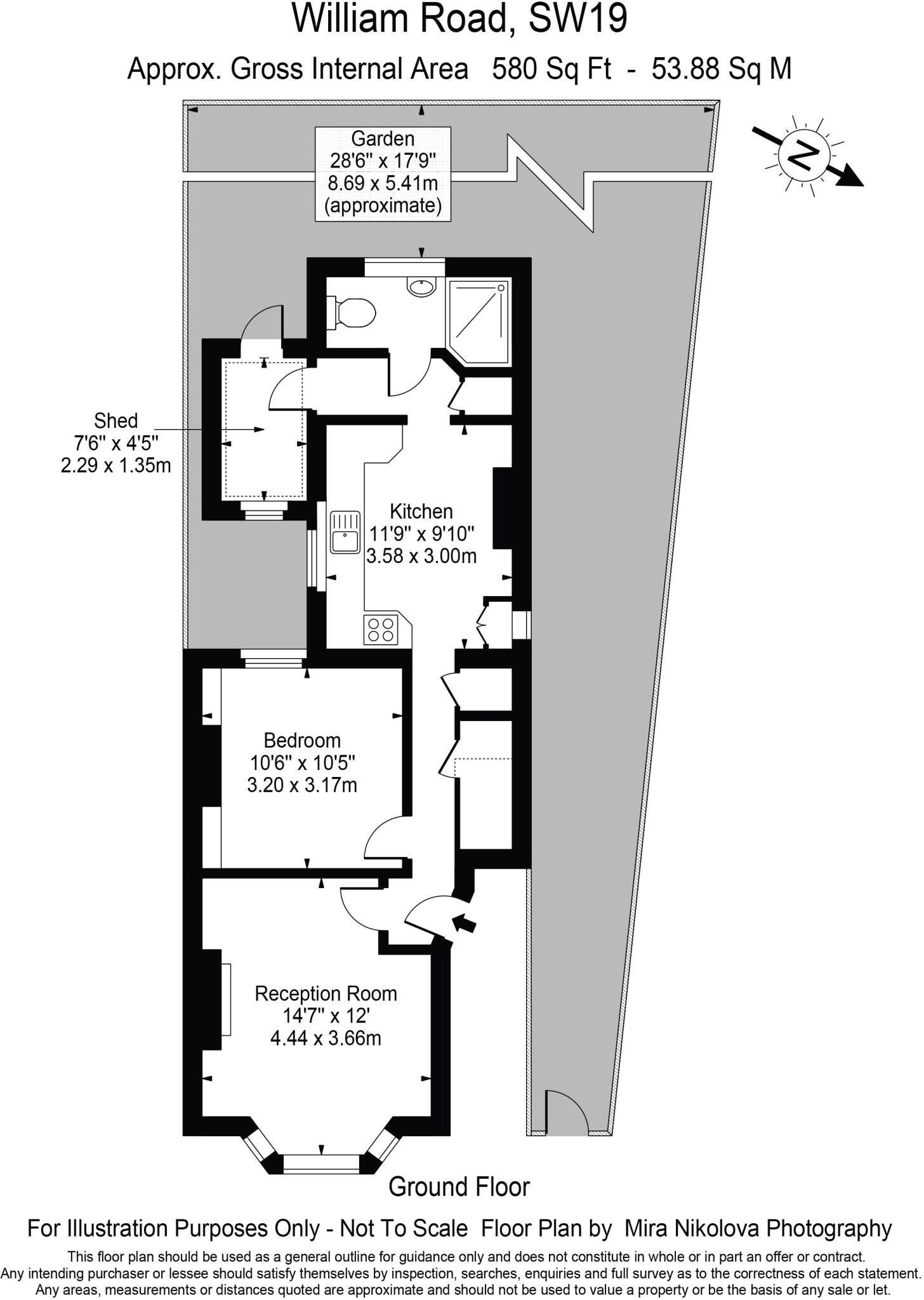
Set on a quiet Wimbledon street, this ground-floor Victorian conversion offers a bright reception with bay window, one double bedroom overlooking a mature south/west garden, and a generous kitchen/breakfast room. At about 580 sq ft the layout is well-proportioned for a single occupant or couple, and the private outdoor space is an unusually usable asset for central-suburban flats.
The flat is chain free and comes with a long lease of over 104 years, double glazing and mains gas heating. There is scope to extend into the side return subject to usual council planning permission, offering clear potential to increase living space (application not confirmed). Proximity to Wimbledon town centre, stations and local parks makes daily travel and amenities very convenient.
The property does require modernisation: the kitchen is dated and internal finishes need updating. The building’s solid-brick walls likely lack cavity insulation, so buyers should allow for energy and upgrade works. Overall, this is a practical starter home or buy-to-let opportunity that rewards investment with improved comfort and potential rental uplift.
1 bedroom flat for sale in Hartfield Crescent, Wimbledon, SW19 — £399,950 • 1 bed • 1 bath • 562 ft²
1 bedroom flat for sale in Kingston Road, Wimbledon, London, SW19 — £375,000 • 1 bed • 1 bath • 446 ft²
1 bedroom flat for sale in Ridley Road, London, SW19 — £485,000 • 1 bed • 1 bath • 486 ft²
1 bedroom flat for sale in The Drive, Wimbledon, SW20 — £600,000 • 1 bed • 1 bath • 668 ft²
1 bedroom flat for sale in Merton Road, Wimbledon, SW19 — £325,000 • 1 bed • 1 bath • 420 ft²
1 bedroom flat for sale in Broadway Court, Wimbledon, SW19 — £269,950 • 1 bed • 1 bath • 534 ft²






































