Ready-to-move-in three-bedroom family home near Aldershot station and schools.
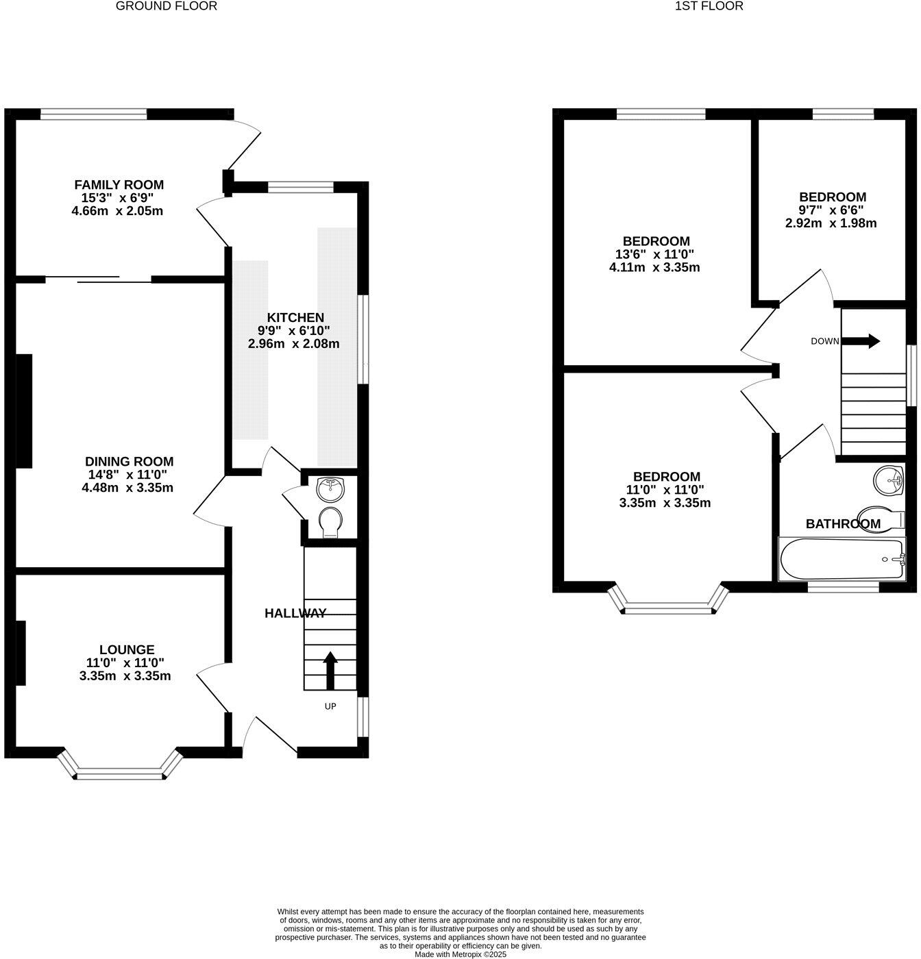
Three bedrooms arranged over two floors, recently renovated throughout
Three reception rooms plus fitted kitchen and downstairs cloakroom
Generous rear garden, mature planting and private patio area
Driveway parking for multiple cars and garage on a generous plot
About 783 sq ft — compact for a three-bed, efficient layout
EPC D (55); cavity walls reported without insulation (assumed)
Within ~1 mile of Aldershot station — direct trains to London Waterloo
Close to several Good/Outstanding primary and secondary schools
This three-bedroom semi-detached home on Elston Road is presented recently renovated and ready to occupy, making it a practical choice for families and commuters. The ground floor provides three versatile reception rooms and a fitted kitchen, while the first floor offers two double bedrooms, a further bedroom and a family bathroom. A downstairs cloakroom adds everyday convenience.
Externally the property sits on a generous plot for the road, with a sizable rear garden, driveway parking for multiple vehicles and a garage. Located roughly a mile from the train station with direct services to London Waterloo, it is within walking distance of well-regarded local schools and the Basingstoke Canal — useful for school runs and leisure.
Buyers should note the EPC rating of D (55) and that the cavity walls are recorded as having no installed insulation (assumed). The house dates from the 1930s, so while many elements have been updated during the recent refurbishment, some period fabric may require ongoing maintenance or improvement to reach higher energy efficiency.
At about 783 sq ft, the accommodation is compact for a three-bedroom home; this makes it especially suited to families seeking efficient, ready-to-live-in space or investors targeting strong commuter rental demand. Council Tax Band D and a freehold tenure are straightforward ownership features.
3 bedroom semi-detached house for sale in Holly Road, Aldershot, Hampshire, GU12 — £400,000 • 3 bed • 1 bath • 1109 ft²
3 bedroom semi-detached house for sale in Farm Road, Aldershot, Hampshire, GU12 — £415,000 • 3 bed • 1 bath • 917 ft²
3 bedroom semi-detached house for sale in Lower Farnham Road, Aldershot, Hampshire, GU12 — £400,000 • 3 bed • 1 bath • 767 ft²
3 bedroom semi-detached house for sale in Coronation Road, Aldershot, Hampshire, GU11 — £400,000 • 3 bed • 1 bath • 861 ft²
3 bedroom semi-detached house for sale in Churchill Avenue, Aldershot, Hampshire, GU12 — £500,000 • 3 bed • 2 bath • 816 ft²
3 bedroom semi-detached house for sale in Weybourne Road, Aldershot, Hampshire, GU11 — £450,000 • 3 bed • 2 bath • 1098 ft²






























































