Two double bedrooms with courtyard and en-suite potential close to amenities.
Chain-free freehold Victorian terraced house
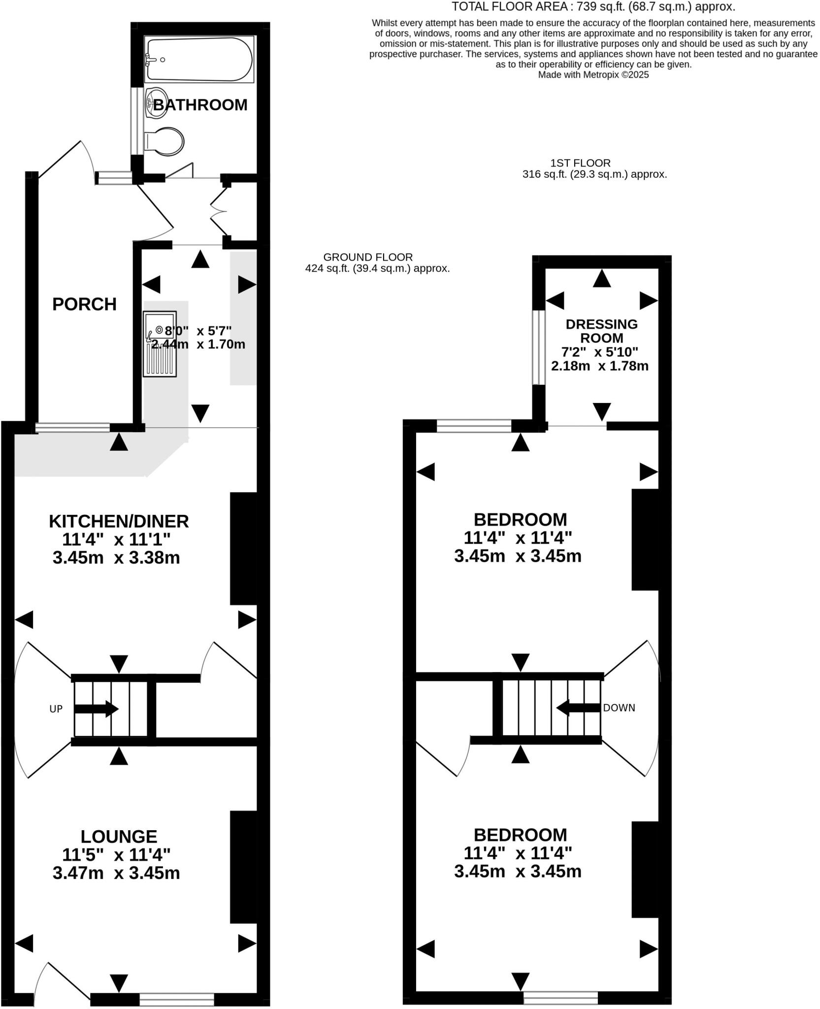
A compact Victorian terraced house just a short walk from Lincoln city centre, offered chain-free and freehold. The layout includes a lounge, sizeable kitchen-diner, ground-floor bathroom, two double bedrooms and a dressing room off the main bedroom that could be converted into an en-suite. A small enclosed courtyard provides low-maintenance outdoor space.
The property will particularly suit first-time buyers or investors seeking a manageable, city-centre residence with straightforward refurbishment potential. The kitchen shows wear and would benefit from updating; internal rooms are generally small and ceilings are standard height, reflecting the period build. Solid brick walls are assumed to lack insulation, which could be improved during renovation to reduce heating costs.
Practical positives include mains gas central heating with boiler and radiators, fast broadband and excellent mobile signal, plus very low council tax (Band A). The area is classified as a cosmopolitan student neighbourhood and a private-renting new arrivals area, so rental demand is a realistic option, though the wider area shows signs of deprivation and average crime levels.
Overall this is a budget-friendly entry property with immediate occupancy potential and clear scope to add value through modest modernisation and insulation improvements. Buyers should factor renovation costs and the small plot size into their plans.
3 bedroom terraced house for sale in Baggholme Road, Lincoln, LN2 — £120,000 • 3 bed • 1 bath • 819 ft²
3 bedroom terraced house for sale in Florence Street, Monks Road, Lincoln, LN2 — £110,000 • 3 bed • 1 bath • 780 ft²
3 bedroom terraced house for sale in Walmer Street, Lincoln, Lincolnshire, LN2 — £130,000 • 3 bed • 1 bath • 983 ft²
3 bedroom terraced house for sale in Robey Street, Lincoln, LN5 — £135,000 • 3 bed • 1 bath • 915 ft²
2 bedroom terraced house for sale in Gray Street, Lincoln, LN1 — £150,000 • 2 bed • 1 bath • 864 ft²
2 bedroom terraced house for sale in 61 Alexandra Terrace, LN1 — £160,000 • 2 bed • 1 bath • 650 ft²






























