Characterful one-bedroom flat with courtyard, garden access and resident parking..
Ground-floor period conversion with feature fireplace
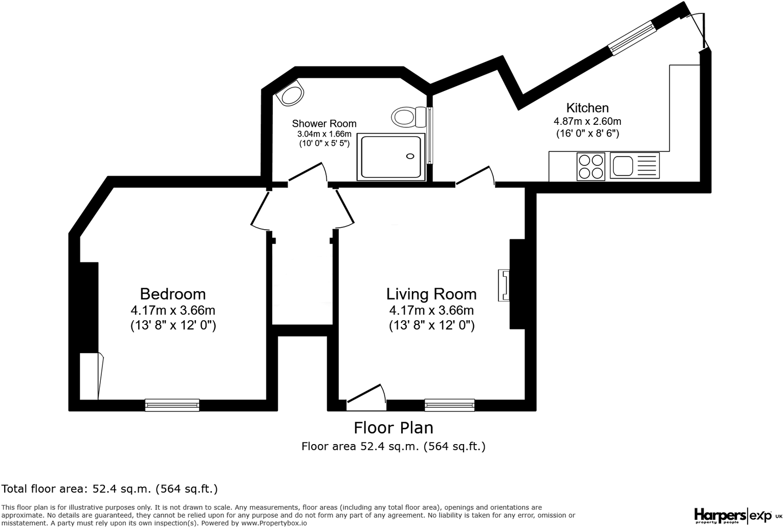
One double bedroom and spacious internal shower room
Galley-style kitchen with rear access to courtyard
Private rear courtyard plus access to mature communal garden
Resident parking accessed from gated rear
Leasehold tenure — check lease length and charges
Approx 564 sq ft; modest, traditional layout
No onward chain; fast broadband and excellent mobile signal
Set within an attractive period conversion, this ground-floor one-bedroom flat balances original character with practical living. The front-aspect living room retains a feature fireplace and high ceilings, while a double bedroom and a spacious internal shower room complete the main accommodation. The galley-style kitchen leads to a rear courtyard with gated access to resident parking.
Outside space is a standout: a private rear courtyard plus access to a beautiful mature garden offer welcome outdoor options for summer use. The property is offered with no onward chain and is ready for immediate occupation, appealing to buyers seeking a straightforward move or a buy-to-let purchase in a very affluent area with fast broadband and excellent mobile signal.
Important practical notes: the flat is leasehold, so purchasers should check lease length and service charges. The accommodation is modest in size (around 564 sq ft) and arranged in a traditional layout, so it suits first-time buyers, downsizers or investors rather than larger households. Local schools and amenities are close by, though school ratings are mixed across the area.
1 bedroom ground floor flat for sale in Cleveland Avenue, ., North Shields, Tyne and Wear, NE29 0NU, NE29 — £150,000 • 1 bed • 1 bath • 636 ft²
2 bedroom ground floor flat for sale in Park Crescent East, North Shields, NE30 — £160,000 • 2 bed • 1 bath
1 bedroom apartment for sale in Jubilee Terrace, Seaton Burn, NE13 — £95,000 • 1 bed • 1 bath • 991 ft²
1 bedroom flat for sale in Tynemouth Road, North Shields, NE30 — £90,000 • 1 bed • 1 bath • 593 ft²
1 bedroom apartment for sale in Kirton Park Terrace, North Shields, NE30 — £134,950 • 1 bed • 1 bath • 557 ft²
1 bedroom apartment for sale in Grey Street, North Shields, NE30 — £135,000 • 1 bed • 1 bath






























































