Chain-free four-bedroom home minutes from Camberley town centre.
- Four double bedrooms across three floors
- No onward chain, ready for quick move
- Spacious open-plan kitchen/dining/family area
- Principal bedroom with en suite
- Driveway parking, attached single garage
- Low-maintenance private rear garden
- Small plot relative to detached homes nearby
- Council Tax Band F (relatively expensive)
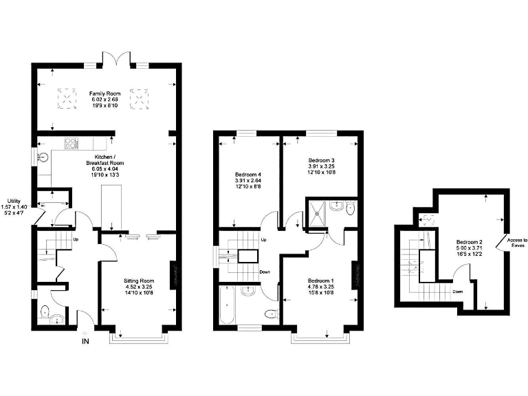
Set over three floors, this four-double-bedroom home offers flexible living for growing families. The ground floor opens to a large kitchen/dining/family area ideal for everyday life and entertaining, plus a separate living room and a handy utility and cloakroom.
The principal bedroom includes an en suite, three further double bedrooms provide space for children or a home office, and the top-floor room benefits from useful eaves storage. Driveway parking for multiple vehicles, an attached single garage and gated side access add practical convenience.
Location is a clear draw: chain-free and within walking distance of Camberley town centre, rail links, leisure facilities and several Good-rated schools. The low-maintenance rear garden suits busy families who prefer outdoor space without heavy upkeep.
Notable considerations: the plot and garden are modest for a detached house, and the property sits in Council Tax Band F (relatively expensive). EPC C (74) indicates reasonable efficiency but not the top tier. Overall this is a well-presented, move-in-ready family house with good local amenities and sensible running costs for its size.
4 bedroom detached house for sale in Rideway Close, Camberley, Surrey, GU15 — £525,000 • 4 bed • 1 bath • 846 ft²
4 bedroom detached house for sale in Dene Close, Camberley, Surrey, GU15 — £600,000 • 4 bed • 3 bath • 1131 ft²
4 bedroom detached house for sale in Marlborough Rise, Camberley, Surrey, GU15 — £850,000 • 4 bed • 2 bath • 1727 ft²
4 bedroom detached house for sale in Redcrest Gardens, Camberley, Surrey, GU15 — £750,000 • 4 bed • 3 bath • 1835 ft²
4 bedroom detached house for sale in Southcote Park, Camberley, GU15 — £625,000 • 4 bed • 2 bath • 1955 ft²
4 bedroom detached house for sale in Pans Gardens, Camberley, Surrey, GU15 — £650,000 • 4 bed • 2 bath • 1521 ft²






















































