CW11 1FJ - 2 bedroom cottage for sale in The Commons, Sandbach, CW11

View on Property Piper

2 bedroom cottage for sale in The Commons, Sandbach, CW11

Summary - 23 THE COMMONS SANDBACH CW11 1FJ

2 bed 1 bath Cottage

**Standout Features:**
- Charming, recently renovated Victorian cottage
- Prime town centre location with immediate access to amenities
- Retains original features including high ceilings and cast iron fireplace
- No onward chain, making for a quick and easy purchase
- Freehold property with a very low council tax band (B)

This delightful Victorian cottage, nestled in the heart of Sandbach, seamlessly blends timeless charm with modern living. Dating back to the late 1800s, it boasts impressive original features such as high ceilings, latch-style internal doors, and a stunning cast iron fireplace that enhances its character. Recently renovated, the property offers a cozy and inviting atmosphere, perfect for first-time buyers, individuals, or couples seeking a comfortable home with no onward chain.

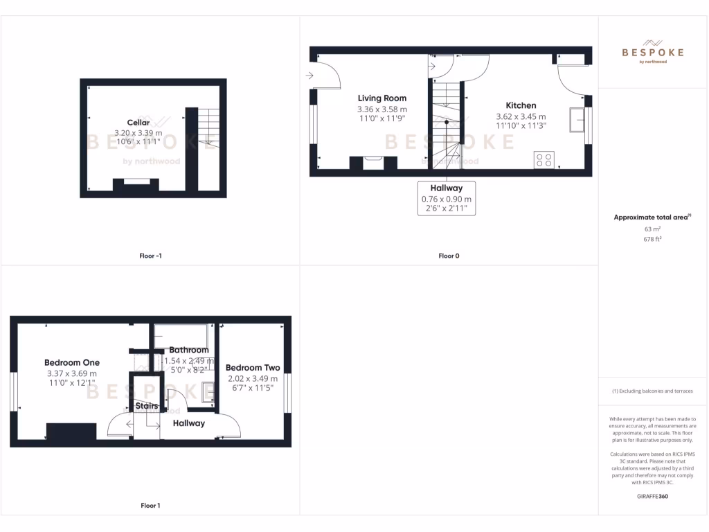
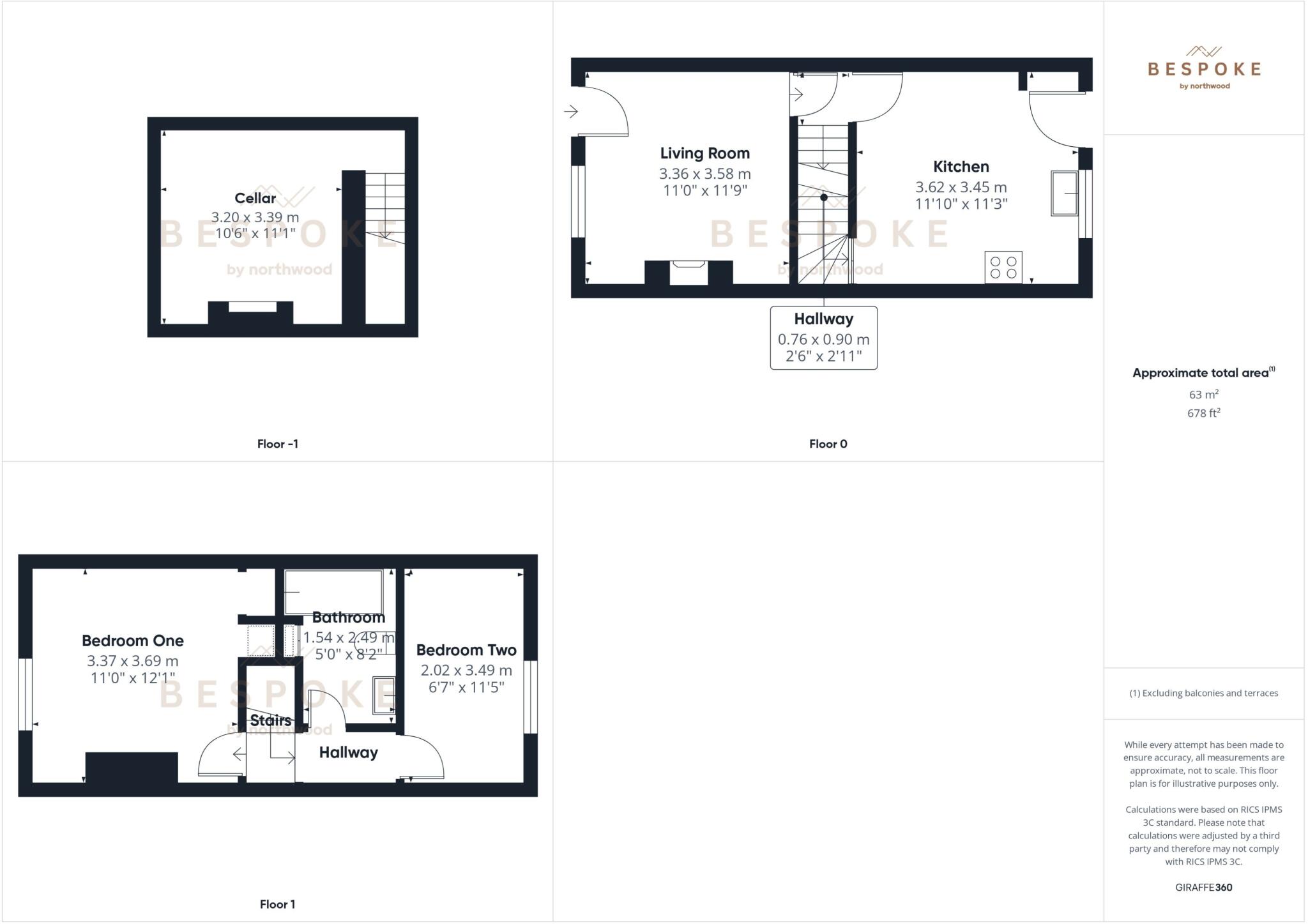
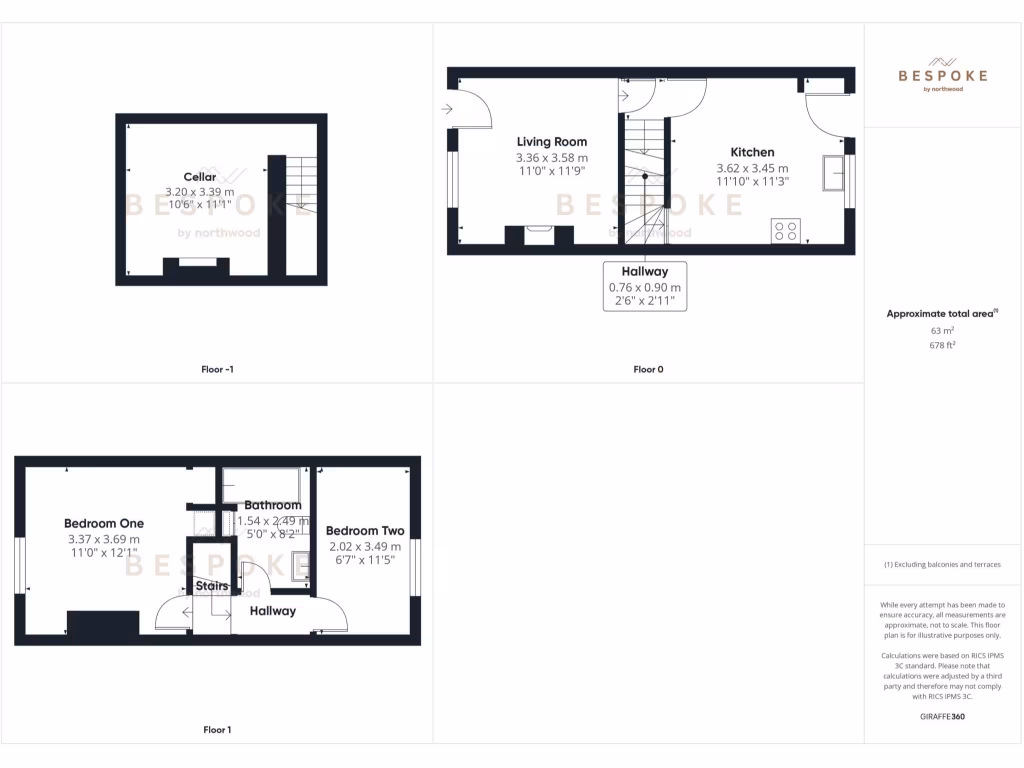
Spanning an average of 678 square feet, this property is well-presented throughout, featuring two bedrooms and one bathroom, along with a communal garden for outdoor enjoyment. Located within a self-sufficient retirement area, residents will enjoy easy access to an array of local amenities, including independent shops, cafes, and essential services, all just a stone's throw away. The low crime rate and excellent mobile and broadband connectivity make it an ideal spot for a modern lifestyle. Act quickly to seize the opportunity to own this unique cottage, as it combines modern convenience with historical appeal in a desirable location.

Property Details

Image Descriptions

Floorplan Description

Rooms

Textual Property Features

Detected Visual Features

Nearby Schools

Nearest Bars And Restaurants

,,,,}

Nearest General Shops

,,}

Nearest Grocery shops

,,}

Nearest Supermarkets

,,}

Nearest Religious buildings

,,}

Nearest Medical buildings

,,,}

Nearest Airports

}

Nearest Leisure Facilities

,,,,}

Nearest Tourist attractions

,,}

Nearest Train stations

,,,,}

Nearest Bus stations and stops

,,,,}

Nearest Hotels

,,}

Tags

Local Market Stats

AirBnB Data

Similar Properties

Meta

High Res Images

Compatible Images

Low res Images

Thumbnails

Raw Images

High Res Floorplan Images

Compatible Floorplan Images

Low res Floorplan Images

FloorplanImages Thumbnail

Raw Floorplan Images