Spacious family home with large garden and recent heating upgrades.
Bay-fronted 1930s semi-detached house with traditional red-brick character
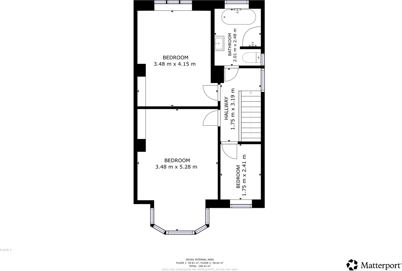
This 1930s semi-detached home on Manor Drive offers solid, spacious family accommodation with a generous rear garden and driveway. The layout includes a bay-fronted lounge, a well-presented kitchen-diner, and a useful utility room — practical spaces for everyday family life and entertaining.
Practical upgrades have been fitted recently: a combi boiler installed in January and wall insulation added in September 2024. The house benefits from double glazing, fast broadband and excellent mobile signal, making it well-suited to homeworking and connected family life. Council tax band is inexpensive and there is no flood risk.
There are some clear trade-offs to note. The property is in a high-crime area and has a single family bathroom which may be limiting for larger households. As a 1930s solid-brick build, some elements (for example wall insulation depth and glazing dates) may need checking for long-term energy efficiency or further improvement. Overall this home suits buyers seeking a roomy, traditional family house in a popular area with scope to personalise.
3 bedroom semi-detached house for sale in Alderson Drive, Bennetthorpe, Doncaster, DN2 — £280,000 • 3 bed • 2 bath • 1539 ft²
3 bedroom semi-detached house for sale in Manor Drive , Bennetthorpe, Doncaster, DN2 — £210,000 • 3 bed • 1 bath • 1217 ft²
3 bedroom semi-detached house for sale in Balmoral Road, Town Moor, DONCASTER, DN2 — £220,000 • 3 bed • 1 bath • 1120 ft²
3 bedroom semi-detached house for sale in Barnby Dun Road, Clay Lane , Doncaster, DN2 — £160,000 • 3 bed • 1 bath • 977 ft²
3 bedroom semi-detached house for sale in Yarborough Drive, Doncaster, South Yorkshire, DN2 — £230,000 • 3 bed • 2 bath • 855 ft²
3 bedroom semi-detached house for sale in Wentworth Road, Doncaster, DN2 — £185,000 • 3 bed • 1 bath • 1127 ft²






















































































