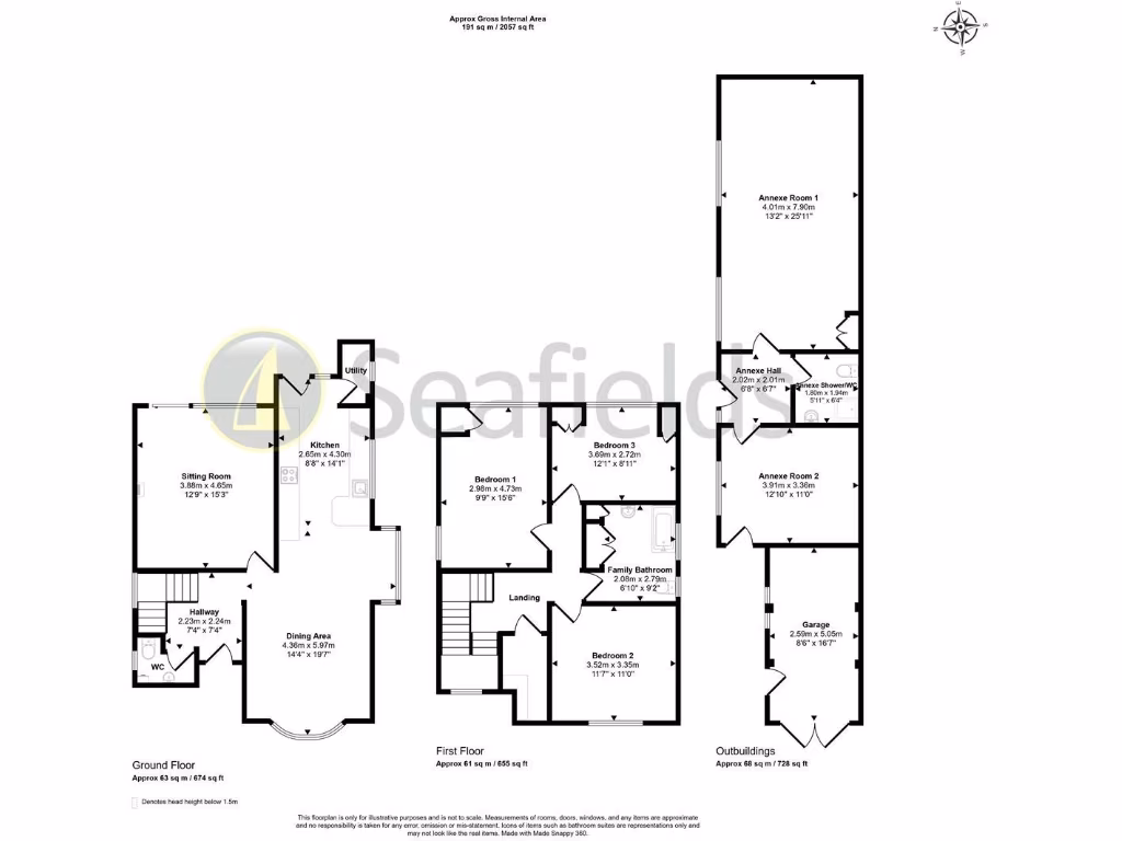
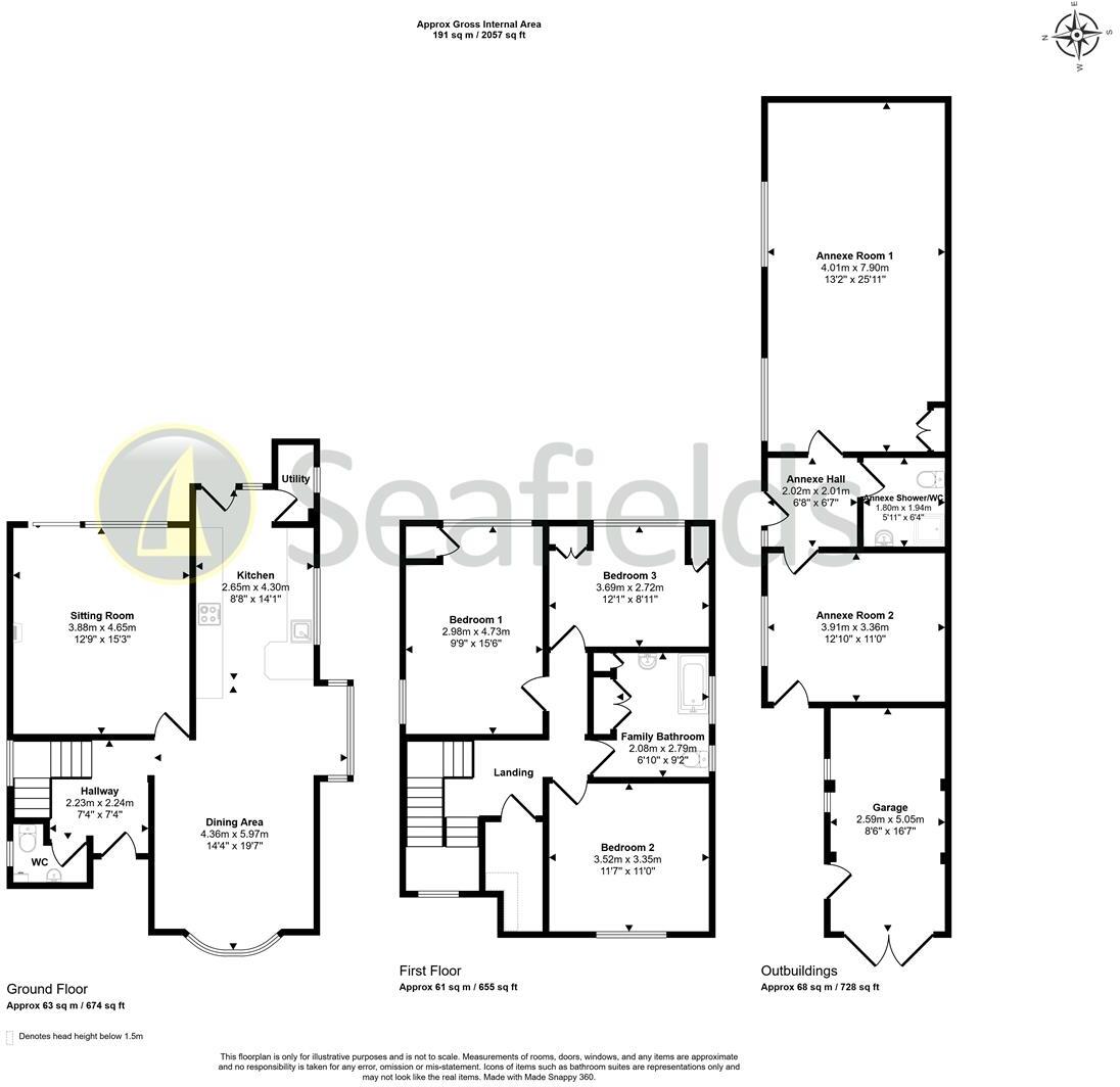
Large plot, west garden and flexible multi‑generation layout.
Five double bedrooms across main house and annexe
A versatile family residence set on a large private plot in sought-after High Park Road, offering comfortable living space plus a self-contained annexe. The main house has three double bedrooms upstairs, a generous open-plan kitchen/diner, and a cozy sitting room with a log burner. The annex provides two additional rooms and a shower/WC — ideal for guests, home working or potential rental income.
Outdoor space is a strong asset: a west-facing garden with paved patio and lawn, gated side access, a sweeping shingled driveway with ample parking and a large garage. Practical features include gas central heating, double glazing, solar panels on the annexe roof, and a C (69) EPC rating. The location is conveniently walkable to shops, schools, beaches and ferry links.
Buyers should note the annexe has separate services (wall-mounted boiler; electric shower in shower room) and the listing advises confirming details about annexe roof solar panels. Appliances and some systems have not been tested; an inspection is recommended to confirm working order and any maintenance needs. Council Tax band D and freehold tenure apply.
5 bedroom detached house for sale in Ryde, PO33 — £650,000 • 5 bed • 3 bath • 2560 ft²
3 bedroom semi-detached house for sale in Gassiot Place, Ryde, PO33 1DN, PO33 — £425,000 • 3 bed • 2 bath • 1238 ft²
4 bedroom detached house for sale in Pitt Street, Ryde, PO33 — £400,000 • 4 bed • 3 bath • 2063 ft²
5 bedroom chalet for sale in West Hill Road, Ryde, Isle of Wight, PO33 — £650,000 • 5 bed • 3 bath • 1766 ft²
4 bedroom semi-detached house for sale in Upton Road, Ryde, Isle of Wight, PO33 — £300,000 • 4 bed • 3 bath • 1458 ft²
4 bedroom detached house for sale in Long Orchard, Ryde, PO33 1FH, PO33 — £388,000 • 4 bed • 2 bath • 1173 ft²






























































































