Spacious historic workspace ideal for creative occupiers near Farringdon.
Gated development with communal gardens and secure entry
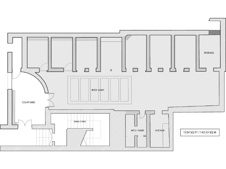
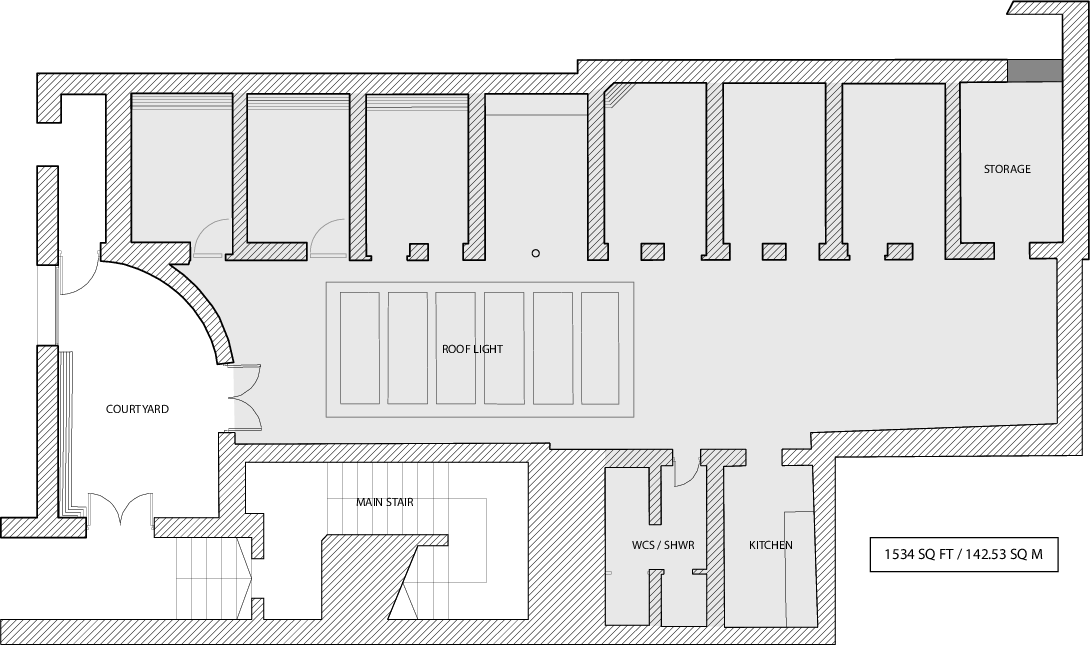
1,493 sq ft open-plan loft space with high ceilings
Polished concrete floors, exposed brick and large skylights
Located in a Grade II listed Victorian school; restrictions apply
Lower ground floor position — limited street frontage and ventilation
Freehold title — rare for central London commercial space
Close to Farringdon, Exmouth Market and Clerkenwell amenities
Local crime levels are very high; consider security and insurance
This 1,493 sq ft freehold office sits within a gated, Grade II listed former Victorian school in the heart of Clerkenwell. Exposed brickwork, polished concrete floors and large skylights create a bright, industrial loft character that appeals to creative businesses and design-led occupiers. The unit’s open-plan layout offers flexible workspace for studios, agencies or co-working fit-outs.
The setting benefits from communal gardens and excellent central transport links, with Farringdon, Exmouth Market and Clerkenwell’s restaurants and amenities on the doorstep. The property’s substantial internal volume and high ceilings give real scope for imaginative layouts and an unmistakable address in a sought-after commercial quarter.
Buyers should note the listed status: alterations will be restricted and may require specialist consent and cost. The unit is on the lower ground floor, which reduces street-level frontage and natural ventilation options compared with upper floors. Local crime levels are very high—security measures and insurance costs should be factored into occupation or letting plans.
Overall this is a rare freehold opportunity for investors or owner-occupiers seeking a large, characterful central London workspace with strong branding potential, balanced by the practical constraints of listing, location and security considerations.
Office for sale in 48 Kingsway Place, London, EC1R 0LU, EC1R — £650,000 • 1 bed • 1 bath • 1493 ft²
Office for sale in 44 Clerkenwell Close, London, EC1R 0AZ, EC1R — £2,200,000 • 1 bed • 1 bath • 4112 ft²
Office for sale in 49-51 Central Street, Clerkenwell, EC1V 8AB, EC1V — £1,250,000 • 1 bed • 1 bath • 1702 ft²
Office for sale in 73 Central Street, London, EC1V 8BU, EC1V — £875,000 • 1 bed • 1 bath • 1332 ft²
Office for sale in The Piano Works, 113-117 Farringdon Road, Farringdon, London, EC1R 3BX, EC1R — £1,425,000 • 1 bed • 1 bath • 2055 ft²
4 bedroom maisonette for sale in Bowling Green Lane, London, EC1R — £4,750,000 • 4 bed • 3 bath • 3520 ft²






















































































































































