Characterful four-bed period home near Altrincham centre and top schools.
Four double bedrooms across three floors, including top-floor en suite
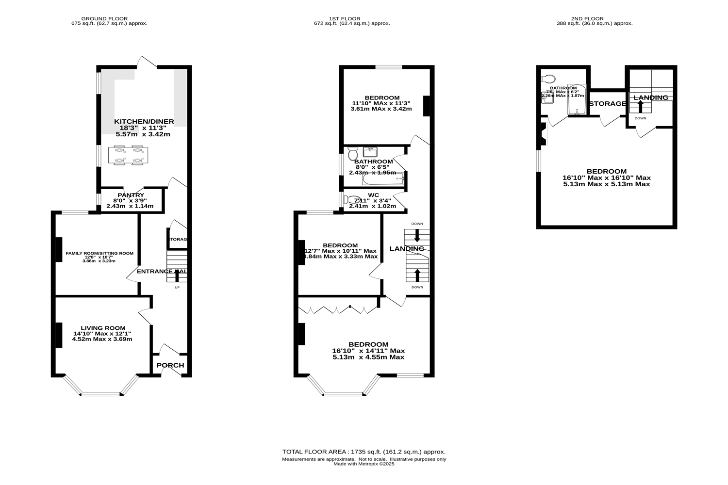
This beautifully proportioned four-bedroom period semi occupies three floors and offers 1,735 sq ft of family-friendly living. Classic Victorian details — bay windows, high ceilings, cornicing and an open fireplace — combine with a large kitchen-diner and pantry, creating a comfortable home for daily life and entertaining.
The top-floor bedroom benefits from an en suite and fitted storage, providing a private guest suite or teenager’s retreat. Three well-sized double bedrooms on the first floor and a main family bathroom keep family life practical and flexible. The rear garden has a paved patio and lawn, framed by a low walled boundary for privacy and low maintenance outdoor space.
Location is a genuine strength: walking distance to Altrincham town centre, strong Metrolink links and several highly regarded primary and secondary schools nearby, including two schools rated Outstanding. The neighbourhood is affluent and safe, popular with professionals and families seeking both convenience and period character.
Buyers should note the plot is small for outdoor uses and the property has above-average council tax. Tenure is freehold and there is a small ground rent of £52. Overall this is a spacious, characterful family home that suits buyers prioritising location, school catchments and adaptable living space over a large garden.
4 bedroom semi-detached house for sale in Lilac Road, Altrincham, WA15 — £600,000 • 4 bed • 2 bath • 1578 ft²
5 bedroom semi-detached house for sale in Groby Place, Altrincham, WA14 — £1,795,000 • 5 bed • 5 bath • 4314 ft²
3 bedroom semi-detached house for sale in Langham Road, Bowdon, WA14 — £700,000 • 3 bed • 2 bath • 1799 ft²
4 bedroom semi-detached house for sale in Manchester Road, Altrincham, WA14 4RH, WA14 — £695,000 • 4 bed • 3 bath • 1892 ft²
4 bedroom semi-detached house for sale in Richmond Road, Altrincham, WA14 — £675,000 • 4 bed • 2 bath • 1664 ft²
3 bedroom terraced house for sale in Manchester Road, Altrincham, Trafford, WA14 — £480,000 • 3 bed • 2 bath • 1561 ft²






































































