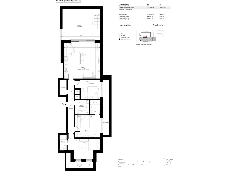
Large luxury three-bedroom apartment with terrace near the Elizabeth Line..
- 1,184 sq ft three-bedroom, two ensuite layout
- Private terrace with direct access to communal gardens
- High-spec finishes: bespoke kitchens, Smeg appliances, stone worktops
- Underfloor heating throughout with smart thermostats
- 10-year structural warranty and appliance guarantees included
- Lower ground floor — less natural light than upper levels
- Leasehold (998 years); parking available subject to availability
- Internal images indicative only; council tax band unknown
A spacious, newly built three-bedroom apartment occupying a lower ground floor position in a boutique nine‑apartment development on Creswick Road. The 1,184 sq ft layout offers a large open-plan kitchen/living area with bi-fold doors to a private terrace and direct access to landscaped communal gardens — a rare combination for an urban setting near Acton Main Line (Elizabeth Line).
Finished to a high specification, the apartment includes bespoke fitted wardrobes, integrated Smeg appliances, stone worktops, white‑washed oak flooring, underfloor heating with smart controls and double‑glazed aluminium windows. Two bedrooms have en-suite shower rooms, there is a separate utility room and a family bathroom; a 10‑year structural warranty and appliance guarantees provide added peace of mind.
Practical points to note: the property is leasehold (998 years remaining), parking is available only subject to availability, and this is a lower ground floor apartment so natural light is more limited than upper‑floor units. Internal images are indicative only and council tax banding is not specified.
This home will suit families or professionals seeking roomy, turn‑key accommodation with easy transport links and quality finishes. The location offers cafés, leisure facilities and green spaces nearby, and the Elizabeth Line provides a fast route into central London — attractive for commuters and investors alike.
3 bedroom apartment for sale in Creswick Road, London, W3 — £995,000 • 3 bed • 3 bath • 1184 ft²
3 bedroom flat for sale in Creswick Road, Acton, W3 — £995,000 • 3 bed • 3 bath • 1183 ft²
1 bedroom apartment for sale in Creswick Road, London, W3 — £515,000 • 1 bed • 1 bath • 600 ft²
2 bedroom apartment for sale in Creswick Road, London, W3 — £550,000 • 2 bed • 1 bath • 685 ft²
1 bedroom apartment for sale in Creswick Road, London, W3 — £525,000 • 1 bed • 1 bath • 585 ft²
3 bedroom apartment for sale in Creswick Road, London, W3 — £995,000 • 3 bed • 3 bath • 1183 ft²






















































