Well-proportioned family space near town centre and national park.
Grade II listed Victorian mid-terrace full of original character features
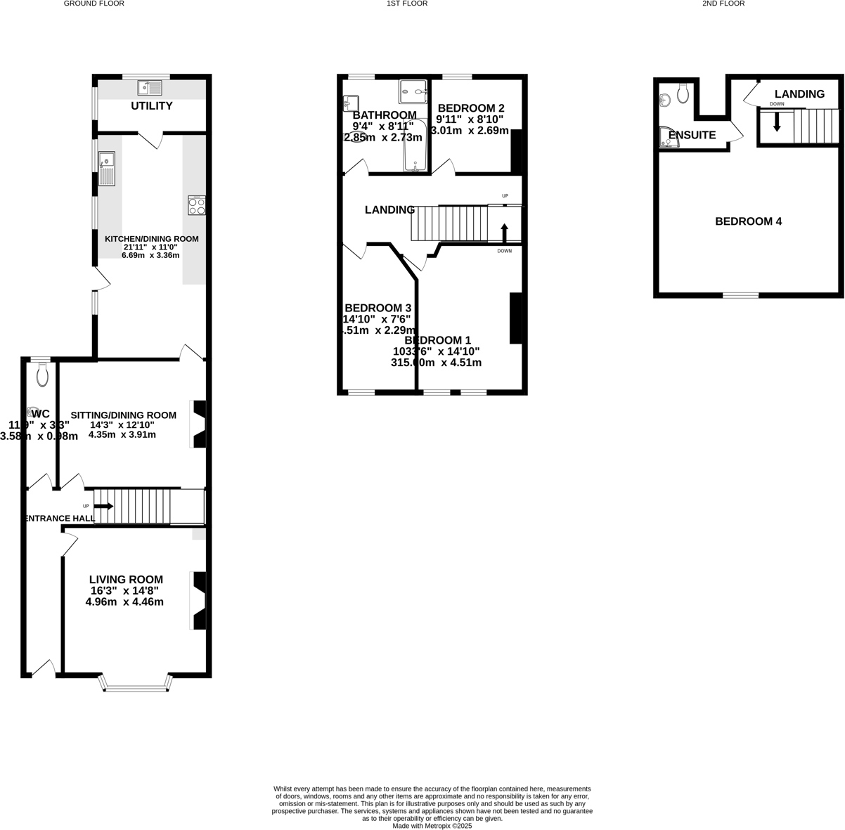
This Grade II listed mid-terrace Victorian house on Camden Road offers generous family accommodation across multiple storeys, rich with original character details such as sash windows, a bay window and high ceilings. The layout includes two reception rooms, an attractive kitchen/breakfast room with adjoining utility, four bedrooms (one en-suite) and a cellar, arranged over approximately 1,131 sq ft. A garage, outbuildings and a split garden provide useful storage and outdoor space accessed via a shared lane.
The property is well located within walking distance of Brecon town centre and the amenities of the Brecon Beacons National Park, making it suitable for families who value proximity to schools, shops and countryside. The double glazing and mains gas boiler with radiators provide modern comforts, while room sizes and the south-facing courtyard and lawned rear garden give practical, livable outdoor areas.
Buyers should be aware of several limitations tied to its age and listed status. As a Grade II listed building, any alterations will be subject to listed-building constraints and may complicate renovations. The stone walls are assumed uninsulated, so improving thermal performance would require sensitive upgrade work compatible with the listing. Council tax is band E (above average) and the local area has a higher crime and deprivation profile, which may influence buyer considerations.
Overall this is a charming period family home offering strong location and character, with clear potential for sympathetic improvement. It suits buyers seeking a centrally positioned, characterful house and who are prepared for the responsibilities and restrictions of a listed property.
4 bedroom terraced house for sale in Watton, Brecon, LD3 — £330,000 • 4 bed • 1 bath • 1016 ft²
5 bedroom semi-detached house for sale in Camden Road, Brecon, LD3 — £600,000 • 5 bed • 2 bath • 2343 ft²
4 bedroom terraced house for sale in St. Johns Terrace, Brecon, Powys, LD3 — £275,000 • 4 bed • 2 bath • 1283 ft²
2 bedroom flat for sale in Camden Court, Brecon, LD3 — £135,000 • 2 bed • 1 bath • 720 ft²
2 bedroom terraced house for sale in The Struet, Brecon, Powys., LD3 — £137,500 • 2 bed • 1 bath • 691 ft²
4 bedroom link detached house for sale in Cradoc Road, Brecon, LD3 — £550,000 • 4 bed • 4 bath • 2562 ft²






















































































