Bright three-bedroom home with rear views over Reddish Vale, garage and off-road parking.
Three bedrooms with modern family bathroom
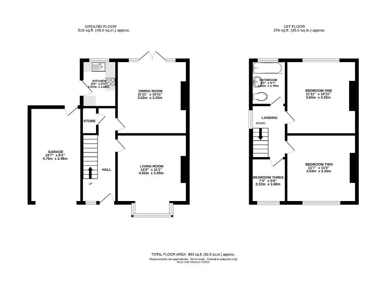
This traditional three-bedroom semi-detached home sits on Woodhall Road with a rear aspect directly overlooking Reddish Vale Country Park. The ground floor offers a hall with storage, a bay-fronted living room, a modern kitchen and a dining room with French doors leading to a new raised decking area — ideal for family meals and outdoor play. Off-road parking and a large single garage add practical space for a car, bikes and storage.
Upstairs are three well-proportioned bedrooms and a contemporary family bathroom. The property is presented to a high standard throughout and benefits from mains gas central heating and double glazing installed post-2002, helping keep running costs down. The overall size is average (about 893 sq ft) with a small rear lawn and deck that make the most of the open green outlook.
Buyers should note local context: the immediate area is classified as hampered neighbourhoods within a wider multi-ethnic hardship zone and the neighbourhood has some indicators of deprivation. School ratings nearby are mixed, so check specific catchments if local schools are a priority. The external walls are cavity brick with assumed no added insulation — there may be an energy-efficiency upgrade opportunity to improve thermal performance and reduce bills.
This property suits families seeking good-sized rooms, outdoor space with countryside views, practical parking and a garage, with potential to improve insulation and personalise to taste. Viewing will show the balance between a well-finished interior and the local area context.
3 bedroom detached house for sale in Field Vale Drive, Stockport, SK5 — £325,000 • 3 bed • 1 bath • 1115 ft²
3 bedroom semi-detached house for sale in Deepdale Close, Reddish, Stockport, SK5 — £300,000 • 3 bed • 1 bath • 736 ft²
2 bedroom semi-detached house for sale in Hilda Grove, Stockport, SK5 — £230,000 • 2 bed • 1 bath • 863 ft²
3 bedroom detached house for sale in Haley Close, Reddish, SK5 — £300,000 • 3 bed • 2 bath • 996 ft²
3 bedroom semi-detached house for sale in Woodstock Avenue, South Reddish, Stockport, SK5 — £350,000 • 3 bed • 1 bath • 1268 ft²
3 bedroom house for sale in Dene Hollow, Stockport, SK5 — £360,000 • 3 bed • 1 bath • 973 ft²














































