Bright, renovated two-bedroom in central SW3 — spacious layout and long lease near top schools..
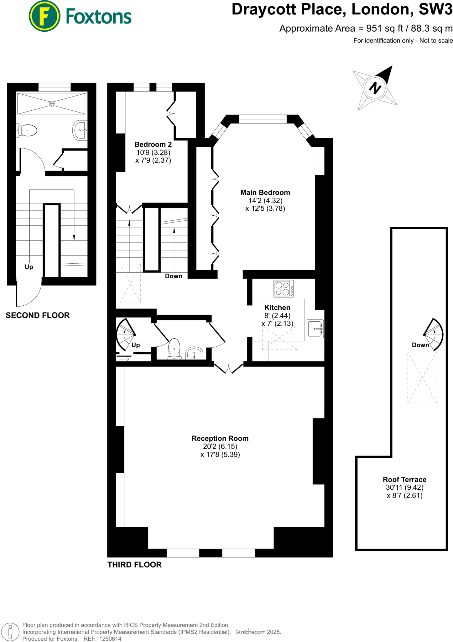
- Large 950 sq ft two-bedroom duplex in SW3
- Recently refurbished throughout with contemporary finish
- Newly extended lease: 118 years remaining
- Short walk to King's Road, Sloane Square Station, shops
- Mains gas boiler and radiators; fast broadband and mobile
- Built before 1900 with solid brick walls; likely no insulation
- Multi-storey layout involves internal stairs between floors
- Local recorded crime levels are very high
This refurbished two-bedroom duplex occupies a generous 950 sq ft in prime SW3, a short walk from King's Road and Sloane Square Station. The interior is contemporary throughout with a bright reception, modern kitchen and two well-proportioned bedrooms across two floors — useful for flexible family living or a professional couple. The lease has been recently extended to 118 years, reducing near-term tenure risk.
Practical benefits include fast broadband, excellent mobile signal and mains gas central heating via boiler and radiators. There is no flooding risk and the building’s period character (constructed before 1900) gives solid brick walls and tall street presence. Local amenities and highly regarded schools are within easy reach, making the location especially attractive for families.
Buyers should note material considerations plainly: the property is leasehold, and the building’s solid brick walls are assumed to have no added insulation, which may affect heating efficiency and future works. The home is multi‑storey (duplex), so it involves stairs between living and sleeping areas. Crime levels in the immediate area are recorded as very high, which may be a concern for some purchasers.
Overall, this apartment offers a rare combination of size, recent refurbishment and a long lease in one of Chelsea’s most desirable pockets. It will suit buyers seeking move-in-ready accommodation with scope to personalise energy-efficiency improvements and to benefit from a central SW3 location close to excellent schools, shops and transport.
2 bedroom flat for sale in Redcliffe Square, Chelsea, London, SW10 — £1,195,000 • 2 bed • 2 bath • 661 ft²
2 bedroom apartment for sale in Redesdale Street, Chelsea, SW3 — £2,100,000 • 2 bed • 2 bath • 1039 ft²
2 bedroom flat for sale in Fulham Road, Chelsea, London, SW3 — £795,000 • 2 bed • 1 bath • 623 ft²
2 bedroom flat for sale in Tadema Road, Chelsea, London, SW10 — £1,000,000 • 2 bed • 2 bath • 945 ft²
2 bedroom flat for sale in Redcliffe Square, Chelsea, London, SW10 — £1,195,000 • 2 bed • 1 bath • 849 ft²
2 bedroom flat for sale in Turks Row, Sloane Square, London, SW3 — £1,000,000 • 2 bed • 1 bath • 640 ft²


































































































































































































































































































































































































































































































































































































