Private garden and parking close to Central Milton Keynes transport links.
- Chain free sale, vendor to fund lease extension
- Private garden with paved area and privacy fencing
- Allocated off-street parking included
- Move-in ready interior, double bedroom
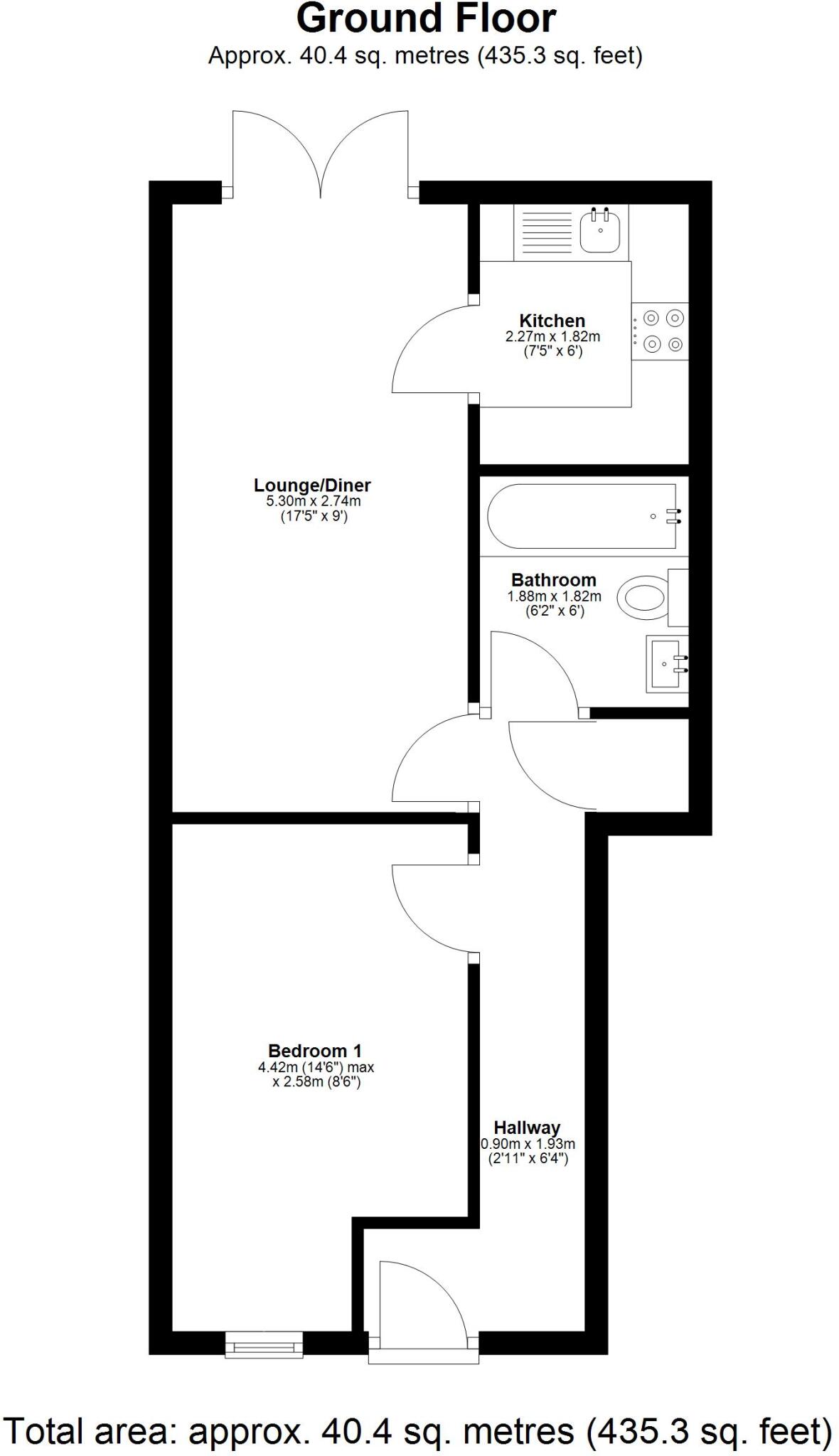
- Small footprint: approximately 435 sq ft (compact rooms)
- Leasehold: 53 years remaining; lenders may refuse mortgages
- Very high local crime and high area deprivation
- Low service charge and very cheap council tax
A compact, move-in ready one-bedroom maisonette with private garden and allocated off-street parking, set within easy walking distance of Central Milton Keynes. The living space is bright and practical across approximately 435 sq ft, suited to a first-time buyer or investor seeking low-maintenance urban accommodation.
The property is offered chain free and the vendor will pay for a lease extension for any prospective buyer — an important benefit given the current 53 years remaining. Council tax is very cheap and the service charge is below average, which helps running costs.
Buyers should note material considerations: the lease length is short now and some mortgage lenders may refuse lending until the lease is extended. The wider area records very high crime and high deprivation levels, which may affect resale or rental appeal. Overall, this is a straightforward, affordable entry into Milton Keynes with clear value drivers and an explicit solution to the lease issue.
 2 bedroom apartment for sale in Banktop Place, Emerson Valley, Milton Keynes, Buckinghamshire, MK4 — £180,000 • 2 bed • 1 bath • 426 ft²
 2 bedroom apartment for sale in Banktop Place, Emerson Valley, Milton Keynes, Buckinghamshire, MK4 — £180,000 • 2 bed • 1 bath • 426 ft² 1 bedroom maisonette for sale in Sutcliffe Avenue, Oldbrook, Milton Keynes, MK6 — £170,000 • 1 bed • 1 bath • 668 ft²
 1 bedroom maisonette for sale in Sutcliffe Avenue, Oldbrook, Milton Keynes, MK6 — £170,000 • 1 bed • 1 bath • 668 ft² 2 bedroom maisonette for sale in Pomander Crescent, Walnut Tree, Milton Keynes, Buckinghamshire, MK7 — £195,000 • 2 bed • 1 bath • 478 ft²
 2 bedroom maisonette for sale in Pomander Crescent, Walnut Tree, Milton Keynes, Buckinghamshire, MK7 — £195,000 • 2 bed • 1 bath • 478 ft² 3 bedroom maisonette for sale in Bounds Croft, Greenleys, Milton Keynes, MK12 — £165,000 • 3 bed • 1 bath • 568 ft²
 3 bedroom maisonette for sale in Bounds Croft, Greenleys, Milton Keynes, MK12 — £165,000 • 3 bed • 1 bath • 568 ft² 1 bedroom apartment for sale in Edmund Court, Shenley Church End, Milton Keynes, MK5 — £160,000 • 1 bed • 1 bath • 322 ft²
 1 bedroom apartment for sale in Edmund Court, Shenley Church End, Milton Keynes, MK5 — £160,000 • 1 bed • 1 bath • 322 ft² 1 bedroom maisonette for sale in The Hide, Netherfield, Milton Keynes, Buckinghamshire, MK6 — £85,000 • 1 bed • 1 bath • 506 ft²
 1 bedroom maisonette for sale in The Hide, Netherfield, Milton Keynes, Buckinghamshire, MK6 — £85,000 • 1 bed • 1 bath • 506 ft²


































