Compact three-bedroom house with garden and driveway, ideal for growing families.
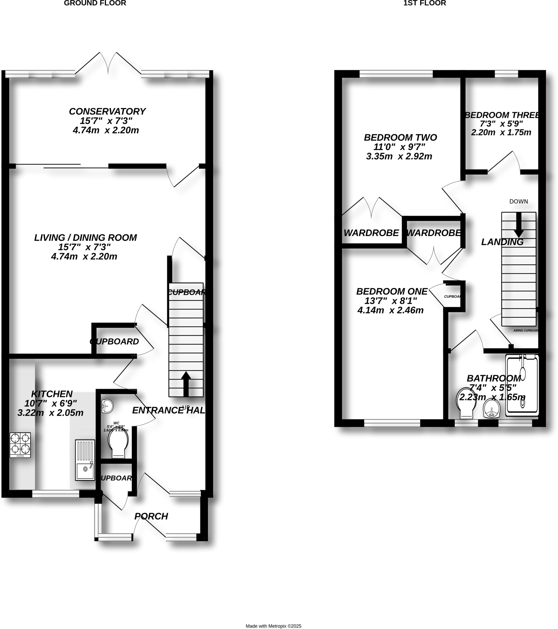
End-of-terrace three-bedroom with built-in wardrobes
Open-plan living/dining room plus conservatory
Mature rear garden with vegetable patch; driveway parking
Freehold, small overall size ~597 sq ft
EPC F (27); poor energy efficiency and high running costs possible
Electric room heaters; likely uninsulated cavity walls
Single shower room upstairs; only one bathroom for three bedrooms
Double glazing present; install date unknown
This three-bedroom end-of-terrace in Farnborough offers practical family living with a compact, well-laid-out footprint. The open-plan living/dining area flows to a conservatory and mature rear garden, giving useful extra space for children and gardening hobbies. Built-in wardrobes and a downstairs cloakroom add everyday convenience for a busy household.
The home is freehold and sits on a small plot with a driveway for off-road parking. Nearby schools (including an Outstanding junior school) and local amenities make the location suitable for families seeking convenience in a town setting. The conservatory and vegetable patch are genuine lifestyle positives for those who enjoy outdoor space and home-grown produce.
Buyers should note the property’s energy performance is poor (EPC F, 27) and heating is electric room heaters. The property likely has uninsulated cavity walls and double glazing of unknown age, so energy-efficiency upgrades and modern heating would be sensible next steps. The house is modest in overall size (about 597 sq ft) and has a single upstairs bathroom, which may be restrictive for larger families.
For a buyer willing to invest in insulation, heating and modest updating, this home offers terrace living with a private garden and good local schools. For those seeking a move-in-perfect, highly efficient home, the property will require works to improve comfort and running costs.
3 bedroom semi-detached house for sale in Tower Hill, Farnborough, Hampshire, GU14 — £450,000 • 3 bed • 1 bath • 743 ft²
3 bedroom semi-detached house for sale in Charlecote Close, Farnborough, Hampshire, GU14 — £425,000 • 3 bed • 1 bath • 822 ft²
3 bedroom semi-detached house for sale in Pyestock Crescent, Farnborough, Hampshire, GU14 — £475,000 • 3 bed • 1 bath • 814 ft²
3 bedroom terraced house for sale in Rother Road, Farnborough, Hampshire, GU14 — £375,000 • 3 bed • 1 bath • 932 ft²
3 bedroom terraced house for sale in Bracklesham Close, Farnborough, GU14 — £315,000 • 3 bed • 1 bath • 826 ft²
3 bedroom terraced house for sale in Barnes Close, Farnborough, Hampshire, GU14 — £350,000 • 3 bed • 1 bath • 483 ft²


































































