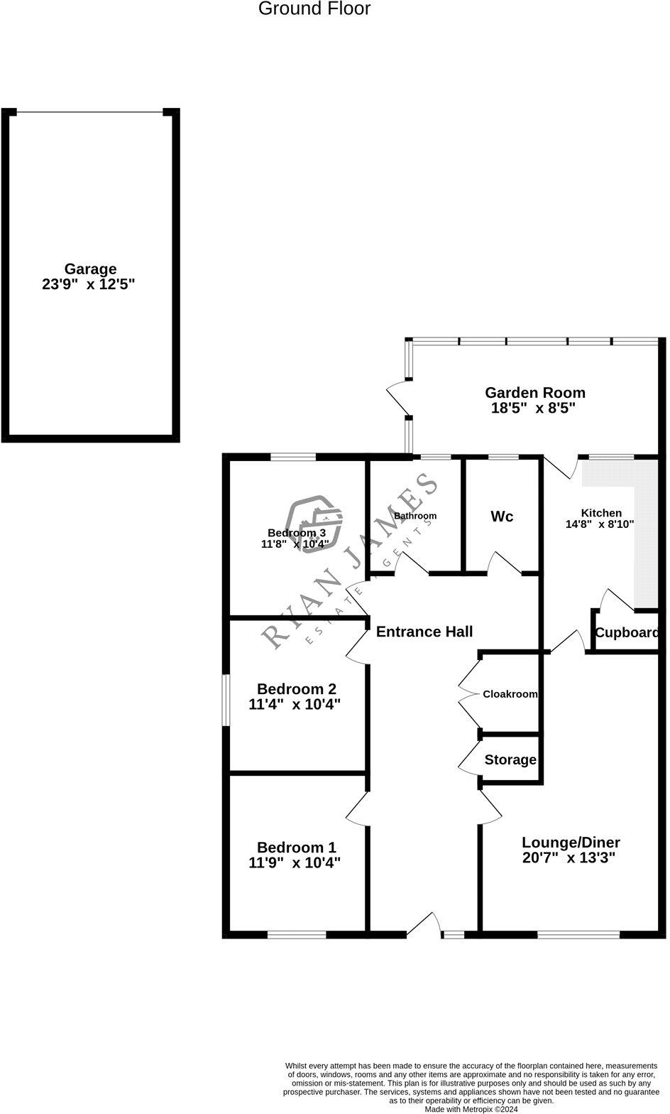
Spacious single-storey home on a large plot, chain free and ready to update.
Detached three double bedrooms, single-storey living
A spacious detached three-double-bedroom bungalow set on a large plot in a quiet cul-de-sac in Shildon. The property offers single-storey living with a bright lounge-diner, modern fitted kitchen, garden room and generous front, side and rear gardens — good for families, downsizers or buyers wanting room to extend (subject to consents).
Practical benefits include off-street parking leading to a single garage, multiple built-in storage cupboards, a wall-mounted gas combi boiler and fast broadband. The home is offered chain free and lies close to primary and secondary schools, local shops and commuter routes for easy travel.
Notable issues are straightforward and factual: the house sits in an area of high deprivation and above-average crime statistics; the cavity walls appear to have no insulation (as built) and the double glazing was installed before 2002, so thermal performance may be below modern standards. Tenure is not confirmed. Buyers should allow for possible improvement works and checks (insulation, glazing, and an updated energy/structural survey if required).
Overall this bungalow presents roomy, convenient single-level living on a large plot with scope for updating and potential improvement. It will suit purchasers seeking low-step living, outdoor space and parking, provided they are comfortable addressing likely energy-efficiency and maintenance upgrades.
3 bedroom bungalow for sale in Baysdale Gardens, Shildon, Durham, DL4 — £290,000 • 3 bed • 2 bath • 5500 ft²
3 bedroom detached bungalow for sale in Windsor Court, Shildon, DL4 — £265,000 • 3 bed • 1 bath • 927 ft²
2 bedroom bungalow for sale in Dale Road, Shildon, Durham, DL4 — £265,000 • 2 bed • 1 bath • 1142 ft²
2 bedroom bungalow for sale in Eskdale Gardens, Shildon, Durham, DL4 — £325,000 • 2 bed • 1 bath • 1163 ft²
3 bedroom detached bungalow for sale in Thursby Close, School Aycliffe, DL5 — £330,000 • 3 bed • 2 bath • 1530 ft²
1 bedroom detached bungalow for sale in Windsor Gardens, Shildon, DL4 — £130,000 • 1 bed • 1 bath • 424 ft²










































































































































