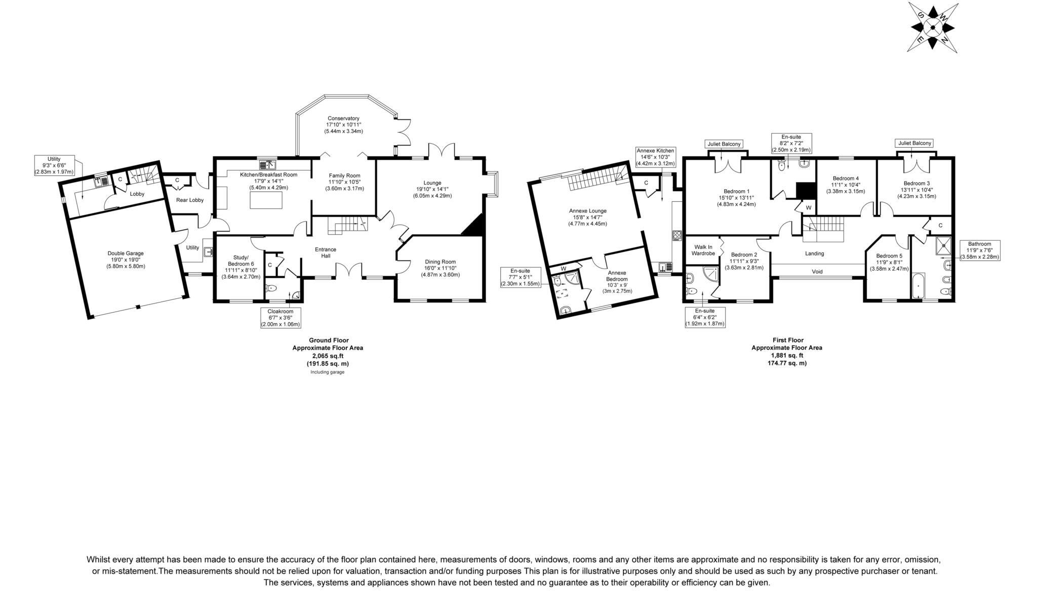
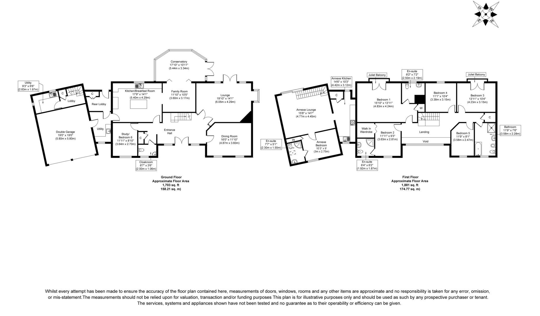
Spacious six-bedroom family house with private lake views and annex.
Six bedrooms plus self-contained one-bedroom annex
Set on a very large plot with private lake frontage, this detached six-bedroom house blends generous family living with independent annex accommodation. The property sits at the end of an exclusive private drive in Brundall, offering privacy, landscaped gardens, and striking lake views that frame the rear aspect. The layout suits multi-generational households: main house spaces include lounge, family room, conservatory and a large kitchen/breakfast room, while the self-contained annex provides a lounge, kitchen, bedroom and en suite.
Practical features include a double garage, gated driveway and double glazing; the build date (circa 2007–2011) means modern construction and insulated cavity walls. Heating is by mains gas with two boilers operating in tandem and a water softener fitted—useful in a riverside location but something that will need regular servicing. Broadband speeds are fast and travel links to Norwich are convenient, making the home suitable for commuters who want a countryside setting.
This is a spacious family home in a quiet, affluent village with good local schools and amenities. The annexe offers flexible use as guest accommodation, home office or rental potential. The property is sold freehold with no onward chain, which can speed completion for a buyer ready to move quickly.
Notable considerations: the house is described as average overall size relative to the plot, and council tax is reported as quite expensive. Two boilers and the water softener will require ongoing maintenance; any buyer should factor in servicing costs and arrange a full inspection of mechanical and electrical systems before purchase.
4 bedroom detached house for sale in Strumpshaw, NR13 — £1,450,000 • 4 bed • 2 bath • 2742 ft²
6 bedroom chalet for sale in East Avenue, Brundall, NR13 — £675,000 • 6 bed • 3 bath • 2992 ft²
4 bedroom detached house for sale in West End Avenue, Brundall, NR13 — £625,000 • 4 bed • 3 bath • 2198 ft²
5 bedroom detached house for sale in West End Avenue, Brundall, NR13 — £525,000 • 5 bed • 2 bath • 1572 ft²
4 bedroom detached house for sale in Mallard Close, Brundall, NR13 — £550,000 • 4 bed • 3 bath • 1647 ft²
3 bedroom detached house for sale in The Street, Brundall, NR13 — £525,000 • 3 bed • 2 bath • 1485 ft²


















































































































































































