SG4 9DH - 3 bed detached family home hitchin in Hitchin And Harpenden…

View on Property Piper

3 bedroom detached house for sale in Stevenage Road, Hitchin, SG4

Summary - 6, STEVENAGE ROAD, HITCHIN SG4 9DH

3 bed 1 bath Detached

Three-bedroom detached house with garage and garden — refurbishment opportunity close to town.
Three bedrooms in a detached family house on a good-sized in-town plot
A solid, well‑proportioned three-bedroom detached house on a sizable in-town plot, offered freehold in a sought-after Hitchin location. The property sits within the Hitchin Hill Path Conservation Area and benefits from a detached garage, off-street parking and a private rear garden — a rare combination close to the town centre and mainline station.

The house is dated and will suit a buyer looking to refurbish rather than move in straight away. uPVC double glazing and original parquet flooring remain in parts, but the gas-fired back boiler that formerly supplied central heating is irreparable and the heating system requires replacement; cosmetic updating is needed throughout. There is clear scope to reconfigure and modernise the kitchen and bathroom to unlock the house’s full potential.

Practical advantages include mains gas, fast broadband options and strong mobile signal, plus good local schools and convenient road/rail links to London. The plot (approx. 55' x 49') provides space for garden improvements or an extended footprint subject to planning and conservation-area constraints. Buyers should verify any restrictive covenants or easements noted on the title.

This property will appeal to families and buyers seeking a refurbishment project in a very affluent, well-connected market town. Factor in renovation costs for a new heating system and modern finishes when assessing value; done well, the house offers comfortable living and future uplift from improvements.

Property Details

Brochure Descriptions

Image Descriptions

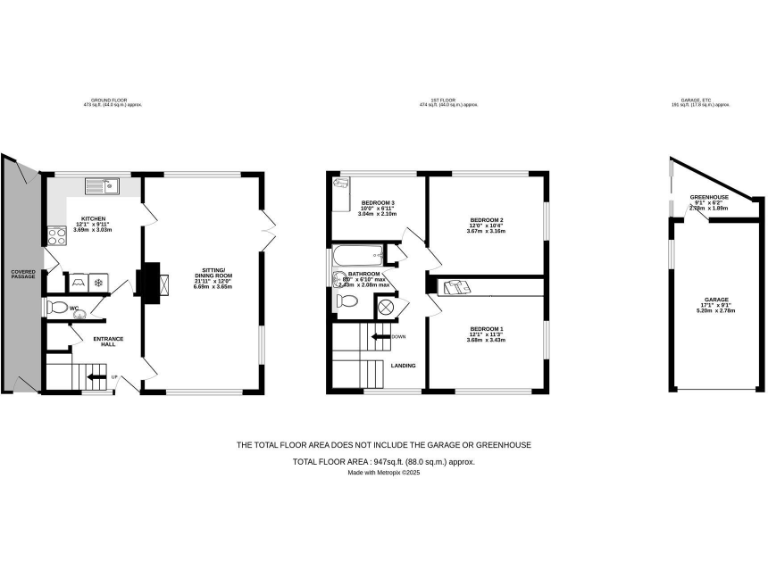
Floorplan Description

Rooms

Textual Property Features

Target Audience

AI Tags

Detected Visual Features

EPC Details

Nearby Schools

Nearest Bars And Restaurants

,,,,}

Nearest General Shops

,,}

Nearest Grocery shops

,,}

Nearest Supermarkets

,,}

Nearest Religious buildings

,,}

Nearest Medical buildings

,,,}

Nearest Airports

,}

Nearest Leisure Facilities

,,,,}

Nearest Tourist attractions

,,}

Nearest Train stations

,,,,}

Nearest Bus stations and stops

,,,,}

Nearest Hotels

,,}

Tags

Local Market Stats

AirBnB Data

Similar Properties

Meta

High Res Images

Compatible Images

Low res Images

Thumbnails

Raw Images

High Res Floorplan Images

Compatible Floorplan Images

Low res Floorplan Images

FloorplanImages Thumbnail

Raw Floorplan Images