- Two bedrooms with built-in wardrobes in principal bedroom
- Compact overall size: approximately 581 sq ft
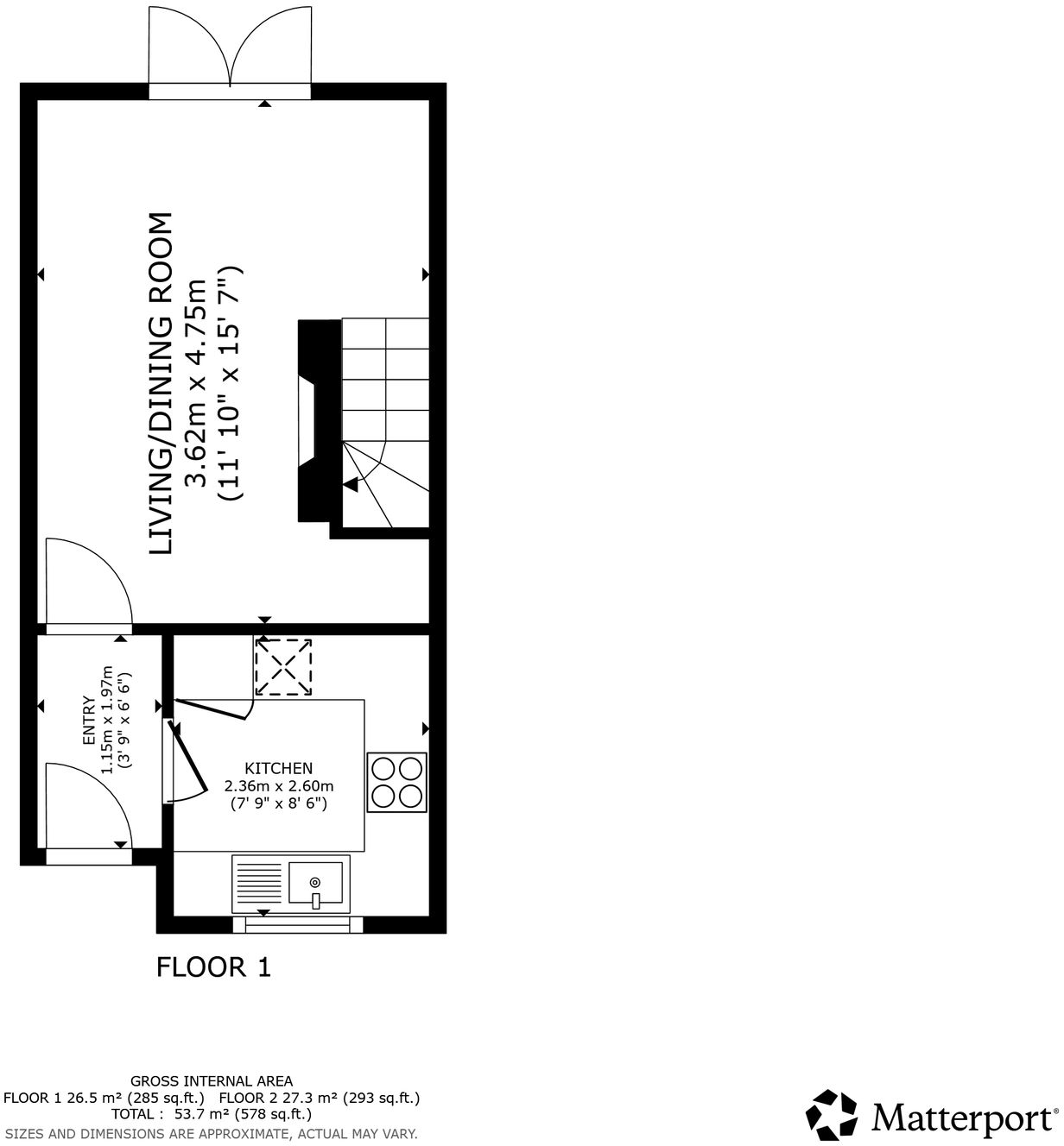
- Modern fitted kitchen and contemporary family bathroom
- Gas central heating with recently replaced boiler
- Double glazing throughout and affordable council tax
- Private off-street driveway and low-maintenance rear garden
- Very deprived local area; may affect resale and neighbourhood feel
- Freehold tenure, good mobile signal and fast broadband
A compact, well-presented two-bedroom mid-terraced home ideal for first-time buyers or commuters. The property offers a modern fitted kitchen, a bright lounge with patio doors to a low-maintenance rear garden, and private off-street parking — practical features for everyday living. Gas central heating with a recently replaced boiler and double glazing help keep running costs down, and the council tax band is described as affordable.
Internally the layout is straightforward and efficient across about 581 sq ft: two good bedrooms and a contemporary bathroom finished with floor-to-ceiling tiling and a rainfall shower. Built-in wardrobes and under-stair storage add useful fitted storage in a home of this size.
Buyers should note the immediate neighbourhood is classified as a very deprived, blue-collar terrace area with an emphasis on social renting; local socio-economic indicators may affect resale values and the feel of the surroundings. The house itself is freehold and in modern condition, but its overall footprint is small, so buyers seeking generous living space should look elsewhere.
Practical transport links make commuting to Dalkeith or Edinburgh straightforward, and local green spaces and shops are within easy reach. This property suits a buyer wanting an affordable, low-maintenance starter home with good connectivity and manageable running costs.























































