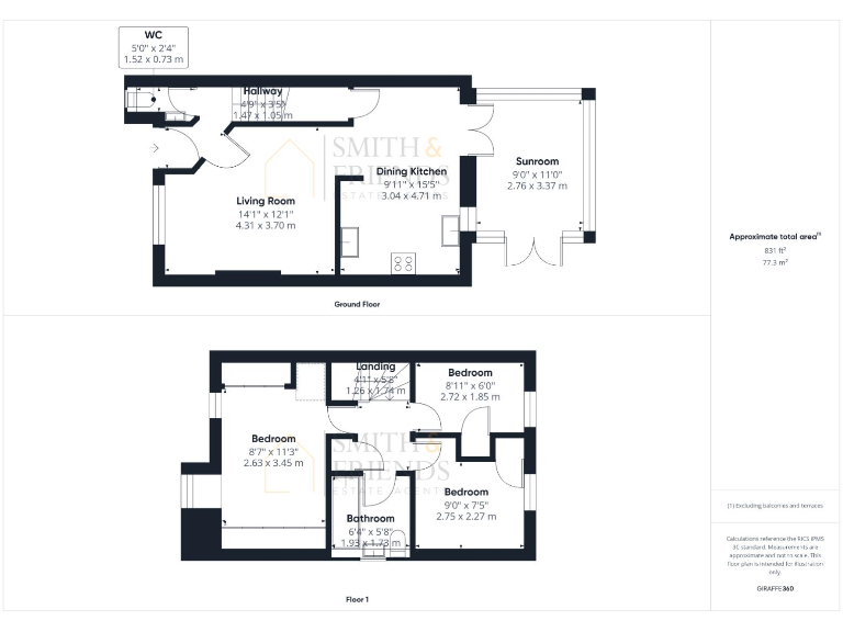
Three bedrooms with three bathrooms (includes ground-floor WC)
This three-bedroom semi-detached home in Marton-in-Cleveland suits growing families seeking practical, low-maintenance living close to well-regarded schools. The ground floor offers a comfortable lounge, open-plan dining kitchen with integrated appliances and a sunroom that opens onto a landscaped, private rear garden designed for easy upkeep.
Practical features include uPVC double glazing, gas central heating, a single garage and a generous tarmac driveway that provides good off-street parking. The property sits on a decent plot in a quiet, comfortable suburb with fast broadband and excellent mobile signal—useful for homeworking and family connectivity.
Internally the layout is efficient rather than spacious: the total internal area is small (c. 733 sq ft) and some bedrooms are compact, so the house is best suited to families who prioritise location, low maintenance outside space and good local schools over large living areas. The property dates from the late 1990s/early 2000s; double glazing is present but installation date is unknown. Early viewing will show how well the contemporary finish works within the compact footprint.



























































