Recently renovated three-bed home near parks and transport for growing families.
Newly renovated throughout, ready to move into
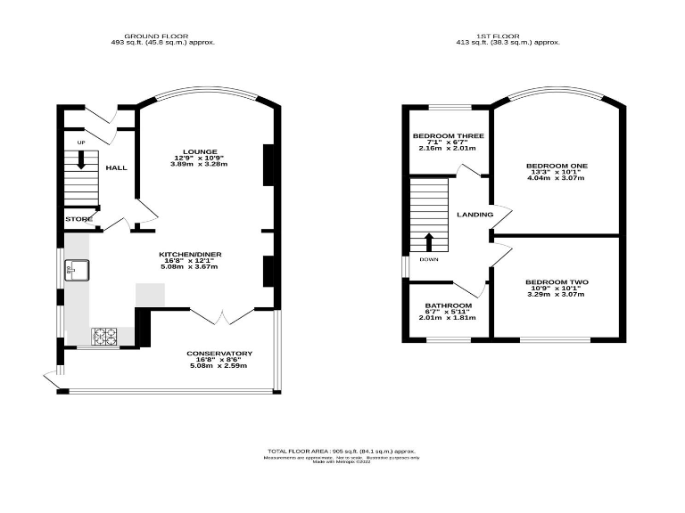
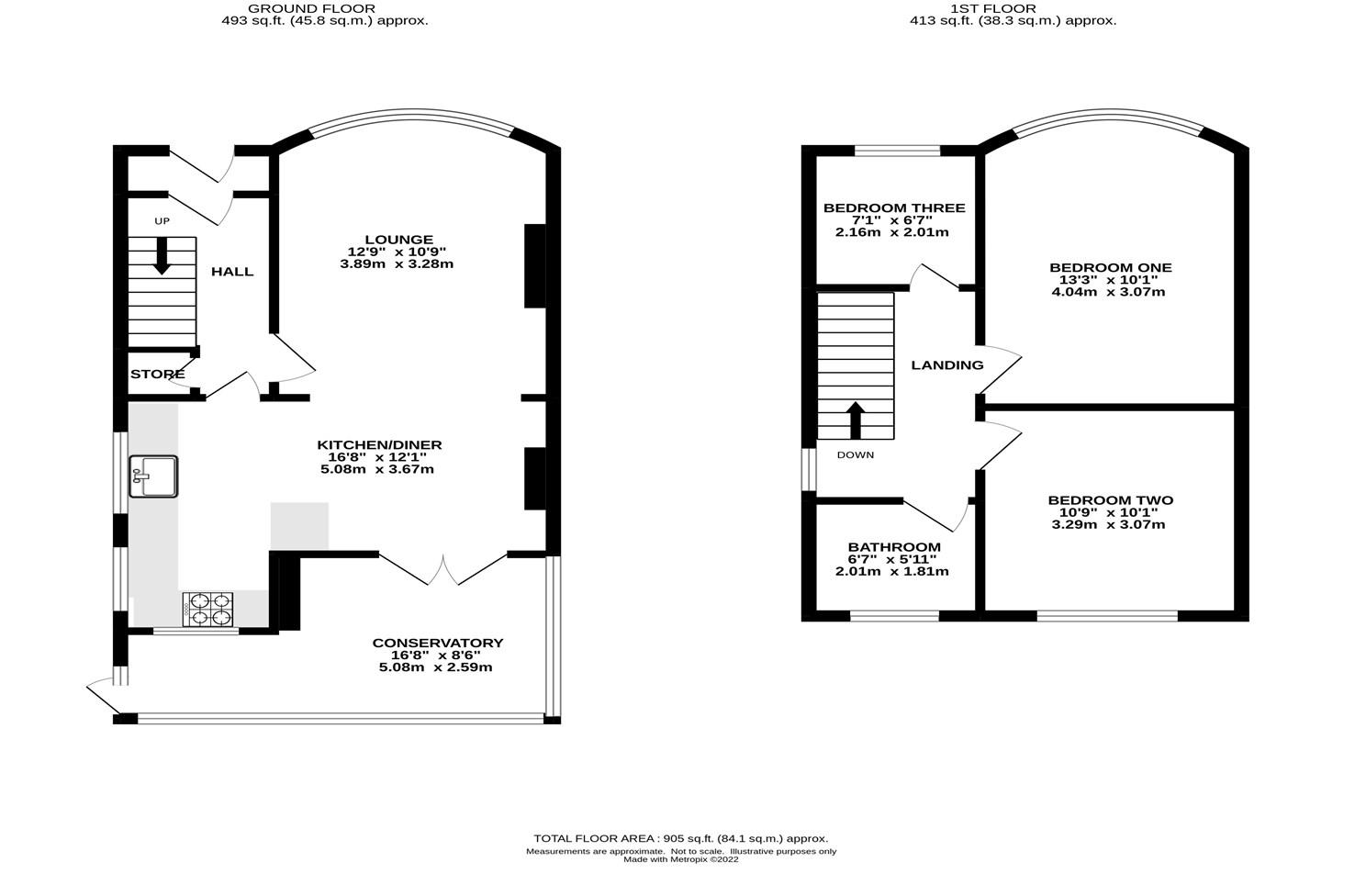
Corner plot with wraparound garden and conservatory
Open-plan kitchen-diner creates versatile living space
Off-street parking for one vehicle
Three bedrooms, one contemporary family bathroom
Leasehold with 909 years remaining (not freehold)
Double glazing installed — exact date unknown
Fast broadband, excellent mobile signal and good schools nearby
This recently renovated three-bedroom semi-detached house sits on a corner plot in Heaton Norris, a popular area for professionals and growing families. The ground floor offers a bay-fronted lounge, a bright open-plan kitchen-diner and a conservatory/utility room that opens onto a wraparound garden and off-street parking.
Upstairs are three well-proportioned bedrooms and a contemporary three-piece family bathroom. The property is gas‑heated with a boiler and radiators, double glazed (installation date not specified) and benefits from fast broadband and excellent mobile signal — useful for anyone working from home.
Practical points to note: the home is leasehold with 909 years remaining and a low service charge. It is an average-sized property with a single bathroom, so families should consider space for morning routines. Overall, the combination of recent renovation, corner-plot garden and strong local schools makes this an appealing move-in-ready option in an affluent, well-connected neighbourhood.
3 bedroom semi-detached house for sale in Manchester Road, Heaton Norris, Stockport, SK4 — £340,000 • 3 bed • 1 bath • 1541 ft²
3 bedroom semi-detached house for sale in All Saints Road, Heaton Norris, Stockport, SK4 — £250,000 • 3 bed • 1 bath • 693 ft²
3 bedroom semi-detached house for sale in Craig Road, Heaton Mersey, Stockport, SK4 — £340,000 • 3 bed • 1 bath • 715 ft²
3 bedroom semi-detached house for sale in Alexandra Road, Heaton Norris, Stockport, SK4 — £520,000 • 3 bed • 1 bath • 1434 ft²
3 bedroom semi-detached house for sale in Bankfield Avenue, Heaton Norris, Stockport, SK4 — £340,000 • 3 bed • 1 bath • 1054 ft²
3 bedroom detached house for sale in Ellen Street, Heaton Norris, Stockport, SK4 — £325,000 • 3 bed • 1 bath • 1027 ft²






















































































