Private outdoor spaces, modern interior and excellent transport links.
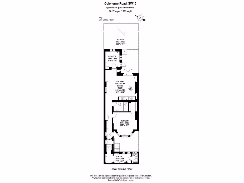
Private front patio and secluded rear garden with mature tree
Spacious open-plan living and kitchen, high ceilings, wood flooring
Two double bedrooms; one with direct garden access
Walk-in wardrobe, separate utility room, two bathrooms
Approximately 863 sq ft; well-presented and largely turnkey
Share of freehold tenure; communal management required
Pre-1900 solid brick walls — likely no wall insulation
Double glazing pre-2002; council tax and local crime above average
Set on a quiet SW10 street, this well-presented basement apartment offers rare private outdoor space at both front and rear. The bright, open-plan living area opens to a sheltered garden with a mature tree, creating a peaceful central-London retreat. The property feels turnkey and is suited to professionals, couples, or buy-to-let investors seeking immediate rental appeal.
Accommodation includes two double bedrooms — one with direct garden access and the other with a walk-in wardrobe — plus a separate utility room and two bathrooms. High ceilings, wood floors and a contemporary kitchen with integrated appliances deliver a modern finish while retaining period character. Total internal area is about 863 sq ft, with practical storage throughout.
Buyers should note the building is pre-1900 with solid brick walls likely lacking cavity insulation, and the double glazing was installed before 2002. Heating is mains gas via a boiler and radiators; council tax is above average. The tenure is a share of freehold, which can offer long-term control but requires collective management.
Location is a key strength: a quiet road in prestigious Chelsea with quick walks to Earl’s Court and West Brompton stations, and easy access to Fulham Road’s cafés, shops and restaurants. Nearby schools include strong state and independent options, and local broadband and mobile signal are good — helpful for remote working. The area records above-average crime, so consider local patrols and security measures when viewing.
2 bedroom flat for sale in Cathcart Road, Chelsea, SW10 — £1,475,000 • 2 bed • 2 bath • 1096 ft²
2 bedroom flat for sale in Redcliffe Square, London, SW10 — £1,395,000 • 2 bed • 2 bath • 1480 ft²
2 bedroom flat for sale in Finborough Road,
Chelsea, SW10 — £850,000 • 2 bed • 2 bath • 905 ft²
2 bedroom flat for sale in Finborough Road,
Chelsea, SW10 — £760,000 • 2 bed • 2 bath • 898 ft²
2 bedroom flat for sale in Cathcart Road, London, SW10 — £1,475,000 • 2 bed • 2 bath • 1112 ft²
2 bedroom apartment for sale in Finborough Road, London, SW10 — £725,000 • 2 bed • 2 bath • 799 ft²














































